Bildegalleri

Velkommen til Kongsåsveien 14 presentert av aktiv eiendomsmegling v/John Erik Klinge. Foto: Maciej Krzysztof
Langerød
Velholdt enebolig med familievennlig planløsning, garasje og jevnlig vedlikeholdt
Prisantydning4 990 000 kr
Nøkkelinfo
- Boligtype
- Enebolig
- Eieform
- Eier (Selveier)
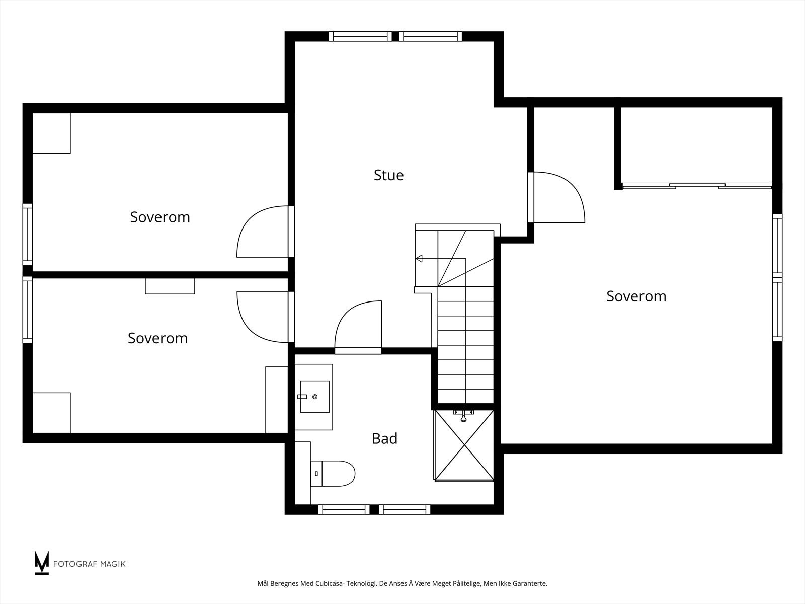
- Soverom
- 5
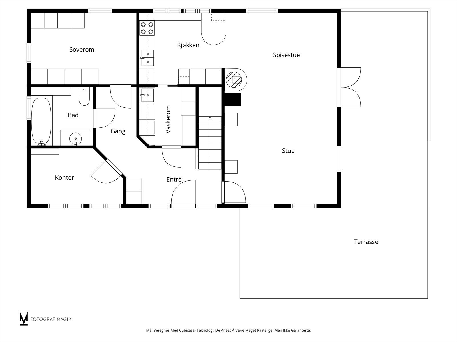
- Internt bruksareal
- 145 m² (BRA-i)
- Bruksareal
- 201 m²
- Eksternt bruksareal
- 56 m² (BRA-e)
- Balkong/Terrasse
- 38 m² (TBA)
- Etasje
- 2
- Byggeår
- 1999
- Energimerking
- C - Lysegrønn
- Rom
- 6
- Tomteareal
- 736 m² (eiet)
Fasiliteter
Balkong/Terrasse
Barnevennlig
Garasje/P-plass
Hage
Offentlig vann/kloakk
Peis/Ildsted
Rolig
Turterreng
Visning
onsdag, 04. februar
16:30 – 17:30
Påmelding til megler innen kl 12:00 visningsdagen. Velkommen!
VisningspåmeldingOm boligen
Kongsåsveien 14 ligger attraktivt og rolig på Sem i Tønsberg, i et etablert boligområde med lite trafikk, gode solforhold og grønne omgivelser. Boligen er en solid og innbydende enebolig fra 1999, godt vedlikeholdt og løpende oppgradert, med funksjonell og tidløs planløsning. Tilbygg med ark og bad fra ca. 2013 gir ekstra areal og komfort. Innvendig byr boligen på lyse rom med parkett- og flisgulv, malt i 2006 og vinduer malt i 2023. Stue med vedovn, kjøkken med oppgraderte fronter og 2 bad samt vaskerom. Teknisk godt utstyrt med varmepumpe, EL-billader og ventilasjon. Fem soverom og ny terrasse fra 2025 gjør dette til en ideell familiebolig i trygge omgivelser på Sem.
Velkommen på visning!
Husk påmelding.
Velkommen på visning!
Husk påmelding.
NB: Knappen for å vise hele beskrivelsen har kun en visuell effekt.
NB: Knappen for å vise hele beskrivelsen har kun en visuell effekt.
Salgsoppgaven beskriver vesentlig og lovpålagt informasjon om eiendommen
Se komplett salgsoppgaveNærområdet
Aktiv Tønsberg og Re
Annonseinformasjon
| FINN-kode | 447414449 |
|---|---|
| Sist endret | 23. jan. 2026 19:07 |
| Referanse | 1312250112 |
Annonsene kan være mangelfulle i forhold til lovpålagt opplysningsplikt. Før bindende avtale inngås oppfordres interessenter til å innhente komplett informasjon fra meglerforetaket, selger eller utleier.








































































