Bildegalleri

NBBO Eiendomsmegling v/Tomas Urbanik ønsker velkommen til visning i Kristian Brenners vei 95!
Aronsløkka/Åssiden - Lys og delikat 2-roms - Nydelig utsikt & gode solforhold - Pen standard - Nærhet til marka
Prisantydning2 390 000 kr
Nøkkelinfo
- Boligtype
- Leilighet
- Eieform
- Andel
- Soverom
- 1
- Internt bruksareal
- 62 m² (BRA-i)
- Bruksareal
- 73 m²
- Eksternt bruksareal
- 3 m² (BRA-e)
- Innglasset balkong
- 8 m² (BRA-b)
- Balkong/Terrasse
- 14 m² (TBA)
- Etasje
- 1
- Byggeår
- 1979
- Energimerking
- F - Rød
- Rom
- 2
- Tomteareal
- 6 477 m² (eiet)
Fasiliteter
Balkong/Terrasse
Barnevennlig
Bredbåndstilknytning
Rolig
Sentralt
Utsikt
Vaktmester-/vektertjeneste
Turterreng
Visning
mandag, 02. februar
18:15 – 19:00
Alle våre visninger har påmelding. På denne måten sikrer vi at megler har god oversikt og tid til å imøtekomme alle interessenter på beste måte. Skulle ingen være påmeldt til visningen innen kl. 12.00 på visningsdagen vil visningen ikke bli gjennomført. Passer ikke annonsert tidspunkt, ta kontakt så finner vi et tidspunkt som passer.
VisningspåmeldingOm boligen
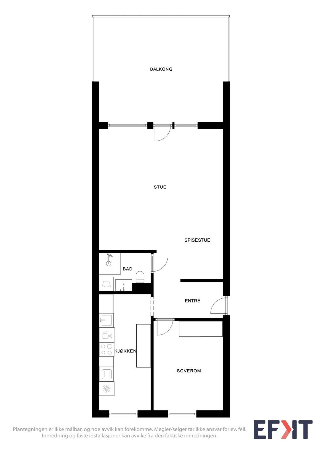
Velkommen til en lys og pen 2-roms leilighet med gjennomgående gode kvaliteter. Boligen har oppgraderte overflater, et moderne baderom fra 2016 og en stilren kjøkkeninnredning fra 2014 med slette fronter og rikelig med skapplass. Leiligheten byr på en romslig balkong på hele 22 kvm, hvorav 8 kvm er innglasset. Eiendommen gjennomgikk en omfattende rehabilitering i 2016, hvor fasade ble etterisolert, elektrisk anlegg oppgradert, samt nye vinduer og utvendige dører. Dette gir både økt bokomfort og et moderne preg. En attraktiv leilighet med god standard og praktiske løsninger, ideell for førstegangskjøpere eller deg som ønsker en lettstelt bolig med fine utearealer og kort vei til marka. Velkommen til visning!
NB: Knappen for å vise hele beskrivelsen har kun en visuell effekt.
NB: Knappen for å vise hele beskrivelsen har kun en visuell effekt.
Salgsoppgaven beskriver vesentlig og lovpålagt informasjon om eiendommen
Se komplett salgsoppgaveNyttige lenker
Nærområdet
Nbbo Eiendomsmegling
Annonseinformasjon
| FINN-kode | 447402111 |
|---|---|
| Sist endret | 22. jan. 2026 14:08 |
| Referanse | GAR20.264 |
Annonsene kan være mangelfulle i forhold til lovpålagt opplysningsplikt. Før bindende avtale inngås oppfordres interessenter til å innhente komplett informasjon fra meglerforetaket, selger eller utleier.






















