Bildegalleri

- Velkommen til Holtveien 3B - 'AI sommer', foto: Zovenfra
Solgt
Holtet/Bekkelaget
Lys og luftig selveier (139 kvm) med utsikt | Sentralt på Holtet | Stor balkong | Garasjeplass og heis | 3 sov, 2 bad
Prisantydning17 500 000 kr
Nøkkelinfo
- Boligtype
- Leilighet
- Eieform
- Eier (Selveier)
- Soverom
- 3
- Internt bruksareal
- 139 m² (BRA-i)
- Bruksareal
- 147 m²
- Eksternt bruksareal
- 8 m² (BRA-e)
- Balkong/Terrasse
- 20 m² (TBA)
- Etasje
- 3
- Byggeår
- 2011
- Energimerking
- C - Lysegrønn
- Rom
- 4
- Tomteareal
- 1 907 m² (eiet)
Fasiliteter
Barnevennlig
Balkong/Terrasse
Garasje/P-plass
Kabel-TV
Heis
Offentlig vann/kloakk
Ingen gjenboere
Parkett
Turterreng
Utsikt
Vaktmester-/vektertjeneste
Sentralt
Bredbåndstilknytning
Moderne
Rolig
Om boligen
Holtveien 3B ligger attraktivt til på Holtet, i et veletablert og populært boligområde med nærhet til servicetilbud, kollektivtransport og grønne rekreasjonsområder. Her bor du sentralt, men samtidig rolig og tilbaketrukket.
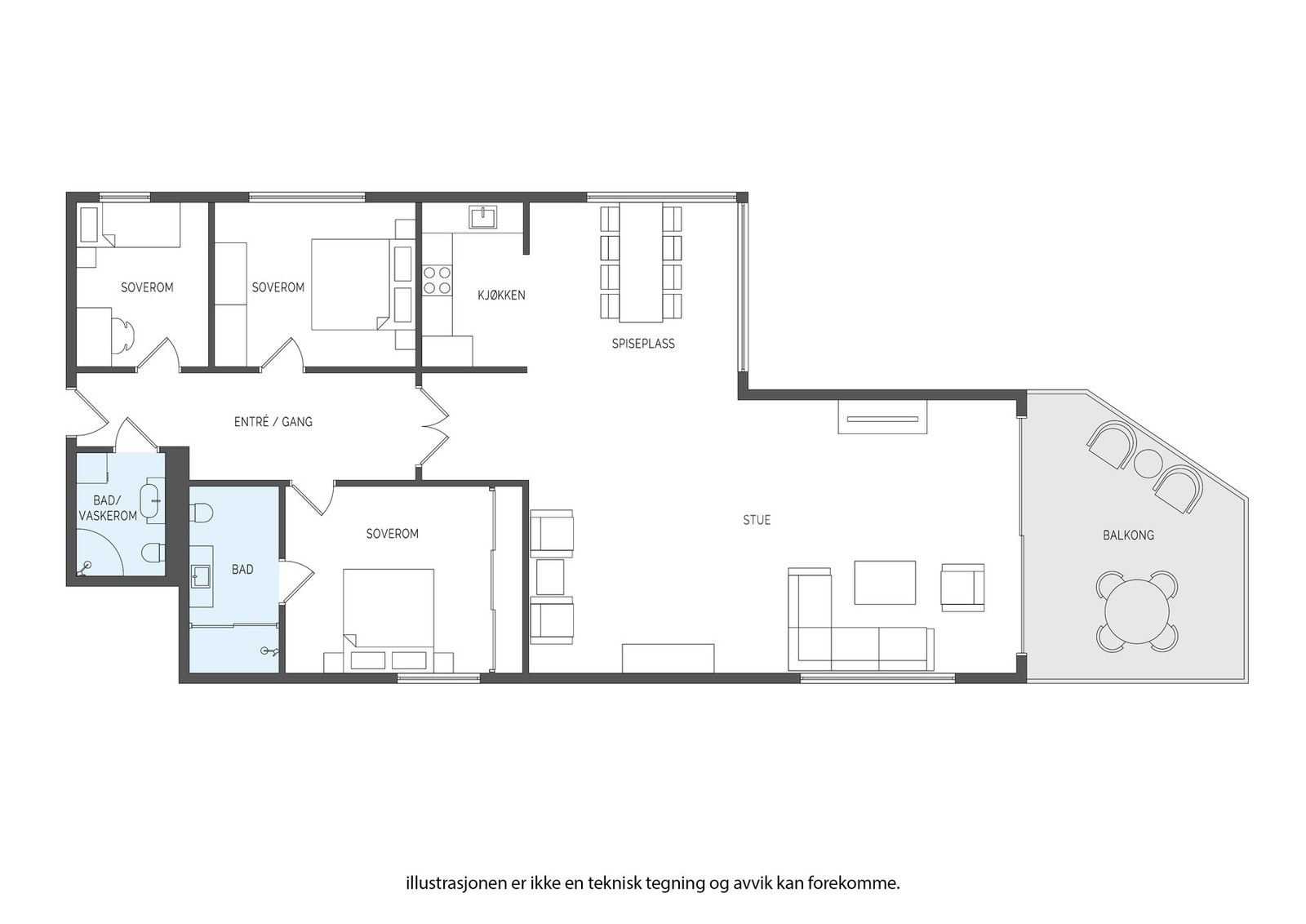
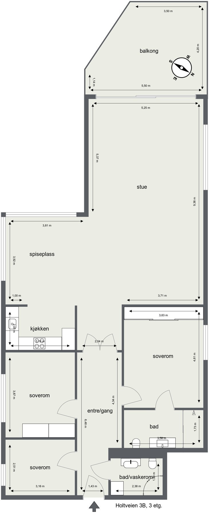
Leiligheten er en romslig og gjennomgående 4-roms beliggende i byggets 3. etasje, med heisadkomst direkte til etasjeplan og garasjeplass. Planløsningen er gjennomtenkt med tydelig sonedeling, store vindusflater og en luftig romfølelse som gir svært gode lysforhold gjennom hele dagen.
Boligen består av tre gode soverom og to flislagte bad, hvorav ett ligger i suiteløsning med hovedsoverommet. Stue og kjøkken er samlet i en åpen og sosial løsning med god plass til både sofagruppe og spisestue, og store glassflater gir rikelig med naturlig lys.
Fra stuen er det utgang til en sydvestvendt balkong på ca. 20 kvm med svært gode solforhold og plass til både spisebord og loungemøbler. Balkongen har tregulv, belysning, strømuttak og el. markise. Det medfølger to boder.
Leiligheten er en romslig og gjennomgående 4-roms beliggende i byggets 3. etasje, med heisadkomst direkte til etasjeplan og garasjeplass. Planløsningen er gjennomtenkt med tydelig sonedeling, store vindusflater og en luftig romfølelse som gir svært gode lysforhold gjennom hele dagen.
Boligen består av tre gode soverom og to flislagte bad, hvorav ett ligger i suiteløsning med hovedsoverommet. Stue og kjøkken er samlet i en åpen og sosial løsning med god plass til både sofagruppe og spisestue, og store glassflater gir rikelig med naturlig lys.
Fra stuen er det utgang til en sydvestvendt balkong på ca. 20 kvm med svært gode solforhold og plass til både spisebord og loungemøbler. Balkongen har tregulv, belysning, strømuttak og el. markise. Det medfølger to boder.
NB: Knappen for å vise hele beskrivelsen har kun en visuell effekt.
NB: Knappen for å vise hele beskrivelsen har kun en visuell effekt.
Salgsoppgaven beskriver vesentlig og lovpålagt informasjon om eiendommen
Se komplett salgsoppgaveNyttige lenker
Nærområdet

PrivatMegleren Panorama
Kun det beste på dine vegne
Annonseinformasjon
| FINN-kode | 447315357 |
|---|---|
| Sist endret | 03. feb. 2026 15:11 |
| Referanse | 38251431 |
Annonsene kan være mangelfulle i forhold til lovpålagt opplysningsplikt. Før bindende avtale inngås oppfordres interessenter til å innhente komplett informasjon fra meglerforetaket, selger eller utleier.
















































