Bildegalleri

Stoppenkollen 17 | Presentert av Proaktiv v/Fredrik Engebråten.
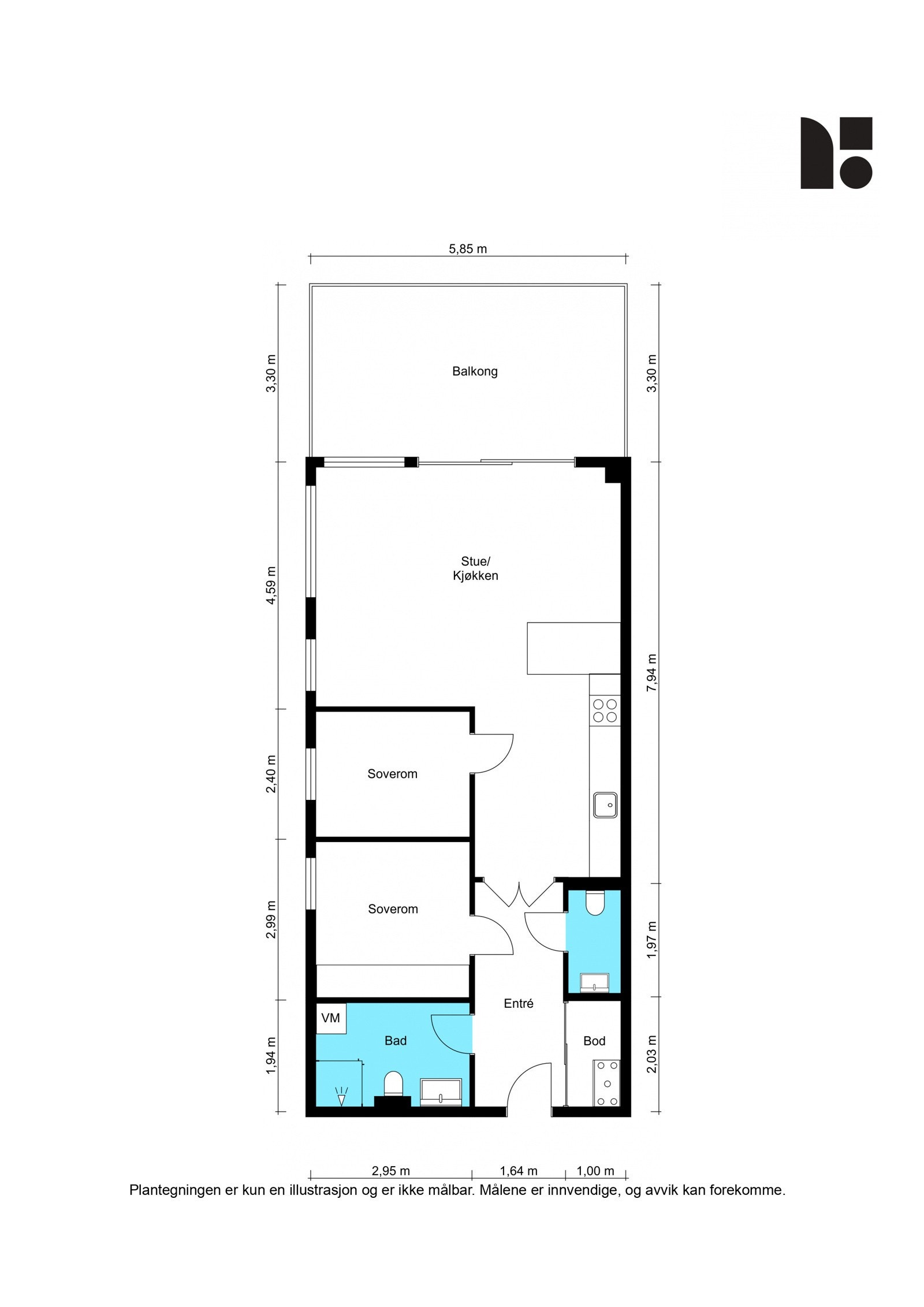
Eksklusiv 3-roms selveierleilighet fra 2021 med spektakulær utsikt, heis, garasjeplass og balkong på 19m².
Nøkkelinfo
- Boligtype
- Leilighet
- Eieform
- Eier (Selveier)
- Soverom
- 2
- Internt bruksareal
- 77 m² (BRA-i)
- Bruksareal
- 82 m²
- Eksternt bruksareal
- 5 m² (BRA-e)
- Balkong/Terrasse
- 19 m² (TBA)
- Etasje
- 2
- Byggeår
- 2021
- Energimerking
- B - Lysegrønn
- Rom
- 3
- Tomteareal
- 2 045 m² (eiet)
Fasiliteter
Visning
Om boligen
Gode bokvaliteter i Stoppenkollen 17 - etterspurt 3-roms selveier på 77m² i et tilbaketrukket og rolig nabolag. Dette er et eksklusivt sameie som er svært ettertraktet, hvor leilighetene sjeldent skifter eier. Med leiligheten følger garasjeplass i oppvarmet anlegg, heisadkomst og en stor uteplass på hele 19m² med sol og spektakulær utsikt som henvender seg ut mot Lierdalen.
Leiligheten er oppført så sent som i 2021 og fremstår som strøken med minimal bruksslitasje, og har i tillegg energivennlige finesser og ekstra gode lysforhold. Kjøkkenet sklir sømløst inn i helheten og er komplett utstyrt med integrerte hvitevarer. Åpent mot stuen, tilbaketrukket fra de to soverommene, badet og toalettrommet som ligger ved entreen.
Sentral og tilgjengelig beliggenhet, samtidig med marka i gangavstand.
Salgsoppgaven beskriver vesentlig og lovpålagt informasjon om eiendommen
Se komplett salgsoppgaveNyttige lenker
Nærområdet
Proaktiv Eiendomsmegling Drammen, Lier & Holmestrand
Annonseinformasjon
| FINN-kode | 447267792 |
|---|---|
| Sist endret | 24. jan. 2026 03:17 |
| Referanse | 106260001 |
Annonsene kan være mangelfulle i forhold til lovpålagt opplysningsplikt. Før bindende avtale inngås oppfordres interessenter til å innhente komplett informasjon fra meglerforetaket, selger eller utleier.





























