Bildegalleri

Konglevegen 5B | Presentert av Eiendomsmegler Norge v/ Raymond Sandøy (arkivfoto 2023).
KONGLEVEGEN
4-roms del av tomannsbolig med takterrasse og fine uteplasser.
Prisantydning2 500 000 kr
Nøkkelinfo
- Boligtype
- Tomannsbolig
- Eieform
- Andel
- Soverom
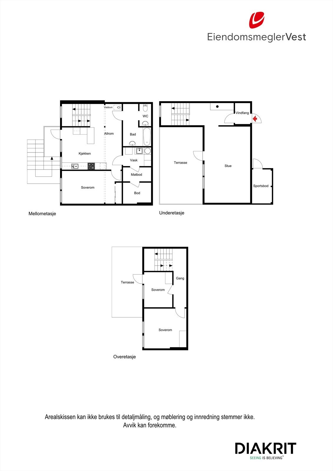
- 3
- Internt bruksareal
- 127 m² (BRA-i)
- Bruksareal
- 132 m²
- Eksternt bruksareal
- 5 m² (BRA-e)
- Balkong/Terrasse
- 62 m² (TBA)
- Byggeår
- 1981
- Energimerking
- F - Gul
- Rom
- 4
- Tomteareal
- 17 130 m² (eiet)
Fasiliteter
Takterrasse
Aircondition
Balkong/Terrasse
Barnevennlig
Bredbåndstilknytning
Garasje/P-plass
Hage
Kjæledyr tillatt
Ingen gjenboere
Offentlig vann/kloakk
Rolig
Sentralt
Utsikt
Turterreng
Lademulighet
Om boligen
Velkommen til denne flotte tomannsboligen i Konglevegen, Førde. Boligen ligger i et rolig og familievennlig område med kort avstand til skoler, barnehager og Førde sentrum. Her kan du nyte utsikten mot ytre Hafstad og fjellene rundt. Området er kjent for sin trygghet og gode naboskap, med enkel tilgang til offentlig transport og servicetilbud.
Boligen er bygget i 1981 og har et bruksareal på 132 m². Den består av vindfang, loftstue, kjøkken, bad, vaskerom, tre soverom og flere boder. Kjøkkenet har moderne innredning, og badet er utstyrt med varmekabler. Uteplassen inkluderer en takterrasse og flere treplattinger, perfekt for avslapning. Det er også en fast parkeringsplass tilgjengelig.
Boligen er bygget i 1981 og har et bruksareal på 132 m². Den består av vindfang, loftstue, kjøkken, bad, vaskerom, tre soverom og flere boder. Kjøkkenet har moderne innredning, og badet er utstyrt med varmekabler. Uteplassen inkluderer en takterrasse og flere treplattinger, perfekt for avslapning. Det er også en fast parkeringsplass tilgjengelig.
NB: Knappen for å vise hele beskrivelsen har kun en visuell effekt.
NB: Knappen for å vise hele beskrivelsen har kun en visuell effekt.
Salgsoppgaven beskriver vesentlig og lovpålagt informasjon om eiendommen
Se komplett salgsoppgaveNyttige lenker
Nærområdet
Eiendomsmegler Norge Førde
Best der du bor
Annonseinformasjon
| FINN-kode | 447261209 |
|---|---|
| Sist endret | 21. jan. 2026 15:43 |
| Referanse | 43250086 |
Annonsene kan være mangelfulle i forhold til lovpålagt opplysningsplikt. Før bindende avtale inngås oppfordres interessenter til å innhente komplett informasjon fra meglerforetaket, selger eller utleier.


































