Bildegalleri

Eiendomsmegler Kristian Lossius har gleden av å ønske deg velkommen til Randesunds gate 5!
Solgt
Lund
Pen og tiltalende del av horisont delt tomannsbolig med 2 balkonger, felles hage i rolig boligområde. Garasje
Prisantydning4 850 000 kr
Nøkkelinfo
- Boligtype
- Leilighet
- Eieform
- Eier (Selveier)
- Soverom
- 3
- Internt bruksareal
- 93 m² (BRA-i)
- Bruksareal
- 163 m²
- Eksternt bruksareal
- 70 m² (BRA-e)
- Balkong/Terrasse
- 19 m² (TBA)
- Etasje
- 2
- Byggeår
- 1939
- Energimerking
- G - Gul
- Rom
- 4
- Tomteareal
- 590 m² (eiet)
Fasiliteter
Balkong/Terrasse
Barnevennlig
Garasje/P-plass
Hage
Peis/Ildsted
Rolig
Sentralt
Turterreng
Om boligen
Eiendomsmegler Norge ved Kristian Lossius har gleden av å ønske deg velkommen til Randesundsgate 5!
En innholdsrik del av tomannsbolig renovert i 2014/2015.
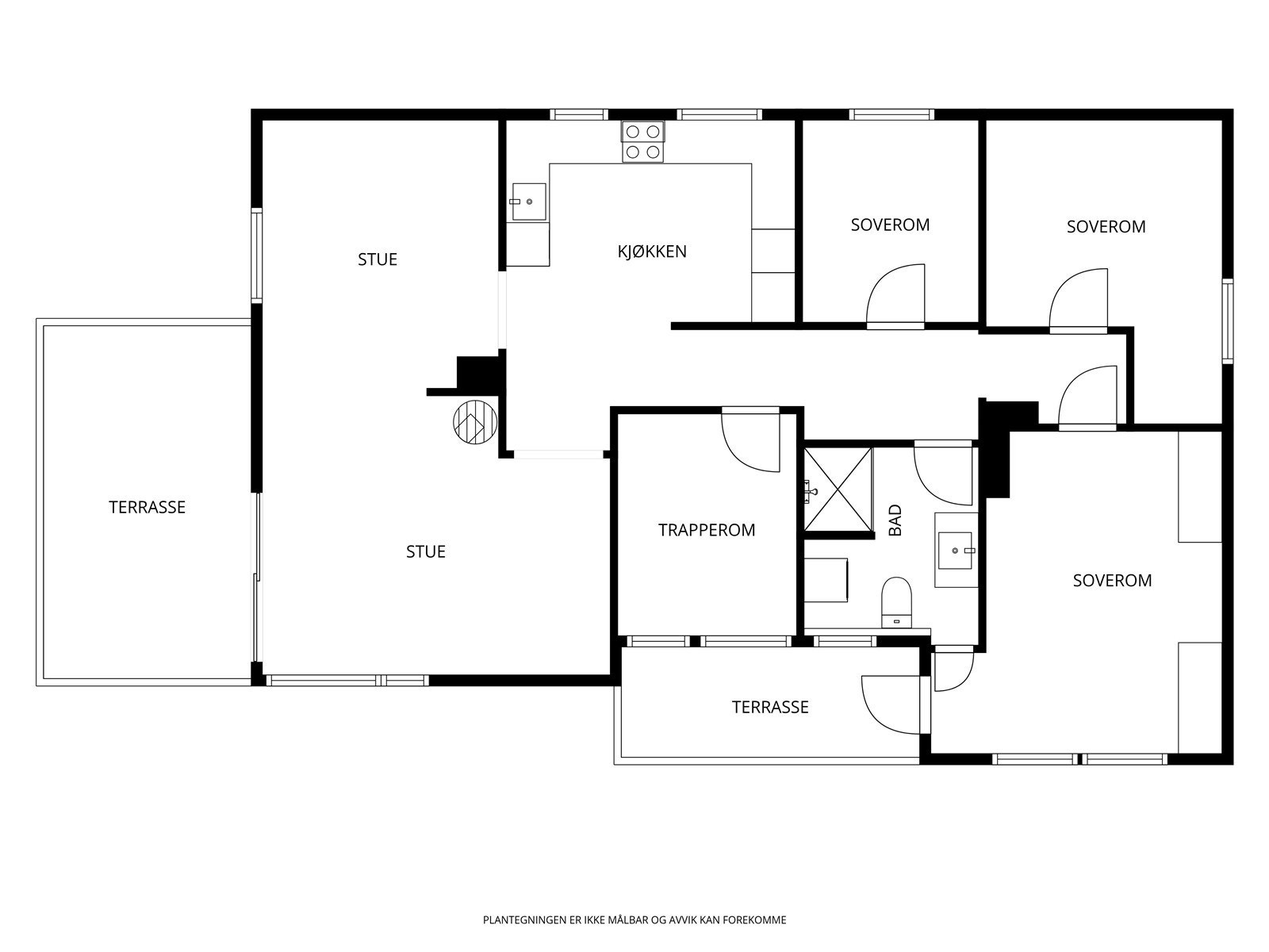
Boligen ligger i 2. etg. med to balkonger og har følgende planløsning:
Gang med plass til å henge av seg ytterklær og sko. Romslig stue med plass til både spisebord og sofagruppe. Stuen er åpen mot nyere kjøkken fra Strai med sorte matte fronter og laminat benkeplate. Boligen har et stort flislagt bad med varme i gulv. Badet har inngang både fra gang og fra hovedsoverom. Videre er det 3 soverom hvorav hovedsoverom har utgang til terrasse nr. 2.
4 boder samt vaskerom i kjeller og halve loftet medfølger leiligheten. Garasje på tomten medfølger.
Garasje og halve loftet benyttes av denne seksjonen. Det er ingen juridisk oppdeling.
En innholdsrik del av tomannsbolig renovert i 2014/2015.
Boligen ligger i 2. etg. med to balkonger og har følgende planløsning:
Gang med plass til å henge av seg ytterklær og sko. Romslig stue med plass til både spisebord og sofagruppe. Stuen er åpen mot nyere kjøkken fra Strai med sorte matte fronter og laminat benkeplate. Boligen har et stort flislagt bad med varme i gulv. Badet har inngang både fra gang og fra hovedsoverom. Videre er det 3 soverom hvorav hovedsoverom har utgang til terrasse nr. 2.
4 boder samt vaskerom i kjeller og halve loftet medfølger leiligheten. Garasje på tomten medfølger.
Garasje og halve loftet benyttes av denne seksjonen. Det er ingen juridisk oppdeling.
NB: Knappen for å vise hele beskrivelsen har kun en visuell effekt.
NB: Knappen for å vise hele beskrivelsen har kun en visuell effekt.
Salgsoppgaven beskriver vesentlig og lovpålagt informasjon om eiendommen
Se komplett salgsoppgaveNyttige lenker
Nærområdet
Eiendomsmegler Norge Kristiansand
Best der du bor
Annonseinformasjon
| FINN-kode | 447258265 |
|---|---|
| Sist endret | 30. jan. 2026 15:02 |
| Referanse | 50260015 |
Annonsene kan være mangelfulle i forhold til lovpålagt opplysningsplikt. Før bindende avtale inngås oppfordres interessenter til å innhente komplett informasjon fra meglerforetaket, selger eller utleier.

































