Bildegalleri

Eiendomsmegler Norge ved Kristian Lossius har gleden av å ønske deg velkommen til Kongsgård Alle 5 B!
Lund
Lys 3-roms selveier utgang til solrik balkong med formiddag og ettermiddagssol. Medfølger garasjeplass i nabokjeller.
Prisantydning3 690 000 kr
Nøkkelinfo
- Boligtype
- Leilighet
- Eieform
- Eier (Selveier)
- Soverom
- 2
- Internt bruksareal
- 78 m² (BRA-i)
- Bruksareal
- 86 m²
- Eksternt bruksareal
- 8 m² (BRA-e)
- Balkong/Terrasse
- 7 m² (TBA)
- Etasje
- 1
- Byggeår
- 1983
- Rom
- 3
- Tomteareal
- 2 537 m² (eiet)
Fasiliteter
Balkong/Terrasse
Garasje/P-plass
Hage
Rolig
Sentralt
Turterreng
Om boligen
Eiendomsmegler Norge ved Kristian Lossius har gleden av å ønske deg velkommen til Kongsgård Alle 5 B!
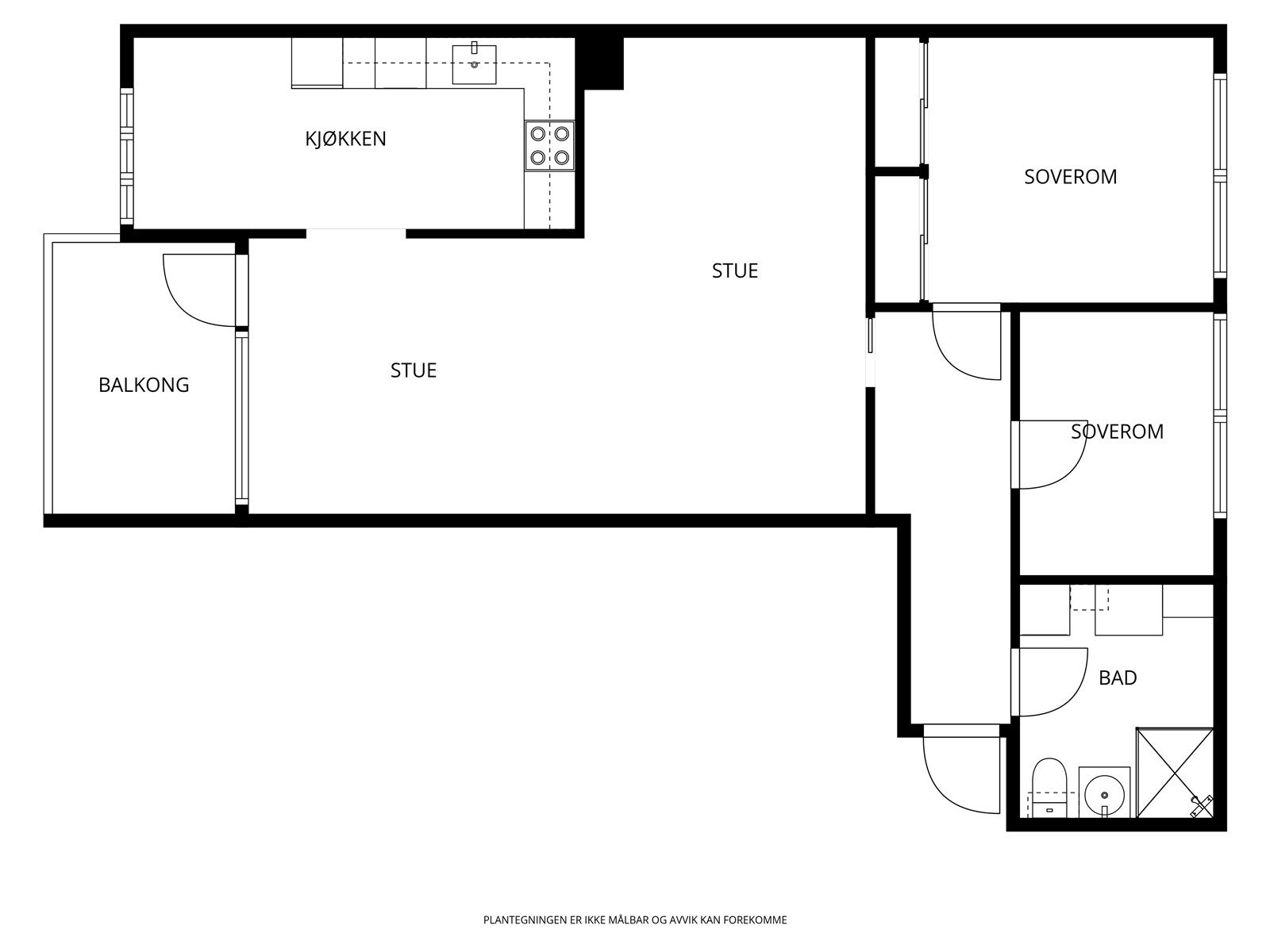
Romslig og lys 3-roms selveier utgang til solrik balkong med formiddag og ettermiddagssol. Medfølger garasjeplass i nabokjeller.
Leiligheten ligger i byggets 1. etg. (gateplan) fra baksiden og 2. etg. Fra hage.
Gang/entrè, flislagt bad med fliser på gulv. Badet har skap- og baderomsinnredning, dusjkabinett samt opplegg til vaskemaskin. To romslige soverom, med skyvedørsgarderobe på soverom 1. Stor stue med god plass til både sofagruppe og spisebord. Fra stue er det utgang til solrik balkong med formiddag og ettermiddagssol. Fra stuen er det inngang til kjøkken med profilerte fronter. Godt med skap og benkeplass. Hvitevarer på kjøkken medfølger.
Leiligheten disponerer 3 boder.
Romslig og lys 3-roms selveier utgang til solrik balkong med formiddag og ettermiddagssol. Medfølger garasjeplass i nabokjeller.
Leiligheten ligger i byggets 1. etg. (gateplan) fra baksiden og 2. etg. Fra hage.
Gang/entrè, flislagt bad med fliser på gulv. Badet har skap- og baderomsinnredning, dusjkabinett samt opplegg til vaskemaskin. To romslige soverom, med skyvedørsgarderobe på soverom 1. Stor stue med god plass til både sofagruppe og spisebord. Fra stue er det utgang til solrik balkong med formiddag og ettermiddagssol. Fra stuen er det inngang til kjøkken med profilerte fronter. Godt med skap og benkeplass. Hvitevarer på kjøkken medfølger.
Leiligheten disponerer 3 boder.
NB: Knappen for å vise hele beskrivelsen har kun en visuell effekt.
NB: Knappen for å vise hele beskrivelsen har kun en visuell effekt.
Salgsoppgaven beskriver vesentlig og lovpålagt informasjon om eiendommen
Se komplett salgsoppgaveNyttige lenker
Nærområdet
Eiendomsmegler Norge Kristiansand
Best der du bor
Annonseinformasjon
| FINN-kode | 447234476 |
|---|---|
| Sist endret | 21. jan. 2026 15:52 |
| Referanse | 50260010 |
Annonsene kan være mangelfulle i forhold til lovpålagt opplysningsplikt. Før bindende avtale inngås oppfordres interessenter til å innhente komplett informasjon fra meglerforetaket, selger eller utleier.































