Bildegalleri

Velkommen til Myrvegen 20 - En flott familiebolig over 3 plan med utleie i sokkeletasje.
Sveberg/Malvik
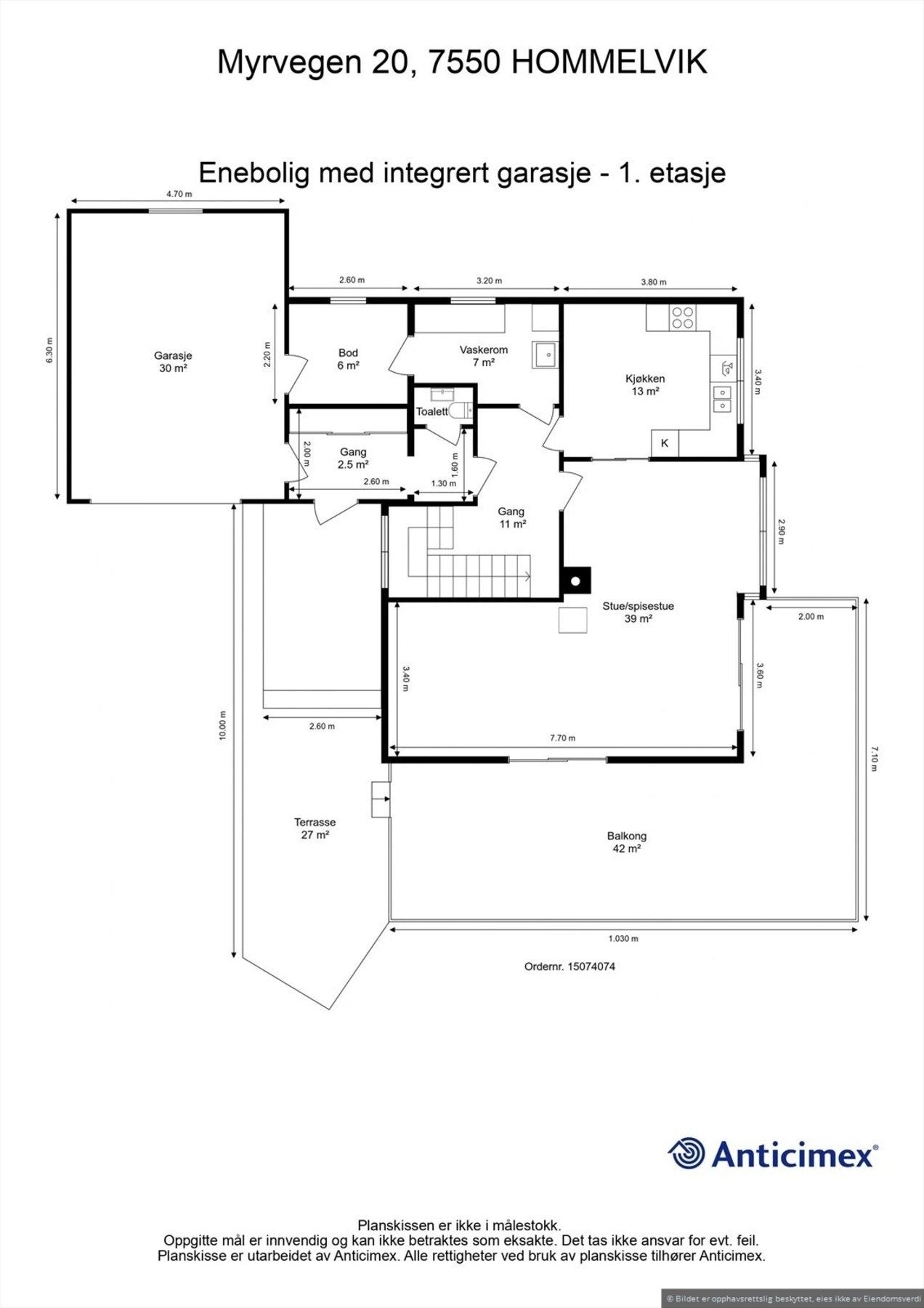
FLOTT ENEBOLIG M/UTLEIEDEL OG INTEGRERT GARASJE. 4 sov, to baderom og vaskerom. Nærhet til både sjøen og Malvikmarka.
Prisantydning6 590 000 kr
Nøkkelinfo
- Boligtype
- Enebolig
- Eieform
- Eier (Selveier)
- Soverom
- 4
- Internt bruksareal
- 238 m² (BRA-i)
- Bruksareal
- 238 m²
- Balkong/Terrasse
- 92 m² (TBA)
- Byggeår
- 1991
- Energimerking
- D - Gul
- Tomteareal
- 638 m² (eiet)
Fasiliteter
Barnevennlig
Balkong/Terrasse
Garasje/P-plass
Offentlig vann/kloakk
Peis/Ildsted
Turterreng
Rolig
Visning
onsdag, 11. februar
17:00 – 17:45
Velkommen til visning!
Alle våre visninger har påmelding. På denne måten sikrer vi at megler har god oversikt og tid til å imøtekomme alle interessenter på beste måte. Dette er veldig verdifullt for boligkjøpere og for oss. Det er enkelt å melde seg på, og du kan like enkelt melde deg av. Kontakt også gjerne megler i forkant av visning dersom du har spørsmål.
Om boligen
Stor, innholdsrik enebolig med suveren plassering på Sveberg. Huset omkranses av en frodig hage som pent innrammer tomta, og sola kan følges gjennom hele dagen fra hage og veranda. Boligen strekker seg over tre plan med 238 kvadratmeter i bruksareal med integrert garasje. En separat utleiedel gir gode leieinntekter.
Etterspurte kvaliteter:
- Lyse, åpne oppholdsrom med store vinduer.
- Installert varmepumpe og ildsted.
- Tre soverom.
- Loftstue.
- To bad og toalettrom.
- Vaskerom.
- God lagring i innvendige boder, hobbyrom og garasje.
- Gode leieinntekter fra separat utleiedel.
- Stor hage.
- Suveren plassering i blindgate uten gjennomgangstrafikk.
- Særdeles gode solforhold sommerstid.
- Nærhet til både barnehager, skole, idrettshall, nærbutikk og buss.
- Herlige turstier langs sjøen og skiløyper i Malvikmarka.
Velkommen til hyggelig visning!
Etterspurte kvaliteter:
- Lyse, åpne oppholdsrom med store vinduer.
- Installert varmepumpe og ildsted.
- Tre soverom.
- Loftstue.
- To bad og toalettrom.
- Vaskerom.
- God lagring i innvendige boder, hobbyrom og garasje.
- Gode leieinntekter fra separat utleiedel.
- Stor hage.
- Suveren plassering i blindgate uten gjennomgangstrafikk.
- Særdeles gode solforhold sommerstid.
- Nærhet til både barnehager, skole, idrettshall, nærbutikk og buss.
- Herlige turstier langs sjøen og skiløyper i Malvikmarka.
Velkommen til hyggelig visning!
NB: Knappen for å vise hele beskrivelsen har kun en visuell effekt.
NB: Knappen for å vise hele beskrivelsen har kun en visuell effekt.
Salgsoppgaven beskriver vesentlig og lovpålagt informasjon om eiendommen
Se komplett salgsoppgaveNyttige lenker
Nærområdet

PrivatMegleren Trondheim
Kun det beste på dine vegne
Annonseinformasjon
| FINN-kode | 447218847 |
|---|---|
| Sist endret | 05. feb. 2026 12:45 |
| Referanse | 114260004 |
Annonsene kan være mangelfulle i forhold til lovpålagt opplysningsplikt. Før bindende avtale inngås oppfordres interessenter til å innhente komplett informasjon fra meglerforetaket, selger eller utleier.





































