Bildegalleri

Velkommen til Storvollveien 100! - presentert av Thomas K. Johansen / Advanti & Partners
Leknes
Sjarmerende enebolig med romslig tomt og attraktiv beliggenhet
Prisantydning2 900 000 kr
Nøkkelinfo
- Boligtype
- Enebolig
- Eieform
- Eier (Selveier)
- Soverom
- 2
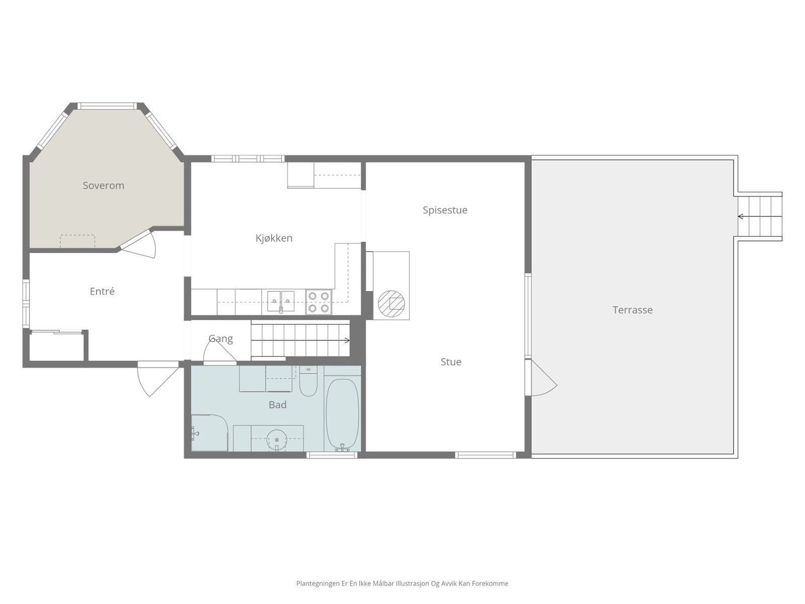
- Internt bruksareal
- 157 m² (BRA-i)
- Bruksareal
- 184 m²
- Eksternt bruksareal
- 27 m² (BRA-e)
- Balkong/Terrasse
- 49 m² (TBA)
- Etasje
- 2
- Byggeår
- 1948
- Rom
- 6
- Tomteareal
- 1 661 m² (eiet)
Fasiliteter
Balkong/Terrasse
Garasje/P-plass
Offentlig vann/kloakk
Ingen gjenboere
Peis/Ildsted
Turterreng
Utsikt
Sentralt
Rolig
Om boligen
Velkommen til Storvollveien 100!
Her presenteres en enebolig med utleiedel og en sentral og attraktiv beliggenhet i Leknes. Eiendommen ligger i et etablert og barnevennlig boligområde, med gangavstand til skoler, barnehager, butikker og alt Leknes sentrum har å by på.
Boligen er oppført i 1948 og byr på et betydelig potensial, både som romslig familiebolig og som en eiendom med mulighet for leieinntekter gjennom utleiedelen(utleiedelen er ikke godkjent). Dette gjør boligen spesielt attraktiv for deg som ønsker ekstra inntekt eller fleksible bruksmuligheter. Tomten er på ca. 1,6 mål og gir rikelig med uteplass for lek, rekreasjon og trivsel.
Med nærhet til både byliv og den storslåtte Lofot-naturen er dette en eiendom med mange muligheter og stort utviklingspotensial.
Velkommen til en hyggelig visning!
Her presenteres en enebolig med utleiedel og en sentral og attraktiv beliggenhet i Leknes. Eiendommen ligger i et etablert og barnevennlig boligområde, med gangavstand til skoler, barnehager, butikker og alt Leknes sentrum har å by på.
Boligen er oppført i 1948 og byr på et betydelig potensial, både som romslig familiebolig og som en eiendom med mulighet for leieinntekter gjennom utleiedelen(utleiedelen er ikke godkjent). Dette gjør boligen spesielt attraktiv for deg som ønsker ekstra inntekt eller fleksible bruksmuligheter. Tomten er på ca. 1,6 mål og gir rikelig med uteplass for lek, rekreasjon og trivsel.
Med nærhet til både byliv og den storslåtte Lofot-naturen er dette en eiendom med mange muligheter og stort utviklingspotensial.
Velkommen til en hyggelig visning!
NB: Knappen for å vise hele beskrivelsen har kun en visuell effekt.
NB: Knappen for å vise hele beskrivelsen har kun en visuell effekt.
Salgsoppgaven beskriver vesentlig og lovpålagt informasjon om eiendommen
Se komplett salgsoppgaveNyttige lenker
Nærområdet
Advanti & Partners
Verdien av lokalkunnskap
Annonseinformasjon
| FINN-kode | 447210806 |
|---|---|
| Sist endret | 02. feb. 2026 05:03 |
| Referanse | 101250002 |
Annonsene kan være mangelfulle i forhold til lovpålagt opplysningsplikt. Før bindende avtale inngås oppfordres interessenter til å innhente komplett informasjon fra meglerforetaket, selger eller utleier.














































