Bildegalleri

Christer Langstrand v/EIE eiendomsmegling har gleden av å presentere Lunderenga 6!
FROGNER / LUNDERÅSEN
Sjelden mulighet! | Landlig idyll med karakter | Romslig hovedbolig, tun og flere bygninger | Flere parkeringsmuligheter
Prisantydning13 500 000 kr
Nøkkelinfo
- Boligtype
- Enebolig
- Eieform
- Eier (Selveier)
- Soverom
- 6
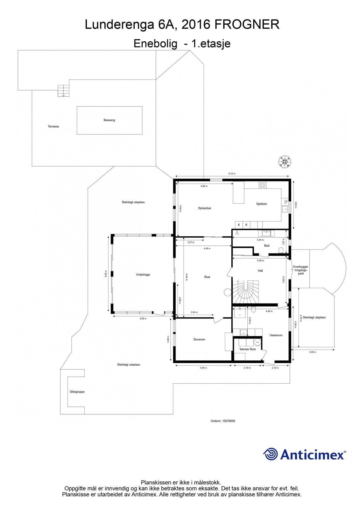
- Internt bruksareal
- 295 m² (BRA-i)
- Bruksareal
- 467 m²
- Eksternt bruksareal
- 172 m² (BRA-e)
- Balkong/Terrasse
- 256 m² (TBA)
- Byggeår
- 2013
- Energimerking
- B - Lysegrønn
- Tomteareal
- 5 628 m² (eiet)
Fasiliteter
Barnevennlig
Balkong/Terrasse
Garasje/P-plass
Offentlig vann/kloakk
Peis/Ildsted
Turterreng
Moderne
Rolig
Visning
søndag, 01. februar
14:00 – 15:00
For å yte premium rådgivning, har alle våre visninger påmelding. Dette sikrer at megler har god oversikt og tid til å imøtekomme alle interessenter på aller beste måte. Dersom ingen interessenter er påmeldt, kan visningen bli avlyst.
mandag, 02. februar
17:00 – 18:00
For å yte premium rådgivning, har alle våre visninger påmelding. Dette sikrer at megler har god oversikt og tid til å imøtekomme alle interessenter på aller beste måte. Dersom ingen interessenter er påmeldt, kan visningen bli avlyst.
Om boligen
Velkommen til Lunderenga 6 A & B - en romslig og særpreget eiendom i rolige, landlige omgivelser på Frogner. Her får du en moderne enebolig med god planløsning over to etasjer, store oppholdsrom og rikelig med plass til både familie og gjester. Boligen byr på flere stuer, mange soverom og gode soner for både hverdagsliv og sosiale sammenkomster.
Eiendommen har et tydelig småbrukspreg med et hyggelig tun og flere bygninger, som gir både karakter og fleksibilitet. Den eldre bygningsmassen tilfører eiendommen særpreg og historie, mens hovedboligen dekker dagens behov for komfort og funksjon.
Beliggenheten er skjermet og barnevennlig, med nærhet til natur, turmuligheter, skole og barnehage, samtidig som Frogner sentrum og togforbindelse nås på kort tid. Dette er et sted for deg som ønsker god plass, ro og landlige omgivelser - uten å gi slipp på tilgjengelighet.
Eiendommen har et tydelig småbrukspreg med et hyggelig tun og flere bygninger, som gir både karakter og fleksibilitet. Den eldre bygningsmassen tilfører eiendommen særpreg og historie, mens hovedboligen dekker dagens behov for komfort og funksjon.
Beliggenheten er skjermet og barnevennlig, med nærhet til natur, turmuligheter, skole og barnehage, samtidig som Frogner sentrum og togforbindelse nås på kort tid. Dette er et sted for deg som ønsker god plass, ro og landlige omgivelser - uten å gi slipp på tilgjengelighet.
NB: Knappen for å vise hele beskrivelsen har kun en visuell effekt.
NB: Knappen for å vise hele beskrivelsen har kun en visuell effekt.
Salgsoppgaven beskriver vesentlig og lovpålagt informasjon om eiendommen
Se komplett salgsoppgaveNyttige lenker
Nærområdet
EIE eiendomsmegling Lørenskog
Annonseinformasjon
| FINN-kode | 447103048 |
|---|---|
| Sist endret | 23. jan. 2026 19:42 |
| Referanse | 32250281 |
Annonsene kan være mangelfulle i forhold til lovpålagt opplysningsplikt. Før bindende avtale inngås oppfordres interessenter til å innhente komplett informasjon fra meglerforetaket, selger eller utleier.




















































































