Bildegalleri

Velkommen til Teigen 11 presentert av Notar v/Henrik Pettersen! Foto: Blåtind Fotografikk

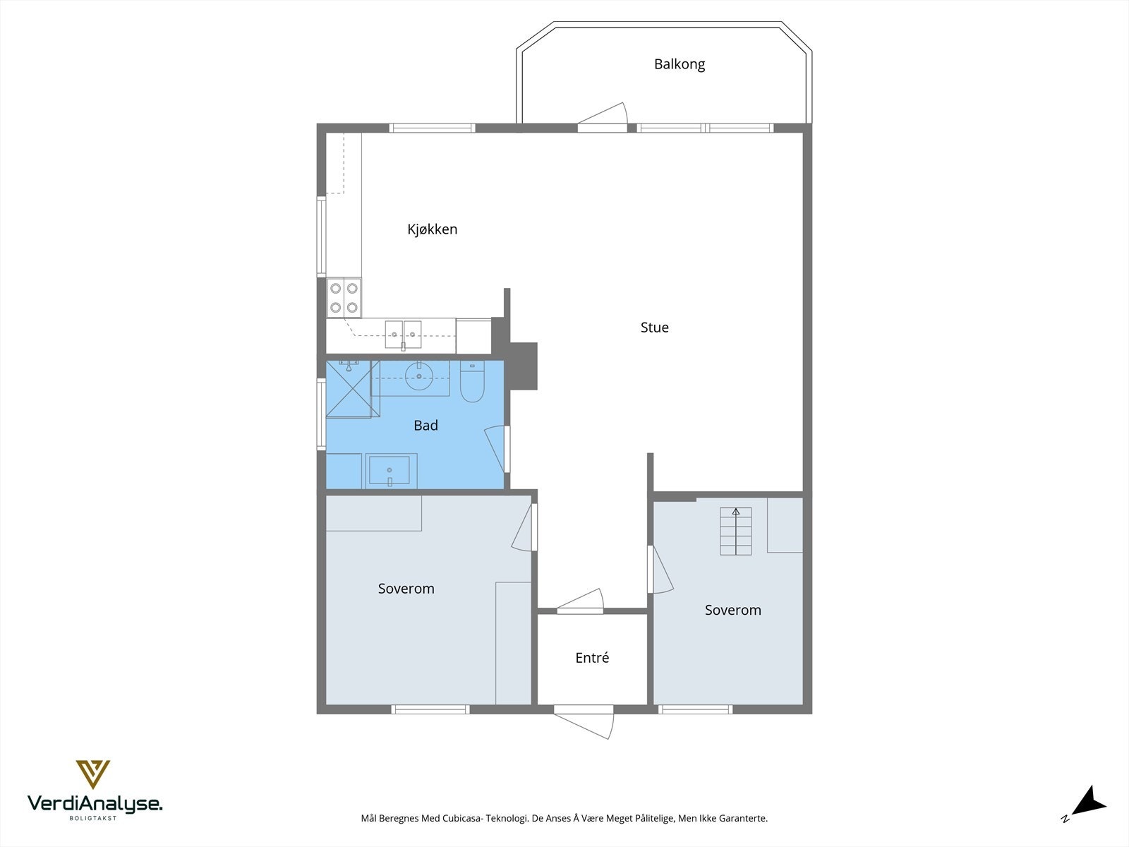
Leilighet med sentral beliggenhet på Hareid | 2 Soverom | Nydelig utsikt

Prisantydning1 590 000 kr
Totalpris
1 642 740 kr
Omkostninger
52 740 kr
Felleskost/mnd.
1 000 kr
Fellesformue
6 700 kr
Kommunale avg.
13 080 kr per år
Eiendomsskatt
4 712 kr per år
Formuesverdi
250 000 kr
Verditakst
1 600 000 kr

Nøkkelinfo

Boligtype
Leilighet
Eieform
Eier (Selveier)
Soverom
2
Internt bruksareal
78 m² (BRA-i)
Bruksareal
82 m²
Eksternt bruksareal
4 m² (BRA-e)
Balkong/Terrasse
7 m² (TBA)
Etasje
2
Byggeår
1994
Energimerking
D - Gul
Rom
3
Tomteareal
1 358 m² (eiet)

Les mer om bruksareal her

Fasiliteter

Balkong/Terrasse
Garasje/P-plass
Kjæledyr tillatt
Offentlig vann/kloakk
Rolig
Sentralt
Utsikt
Turterreng

Visning

Ta kontakt for å avtale visning.Visningspåmelding

Om boligen

Velkommen til Teigen 11! En selveierleilighet med sentral beliggenhet på Hareid. Leiligheten er bygget i 1994 og inneholder bl.a. 2 soverom, bad, stue, kjøkken og utvendig bod. Parkering på felles oppstillingsplass. Eiendommen ligger fint til i Teigen. Her er det fin utsikt og solforhold. Kort vei til sentrum, skole, barnehage, turområder, idrettsanlegg og båtforbindelser (ferje og hurtigbåt).

Velkommen til visning!

Salgsoppgaven beskriver vesentlig og lovpålagt informasjon om eiendommen

Se komplett salgsoppgave

Nærområdet

Annonseinformasjon

FINN-kode447066125
Sist endret20. jan. 2026 18:06
ReferanseNO1.25229

Rapporter annonse

Annonsene kan være mangelfulle i forhold til lovpålagt opplysningsplikt. Før bindende avtale inngås oppfordres interessenter til å innhente komplett informasjon fra meglerforetaket, selger eller utleier.