Bildegalleri

Velkommen til en stilren og moderne leilighet i Løvstadvegen 5!
Stilren & praktisk 2-roms leilighet med svært attraktiv beliggenhet i Ottestad/ Bekkelaget. Kort vei til Hamar!
Nøkkelinfo
- Boligtype
- Leilighet
- Eieform
- Eier (Selveier)
- Soverom
- 1
- Internt bruksareal
- 47 m² (BRA-i)
- Bruksareal
- 53 m²
- Eksternt bruksareal
- 6 m² (BRA-e)
- Etasje
- 2
- Byggeår
- 2021
- Energimerking
- B - Mørkegrønn
- Tomteareal
- 2 500 m² (eiet)
Fasiliteter
Visning
Om boligen
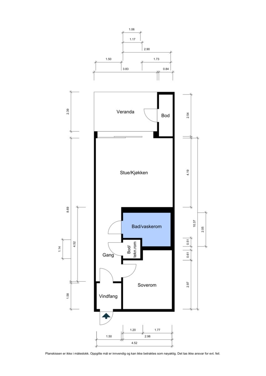
Løvstadvegen 5 - Velkommen til en stilig, nyere 2-roms leilighet med attraktiv beliggenhet i Bekkelaget/Ottestad i Stange kommune. Leiligheten fremstår som moderne og arealeffektiv med et tidløst kjøkken m/ integrerte hvitevarer. Kjøkkenet ligger i åpen løsning med stuen, med gode muligheter for møblering og utgang til balkong. Et delikat flislagt bad med opplegg for vaskemaskin. 1 soverom med romslig garderobe. Leiligheten har kvaliteter som vannbåren varme i gulv og balansert ventilasjon.
- 1 innvendig bod/teknisk rom.
- 1 bod i felles bodanlegg.
- 1 utvendig bod ved balkong.
- Ingen TG2/3.
I gangavstand finner du flotte turområder, kollektivtilbud og varierte butikker på Vikasenteret. Hamar sentrum ligger ca. 5 minutter fra i kjøreavstand.
Velkommen til en hyggelig visning - husk påmelding!
Salgsoppgaven beskriver vesentlig og lovpålagt informasjon om eiendommen
Se komplett salgsoppgaveNyttige lenker
Nærområdet
Partners Eiendomsmegling Hamar
Annonseinformasjon
| FINN-kode | 446904370 |
|---|---|
| Sist endret | 01. feb. 2026 03:16 |
| Referanse | 95250062 |
Annonsene kan være mangelfulle i forhold til lovpålagt opplysningsplikt. Før bindende avtale inngås oppfordres interessenter til å innhente komplett informasjon fra meglerforetaket, selger eller utleier.
































