Bildegalleri

Her har vi gleden av å presentere en lekker og innbydende enebolig med utsikt, fint beliggende på ettertraktede Jar.
Arkitekttegnet og innholdsrik familiebolig fra 2025 | Dobbelgarasje | Hybel | Utsikt | Ubebodd og innflytningsklar
Nøkkelinfo
- Boligtype
- Enebolig
- Eieform
- Eier (Selveier)
- Soverom
- 4
- Internt bruksareal
- 238 m² (BRA-i)
- Bruksareal
- 238 m²
- Balkong/Terrasse
- 74 m² (TBA)
- Byggeår
- 2025
- Rom
- 7
- Tomteareal
- 1 985 m² (eiet)
Fasiliteter
Om boligen
Velkommen til Ringstabekkveien 58
En lekker og innbydende enebolig med utsikt, fint beliggende på ettertraktede Jar. Boligen er kun tilknyttet nabohuset i underetasjen ved garasjene, og oppleves derfor som en frittliggende enebolig.
Beliggende i et populært, rolig område samtidig som det er kort vei til alt - dette er en mulighet du ikke vil gå glipp av!
Boligen kort oppsummert:
- Byggeår 2025
- Utsikt fra stue og balkong.
- Flere uteplasser
- Lekkert design med store vindusflater og gode lysforhold.
- Masteravdeling med eget bad
- Snekkerbygd kjøkken.
- 3 delikate bad og 4 gode soverom.
- Vaskerom
- Flere oppholdssoner for familien.
- Peis
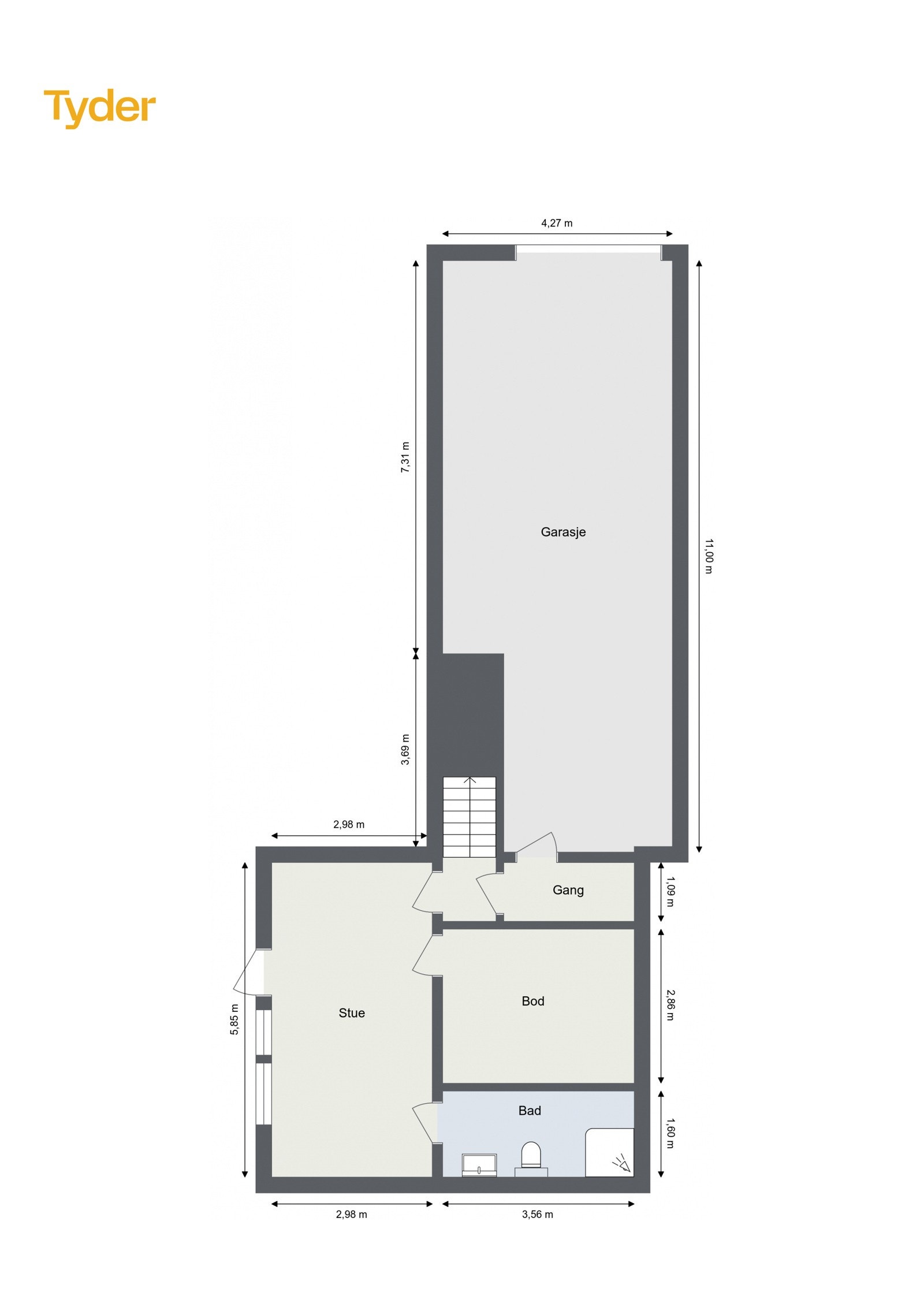
- Dobbelgarasje integrert i boligen.
- Lagringsplass.
- Underetasje med egen inngang.
- Mulighet for hybel.
Salgsoppgaven beskriver vesentlig og lovpålagt informasjon om eiendommen
Se komplett salgsoppgaveNyttige lenker
Nærområdet

PrivatMegleren Dyve & Partnere
Elise Høiberg Lien
Annonseinformasjon
| FINN-kode | 446868701 |
|---|---|
| Sist endret | 05. feb. 2026 03:12 |
| Referanse | 159240580 |
Annonsene kan være mangelfulle i forhold til lovpålagt opplysningsplikt. Før bindende avtale inngås oppfordres interessenter til å innhente komplett informasjon fra meglerforetaket, selger eller utleier.





























































