Bildegalleri

Velkommen til en stor og fin 3-roms andelsleilighet i sentrale Bruveien 2. (Digital styling)
Pent oppusset 3-roms leilighet i 5.etg, heis, sentralt i Lierbyen. Kjøkken fra 2023. 16m² balkong m/ utsikt og mye sol.
Nøkkelinfo
- Boligtype
- Leilighet
- Eieform
- Andel
- Soverom
- 2
- Internt bruksareal
- 71 m² (BRA-i)
- Bruksareal
- 76 m²
- Eksternt bruksareal
- 5 m² (BRA-e)
- Balkong/Terrasse
- 16 m² (TBA)
- Etasje
- 5
- Byggeår
- 1989
- Energimerking
- D - Rød
- Rom
- 3
- Tomteareal
- 4 059 m² (eiet)
Fasiliteter
Visning
Om boligen
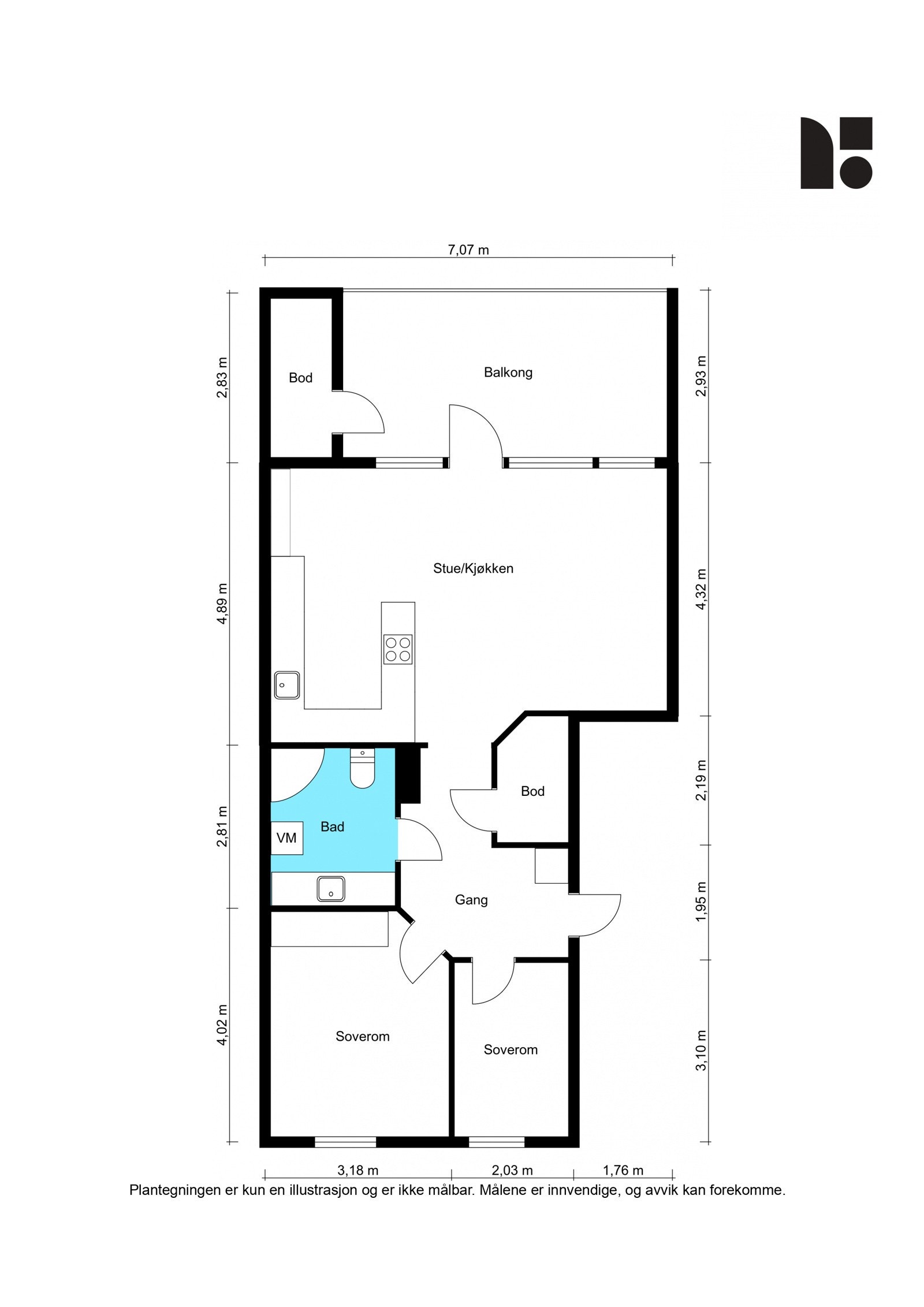
Bruveien 2 er en supersentral 3-roms leilighet midt i sentrum av Lierbyen. Bor du her har du enkel tilgang til alle servicetilbud som bla. butikker, apotek, spisesteder, barnehage og skoler. Det er også kort vei til Lierelva med fin tursti, og flere markaomrråder for hele familien.
Leiligheten ligger høyt og fint i byggets 5. etasje, og har enkel adkomst via heis. Solen kan nytes på stor og delvis overbygd balkong, med fin utsikt over området.
Innvendig består leiligheten av entré med tilliggende bod, stue og kjøkkeni åpen løsning, bad m/opplegg for vaskemaskin, og 2 soverom. Leiligheten ble oppgradert med nytt og lekkert kjøkken i 2023. Det medfølger to boder med god lagringsplass, og det er mulighet for garasjeleie i nabolaget.
Velkommen til hyggelig visning!
Salgsoppgaven beskriver vesentlig og lovpålagt informasjon om eiendommen
Se komplett salgsoppgaveNyttige lenker
Nærområdet
Proaktiv Eiendomsmegling Drammen, Lier & Holmestrand
Annonseinformasjon
| FINN-kode | 446577865 |
|---|---|
| Sist endret | 02. feb. 2026 03:14 |
| Referanse | 106260003 |
Annonsene kan være mangelfulle i forhold til lovpålagt opplysningsplikt. Før bindende avtale inngås oppfordres interessenter til å innhente komplett informasjon fra meglerforetaket, selger eller utleier.





























