Bildegalleri

Skogvegen 20 på Vessia
VESSIA - Koselig og fin 3-roms i 4. etasje i høyhusa- nytt bad i 2025
Nøkkelinfo
- Boligtype
- Leilighet
- Eieform
- Andel
- Soverom
- 2
- Internt bruksareal
- 71 m² (BRA-i)
- Bruksareal
- 79 m²
- Innglasset balkong
- 8 m² (BRA-b)
- Etasje
- 4
- Byggeår
- 1964
- Rom
- 4
- Tomteareal
- 22 090 m² (eiet)
Fasiliteter
Beliggenhet
Boligen ligger på Vessia i Porsgrunn.
Det er gangavstand til det lokale Vessia sentrum med matforretninger, andre småbutikker og kun en kort spasertur til Porsgrunn og kjøpesenteret "Down Town". Ved elva og i åsen på Vessia er det flotte turområder og treningssenteret "Sats". Kort vei til Porsbanen, skole og barnehager.
De nærmeste barnehagene Vestsiden barnehage og Norlandia idrettsbarnehage. Skolekretsen er til Vessia Skole.
Innhold
Leiligheten inneholder:
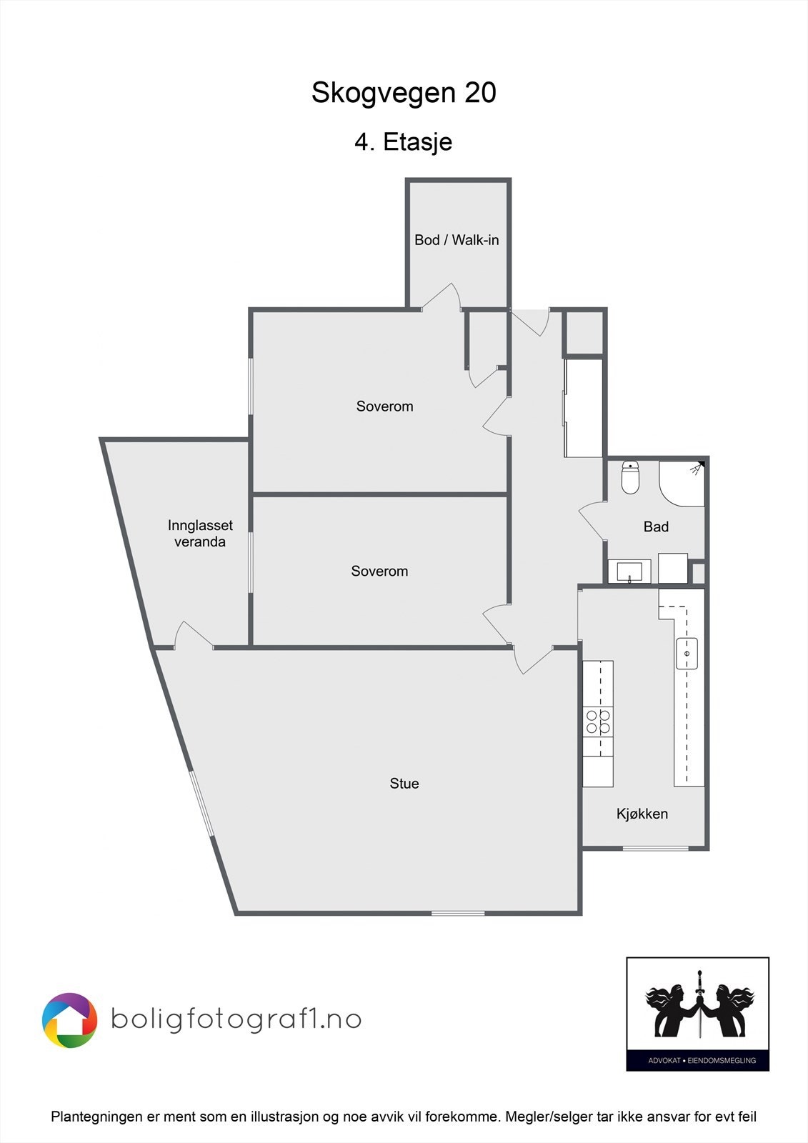
Entré, to soverom, bad- og toalettrom, stue og kjøkken og en bod
I tillegg disponeres ett bodrom i kjeller. Innglasset balkong.
BRA: 79 m²
BRA-I: 71 m². Entré, 2 soverom, bad, stue, kjøkken og bod
BRA-B: 8 m². Innglasset balkong
P-ROM: 67 m²
S-ROM: 4m²
Vedlagte plantegning er ikke målbare.
Arealene er hentet fra tilstandsrapport av 31.12.2025 oppmålt av takstmann Glenn Espen Rognlien. Leiligheten er ikke kontrollmålt av megler.
Tomtebeskrivelse
Eiet tomt, 22090 m2
Bebyggelse
Høyås Borettslag, org. nr. 948461331
Andelsnummer: 2632
Byggeår: 1964
Borettslaget består av 96 boliger fordelt på to høyblokker.
Bygningen: Byggene består av betong og mur. Det er heis i blokkene.
Borettslaget har en fin lekeplass
Borettslaget har fellesvaskeri i kjelleretasjen.
Parkeringsplass og garasjer ( det medfølger ikke garasje til denne boligen)
Det foreligger tilstandsrapport av 31.12.2025, med befaringsdato 18.12.2025 gjennomført av takstmann Glenn Espen Rognlien fra firmaet Nord Taksering AS. Det er kommentert at boligen har behov for enkelte oppgraderinger av overflater, men ellers har boligen normal standard. Bygningen er jevnlig vedlikeholdt av borettslaget. Det er gitt gjennomgående gode tilstandsvurderinger for boligen, som TG 0, TG 1 og TG 2. Det er gitt kun en TG 3 og som gjelder manglende montert avtrekksvifte på kjøkkenet. Hele tilstandsrapporten er inntatt i salgsoppgaven
Tilstandsgrader som fremgår av rapporten:
Antall TG0 er 3 stk
Antall TG1 er 9 stk
Antall TG2 er 9 stk
Antall TG3 er 1 stk
TG 0 er ingen avvik, TG1 er velfungerende forhold/mindre eller moderate avvik, TG2 er avvik som ikke krever eller kan kreve tiltak, men forhold som må påregnes utbedret på sikt, og TG3 er forhold /avvik som må beregnes utbedret omgående.
VEDLIKEHOLD i regi av borettslag, de seneste årene:
- 2025 - Rehabilitering av bad inkl. brorparten av vann- og avløpsrør
- 2019 - Innglasset balkonger
- 2003 - Nye vinduer og balkongdør
- 2002 - Sikringsskap med automatsikringer
VEDLIKEHOLD fra selger
- 2025 - Enkelte nye stikkontakter / brytere
- 2008 - Ikea kjøkkeninnredning
Planlagt vedlikehold i regi av borettslaget:
Nye heiser
Styreleder:
Navn: Aud Helene Kjørsvik
Tlf: 948 68 432
e-post: borettslag@mittpbbl.no
Standard
En koselig leilighet med god planløsning og slette fine veggflater. Det er overbygget innglasset balkong med usjenert beliggenhet, med plass til en liten sittegruppe. Da leiligheten ligger i 4.etasje er det kort veg opp til boligen enten om man vil bruke trappene eller ta heisen. Flatene i leiligheten har belegg, laminat og teppe. Veggene er tapetserte og malte veggoverflater. Det er malt betongdekke i himling.
STUEN
Lys og pen stue, med laminat gulv og malte lyse veggflater. Det er noe bruksslitasje på flatene bl.a. i stuen og det mangler en del listverk. Utgang til balkong fra stuen. Glimt til elva fra stue- og kjøkkenvinduet.
KJØKKENET (TG 2)
Pent og koselig kjøkken med plass til liten sittegruppe ved vinduet. Klassisk og innholdsrik Ikea kjøkkeninnredning med slette flater fra 2008. Det er nedfelt dobbelt stålkum i heltre benkeplate og det er montert Watergard. Frittstående oppvaskmaskin og komfyr medfølger. Kjøl- og frys medfølger ikke. Det er foretatt fuktsøk på kjøkken og det er ikke registrert avvik. Det er ikke montert ventilator på kjøkken (TG 3).
BAD (TG 1)
Lekkert flislagt baderom med varmekabler på gulv. Det er opplegg til vaskemaskin på baderommet og vaskemaskinen medfølger. Baderommet har vegghengt toalett, servant med skap, og dusjkabinett. Badet er renovert i borettslagets regi i 2025. Etter renoveringen av badene så ble varmtvannstanken som tidligere sto på kjøkkenet, plassert i kjeller.
2 SOVEROM
To pene soverom, malte flate vegger og en vegg på det ene soverommet med lekker tapet av nyere dato. Det er teppe på gulv på det ene soverommet av nyere dato. Soverommene er noe oppgradert den seneste tiden. Fra hovedsoverommet er det inngang til bod / walk-in. Det medfølger garderobeskap.
ENTRÈ
I entrèen er det garderobeskap og vegghengt sko skap og evt. kommode som medfølger.
Oppvarming
Boligens oppvarmingskilder er elektrisitet. Kun panelovner som er veggmontert på visningen medfølger. Det er elektriske varmekabler på badet.
Adkomst
Fra Porsgrunnsbrua, etter ca. 500 m, så tar man til høyre inn mot Moldhuagvegen og kjører oppover bakken til den svinger til venstre inn på Vestheimvegen. Etter ca. 300 meter er det første til høyre og du er i Skogvegen og ser blokkene. Følg ASKK's visningsskilt så finner du fint frem. Velkommen til visning!
Parkering
Det er parkering på felles biloppstillingsplass. Det kan være mulighet for garasje når noen i blokkene selger disse. Henvendelse til GBBL dersom man ønsker garasje.
Kommentar fellesgjeld
Fellesgjelden for denne bopelen pr. 17.12.2025 er på kr. 272.651,- og er fordelt på følgende felleslån:
Lånenummer: 11494914 2, Husbanken
Annuitetslån, 2 terminer per år.
Rentesats per 17.12.2025: 1.41% pa.
Antall terminer til innfrielse: 19
Saldo per 17.12.2025: 15 018 876
Andel av saldo: 156 447
Første termin/første avdrag: 31.12.2007 ( siste termin 31.12.2034 )
Fastrente 1,42% frem til 1.7.2030
Lånenummer: 12137280319, DNB BANK ASA
Annuitetslån, 4 terminer per år.
Rentesats per 17.12.2025: 5% pa.
Antall terminer til innfrielse: 93
Saldo per 17.12.2025: 11 155 694
Andel av saldo: 116 205
Første termin/første avdrag: 30.03.2019 ( siste termin 30.12.2048 )
Det vil påløpe ytterligere fellesgjeld i borettslaget i løpet av 2026-2027 grunnet rehabilitering av bad og planlagte nye heiser og dette vil øke de månedlige felleskostnadene.
Borettslaget er sikret i Skadeselskapet Borettslagenes Sikringsfond A/S. Borettslaget er sikret mot tap som følge av at en andelseier unnlater å betale sine felleskostnader. Avtalen om sikring er gyldig til avtalen sies opp av en av partene. Oppsigelsesfrist er 1. desember med gyldighet fra kommende årsskifte.
Felleskostnader inkluderer
De månedlige felleskostnadene er pr. 01.01.2026 kr. 6.900,- og er fordelt slik:
Kr. 651,-,- Renter
kr. 1.532,- Avdrag
Kr. 4.717,- Fellesutgifter
Utover dekning av avdrag og renter på fellesgjeld, dekker felleskostnader forsikring, utvendig vedlikehold, forretningsførsel, heisservice, kommunale avgifter honorar til styret i borettslaget og andre driftsutgifter. Borettslaget har Canal digital TV og bredbånd/internett inkludert i felleskostnadene. Borettslaget har satt bort utvendig sommer- og vintervedlikehold, slik som plenklipping, måking, strøing mv. og dette er inkludert i felleskostnadene. Trappene vaskes etter liste og er ikke inkludert i felleskostnadene.
Borettslaget har varslet om økning av fellesgjeld og felleskostnader grunnet rehabiliteringsjobbe med nye bad, vann-avløp og nye heiser. Økningen som er varslet skjer i perioden 2025 - 2027 og brevet fra borettslaget er inntatt i salgsoppgaven. Det fremgår der at det vil være en økning på kr. 2.500,-(fra 2025-2027), men deler av denne økningen har allerede skjedd og er inntatt i felleskostnadene på kr. 6.900,-. Utifra brevet fra borettslaget så er det ventet ytterligere kr. 1.200,- i økning (kr. 700,- + kr. 500, ), og i henhold til informasjon fra regnskapsfører er det estimert at det vil være en ytterligere økning på ca. kr. 800,-. Så estimert økning pr. d.d., i løpet av 2026-2027, er på kr. 2.000,-, dvs. til måndelige kostnader på totalt kr. 8.900,-. Beløpet er ikke eksakt da dette beror bl.a. på rentebetingelser og kostnader for borettslaget.
Eierskifteforsikring
Selger har tegnet eierskifteforsikring i Gjensidige boligselgerforsikring.
Overtagelse
Overtagelse etter avtale. Det er mulighet for snarlig overtagelse.
Sentrale lover
AVHENDINGSLOVEN
Eiendommen selges etter reglene i avhendingsloven.Eiendommen skal overleveres kjøper i tråd med det som er avtalt. Det er viktig at kjøper setter seg grundig inn i alle salgsdokumentene, herunder salgsoppgave, tilstandsrapport og selgers egenerklæring. Kjøper anses kjent med forhold som er tydelig beskrevet i salgsdokumentene. Forhold som er beskrevet i salgsdokumentene kan ikke påberopes som mangler. Forbehold om eiendommens tilstand som er spesifisert tilstrekkelig anses som en del av avtalen, og vil derfor ikke kunne påberopes som en mangel. Dette gjelder uavhengig av om kjøper har lest dokumentene. Alle interessenter oppfordres til å undersøke eiendommen nøye, gjerne sammen med fagkyndig før bud inngis. Kjøper som velger å kjøpe usett kan ikke gjøre gjeldende som mangel noe han burde blitt kjent med ved undersøkelsen. Det samme gjelder unnlatelse av å undersøke forhold på visning / før bud inngis. Dersom det er behov for avklaringer, anbefaler vi at kjøper rådfører seg med megler eller en bygningssakyndig før det legges inn bud.
Hvis eiendommen ikke er i samsvar med det kjøperen må kunne forvente ut ifra alder, type og synlig tilstand, kan det være en mangel. Det samme gjelder hvis det er holdt tilbake eller gitt uriktige opplysninger om eiendommen og dette har virket inn på avtalen.Det kan ikke forventes at en eldre bolig har samme tilstand som en ny eller nyere bolig. En bolig som har blitt brukt i en viss tid, har vanligvis blitt utsatt for slitasje og skader kan ha oppstått. Slik bruksslitasje må kjøper regne med, og det kan avdekkes enkelte forhold etter overtakelse som nødvendiggjør utbedringer. Normal slitasje og skader som nødvendiggjør utbedring, er innenfor hva kjøper må forvente og vil ikke utgjøre en mangel.
Boligen kan ha en mangel dersom det er avvik mellom opplyst og faktisk areal, forutsatt at avviket er på 2% eller mer og minimum 1 kvm, og kjøper la vekt på opplysningen. Ved beregning av et eventuelt prisavslag eller erstatning må kjøper selv dekke tap/kostnader opptil et beløp på kr 10 000 (egenandel).
Dersom kjøper ikke er forbruker selges eiendommen som den er , og selgers ansvar er da begrenset jf. avhl. § 3-9, 1. ledd 2. pkt. Informasjon om kjøpers undersøkelsesplikt, herunder oppfordringen om å undersøke eiendommen nøye, gjelder også for kjøpere som ikke anses som forbrukere. Med forbrukerkjøp menes kjøp av eiendom når kjøperen er en fysisk person som ikke hovedsakelig handler som ledd i næringsvirksomhet.
AVHENDINGSLOVEN - OM LØSØRE
I lov om avhending av fast eiendom fremgår at eiendommen skal overdras med de innredninger og gjenstander som etter lov, forskrift eller annet offentlig vedtak skal være der. Varige innretninger og utstyr, som enten er fastmontert eller særskilt tilpasset boligen medfølger. Bestemmelsene kan fravikes ved avtale mellom kjøper og selger. Dersom ikke annet er opplyst / særskilt avtalt så gjelder NEFs liste over løsøre og tilbehør som angir hva som bør følge med boliger for salg.
BORETTSLAGSLOVEN
Ved kjøp av en borettslagsleilighet så gjelder lov om burettslag. Et borettslag er et selskap som eies av andelseierne. Når du kjøper en bolig i et borettslag så blir du andelseier i selskapet og får borett til boligen. Det er i utgangspunktet kun privatpersoner som kan kjøpe og eie slike leiligheter, men det er særregler slik at også noen juridiske enheter kan eie borettslagsleiligheter.
BORETTSLAGSLOVEN- OM GODKJENELSE
Styret i borettslaget må godkjenne ny kjøper for denne kan overta boligen. Det må foreligge en saklig begrunnelse for å nekte godkjenning. Megler sørger for at slik søknad innsendes.
BORETTSLAGSLOVEN - OM FORKJØPSRETT
Dette borettslaget er et tilknyttet borettslag som innebærer at forkjøpsretten må utlyses til boligbyggelagets medlemmer og boligbyggelagets samarbeidende boligselskaper. Megler får tilbakemelding GBBL når forkjøpsretten er avklart. Dersom forkjøpsretten blir benyttet så innebærer dette at forkjøpsrettsberettiget trer inn i avtalen som allerede foreligger mellom selger og den som har fått sitt bud akseptert. Ved spørsmål om forkjøpsrett, kontakt GBBL eller megler.
BORETTSLAGSLOVEN - OM UTLEIE
Andelseiere kan ikke uten skriftlig samtykke fra styret i borettslaget overlate bruken av boligen til andre. Med samtykke kan andelseiere overlate bruken til andre i inntil tre år, forutsatt at andelseierne selv har bodd i boligen i minst ett av de to siste årene. Utleie i andre tilfeller kan godtas ved særlige grunner, jfr. lovens § 5-6. Utleie forutsetter at leiligheten har forsvarlige radonverdier. Det er lov å leie ut egen bolig i 30 døgn pr. år, forutsatt at det er andelseier som selv bor i boligen. Ytterligere informasjon kontakt megler eller styreleder i det enkelte borettslag.
BORETTSLAGSLOVEN - OM HUSDYRHOLD
Borettslagsloven setter rammer for hva som er tillatt av dyrehold i et borettslag. De fleste borettslag har slike regler nedfelt i ordensreglene. Av borettslagets husordensregler fremgår det at det ikke er tillatt med dyr, men man kan søke styret om å holde hund eller innekatt og dyreholdet forutsetter at det foreligger skriftlig tillatelse fra styret i borettslaget. Styret kan samtykke i at brukeren av boligen kan ha husdyr dersom gode grunner taler for det og og dyreholdet ikke er til ulempe, f.eks. allergi for de andre brukerne av eiendommen. Borettslagets husordensregler er vedlagt salgsoppgaven.
VEDTEKTER, ORDENSREGLER OG REGNSKAP FOR BORETTSLAGET
Vedtekter, ordensregler og siste års regnskap for borettslaget er inntatt i salgsoppgaven.
Boligkjøperforsikring
HELP boligkjøperforsikring kan tegnes ved kjøp av boligen. Dette er en rettshjelpsforsikring som gir profesjonell juridisk hjelp dersom det oppdages uventede feil eller mangler ved boligen de neste fem årene. Forsikringen har en egenandel og det er frivillig å tegne forsikringen. Les mer om forsikringen på www.help.no. Kontakt megler for ytterligere informasjon. Det gjøres oppmerksom på at firmaet som formidler forsikringer for Help mottar godtgjørelse for dette
Hvitvaskingsregelverk
Eiendomsmeglere er underlagt lov om hvitvasking og er forpliktet til å rapportere til Økokrim om mistenkelige transaksjoner. Lov om hvitvasking innehar også strenge regler om kontroll av legitimasjon fra alle parter i handelen, herunder, selger, kjøper og fullmektiger for disse.
Personopplysningsloven
I henhold til personopplysningsloven gjør vi oppmerksom på at interessenter kan bli registrert for videre oppfølgning.
Budgivning
BUDGIVNING
Alle bud skal inngis skriftlig til megler. Det første budet skal inngis enten ved bud-app med digital signatur eller skriftlig på budskjema som er inntatt i salgsoppgaven, påført budgivers signatur. I tillegg må budgiver ha legitimert seg. Senere bud kan inngis per e-post eller SMS til ansvarlig megler på oppdraget. Megler skal så snart som mulig bekrefte skriftlig overfor budgiver at bud er mottatt. Bud som ikke er skriftlig, eller som har kortere akseptfrist enn til kl. 12.00 første virkedag etter siste annonserte visning, vil ikke bli formidlet til selger. Et bud er bindende for budgiver når budet er kommet til selgers kunnskap. Selger står fritt til å akseptere eller forkaste ethvert bud, og er således ikke forpliktet til å akseptere det høyeste budet på eiendommen.
Megler skal, i den grad det er nødvendig og mulig, informere de involverte i budrunden skriftlig om status i budgivningen. Megler er forpliktet til å legge til rette for en forsvarlig avvikling av budrunden, og for at budene skal kunne bli behandlet og videreformidlet skriftlig til alle involverte parter må ethvert bud ha en tilstrekkelig lang akseptfrist. Selger må skriftlig akseptere budet før budaksept kan formidles til budgiver. Budforhøyelser anbefales derfor å ha akseptfrist på minimum 30 minutter fra budet inngis.
Selger og kjøper har krav på å få utlevert kopi av budjournalen straks etter at handel er kommet i stand. Alle som har inngitt bud på eiendommen kan på forespørsel få en kopi av anonymisert budjournal etter at budrunden er avsluttet.
Ikke nøl med å ta kontakt med megler dersom det er behov for bistand for å gi bud. Ta kontakt med megler for nærmere informasjon.
Diverse
SALGSOPPGAVE
Salgsoppgaven er opprettet 16.01.2026 og utformet iht. lov om eiendomsmegling av 29.06.2007.
Opplysningene i salgsoppgaven er godkjent av selger. Alle interessenter oppfordres imidlertid til grundig besiktigelse av eiendommen, gjerne sammen med fagmann før bud inngis.
Ferdigattest/brukstillatelse
Det foreligger ferdigattester av 14.10.1993, 01.09.2004 og 02.04.2013 for diverse oppgraderinger m.m. av bygningene. Disse er vedlagt i prospektet.
Reguleringsplan
Det foreligger ingen godkjent reguleringsplan for største delen av eiendommen. Eiendommen er i kommuneplanens arealdel vist som nåværende boligbebyggelse. Liten del øst på eiendommen mot vegen er berørt av reguleringsplan.
Radonmåling
Det foreligger ikke radonmåling.
Kommunale avgifter
De kommunale avgiftene er inkludert i de månedlige felleskostnadene.
Formuesverdi
Formuesverdi for inntektsåret 2024:
Som primærbolig: kr 603 925
Som sekundærbolig: kr 2 415 698
Salgsoppgaven beskriver vesentlig og lovpålagt informasjon om eiendommen
Se komplett salgsoppgaveNyttige lenker
Nærområdet

ASKK Advokatfirmaet Siri K. Karlsen AS
Annonseinformasjon
| FINN-kode | 446520888 |
|---|---|
| Sist endret | 17. jan. 2026 13:34 |
| Referanse | ASKK1.2532 |
Annonsene kan være mangelfulle i forhold til lovpålagt opplysningsplikt. Før bindende avtale inngås oppfordres interessenter til å innhente komplett informasjon fra meglerforetaket, selger eller utleier.
































