Bildegalleri

Velkommen til Bjørn Stallares vei 37 og denne nydelige 3-roms leiligheten! Foto: Alexander Granlie | @boliggram
Solgt
SINSEN | ROSENHOFF
Fantastisk 3-roms med moderne standard | HTH-kjøkken fra 2024 | V.vann & Fyring inkl. | Parkeringsleie etter venteliste
Prisantydning4 900 000 kr
Nøkkelinfo
- Boligtype
- Leilighet
- Eieform
- Andel
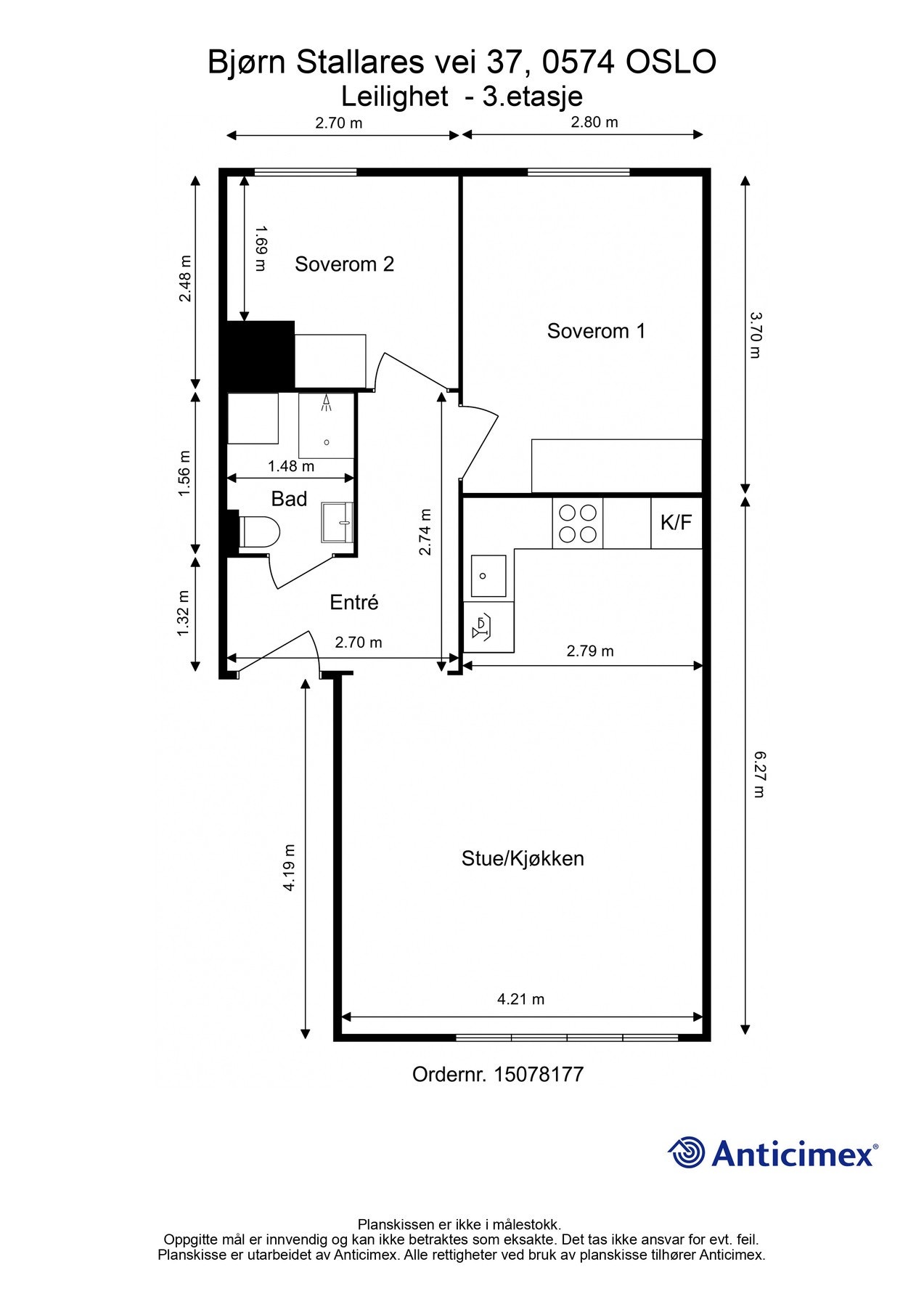
- Soverom
- 2
- Internt bruksareal
- 50 m² (BRA-i)
- Bruksareal
- 54 m²
- Eksternt bruksareal
- 4 m² (BRA-e)
- Etasje
- 3
- Byggeår
- 1935
- Energimerking
- - Gul
- Rom
- 3
- Tomteareal
- 2 822 m² (eiet)
Fasiliteter
Offentlig vann/kloakk
Turterreng
Utsikt
Vaktmester-/vektertjeneste
Sentralt
Bredbåndstilknytning
Moderne
Rolig
Om boligen
Velkommen til gjennomført stil og god standard i Bjørn Stallares vei 37!
Dette er en gjennomgående og godt utnyttet 3-roms, fint beliggende i byggets 3. etasje. Leiligheten har de siste årene gått gjennom en vesentlig oppgradering, med blant annet helt nytt HTH-kjøkken fra 2024, nye gulv og behandlede overflater. Beliggenheten er også både rolig og sentral, med kort vei til kollektivtransport og servicetilbud.
Høydepunkter:
- Stort, stilrent og pent HTH-kjøkken fra 2024
- To romslige soverom, vendt mot gårdsrom
- Svært lave boutgifter: Oppvarming, varmtvann & internett inkl.
- Parkeringsleie etter venteliste, samt to gjesteparkeringsplasser
- Svært kort vei til både trikk, buss og T-bane
- Umiddelbar nærhet til Torshov, Carl Berner og Grünerløkka
Velkommen til en hyggelig visning!
Dette er en gjennomgående og godt utnyttet 3-roms, fint beliggende i byggets 3. etasje. Leiligheten har de siste årene gått gjennom en vesentlig oppgradering, med blant annet helt nytt HTH-kjøkken fra 2024, nye gulv og behandlede overflater. Beliggenheten er også både rolig og sentral, med kort vei til kollektivtransport og servicetilbud.
Høydepunkter:
- Stort, stilrent og pent HTH-kjøkken fra 2024
- To romslige soverom, vendt mot gårdsrom
- Svært lave boutgifter: Oppvarming, varmtvann & internett inkl.
- Parkeringsleie etter venteliste, samt to gjesteparkeringsplasser
- Svært kort vei til både trikk, buss og T-bane
- Umiddelbar nærhet til Torshov, Carl Berner og Grünerløkka
Velkommen til en hyggelig visning!
NB: Knappen for å vise hele beskrivelsen har kun en visuell effekt.
NB: Knappen for å vise hele beskrivelsen har kun en visuell effekt.
Salgsoppgaven beskriver vesentlig og lovpålagt informasjon om eiendommen
Se komplett salgsoppgaveNærområdet
EIE eiendomsmegling Ullevål & Sagene
Annonseinformasjon
| FINN-kode | 446496304 |
|---|---|
| Sist endret | 29. jan. 2026 11:44 |
| Referanse | 15251342 |
Annonsene kan være mangelfulle i forhold til lovpålagt opplysningsplikt. Før bindende avtale inngås oppfordres interessenter til å innhente komplett informasjon fra meglerforetaket, selger eller utleier.





























