Bildegalleri

Nordvik Eiendomsmegling v/Jørgen Nyhus ønsker deg velkommen til Halfdan Wilhelmsens allé 6.
Tønsberg sentrum
Romslig og tiltalende sentrumsleilighet over to plan m/god takhøyde | nyere ildsted | solrik balkong | garasjeplass!
Prisantydning3 875 000 kr
Nøkkelinfo
- Boligtype
- Leilighet
- Eieform
- Eier (Selveier)
- Soverom
- 2
- Internt bruksareal
- 92 m² (BRA-i)
- Bruksareal
- 97 m²
- Eksternt bruksareal
- 5 m² (BRA-e)
- Balkong/Terrasse
- 5 m² (TBA)
- Etasje
- 3
- Byggeår
- 1984
- Energimerking
- E - Oransje
- Rom
- 4
- Tomteareal
- 1 180 m² (eiet)
Fasiliteter
Balkong/Terrasse
Barnevennlig
Garasje/P-plass
Kjæledyr tillatt
Kabel-TV
Offentlig vann/kloakk
Peis/Ildsted
Rolig
Sentralt
Vaktmester-/vektertjeneste
Turterreng
Lademulighet
Visning
søndag, 08. februar
12:15 – 12:45
Alle våre visninger har påmelding. På denne måten sikrer vi at megler har god oversikt og tid til å imøtekomme alle interessenter. Meld deg på visning ved å trykke på lenken visningspåmelding.
VisningspåmeldingOm boligen
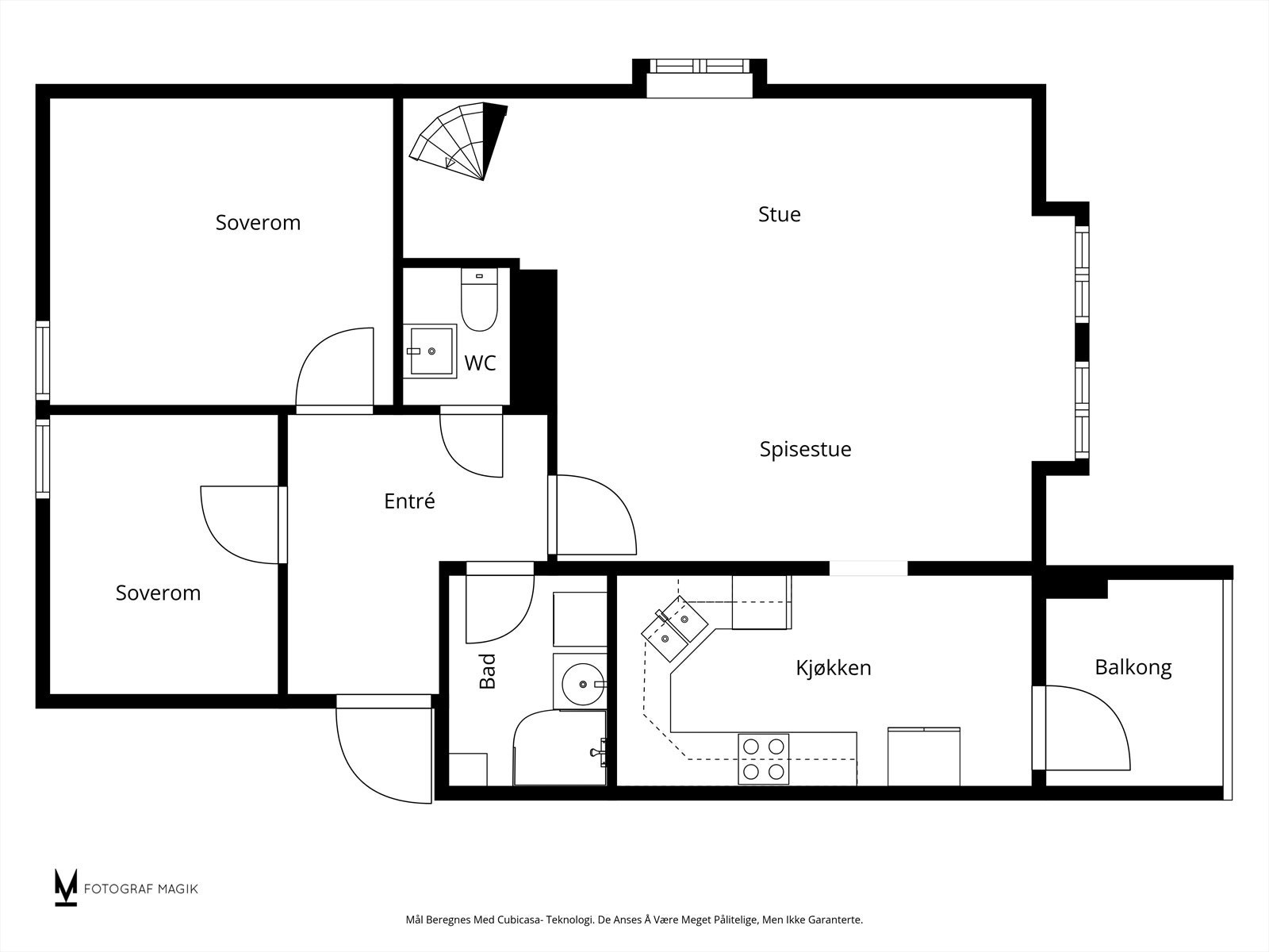
Dette er en spennende eierleilighet som strekker seg over to plan. Attraktivt beliggende m/kort gangavstand til tog, buss, kjøpesenter, Tønsberg Brygge, badeplasser og turområder. Boligen byr på en skjermet og solrik balkong på 5 kvm - et fint sted for rolige stunder, samt en hyggelig felles bakgård.
Leiligheten har et særpreg m/en enorm takhøyde i stuen, og en funksjonell planløsning. Stuen oppleves som luftig og innbydende m/koselig peisovn og den nevnte takhøyden. Kjøkkenet har en moderne utforming m/plass til spisebord og direkte utgang til balkongen. Videre inneholder boligen et bad/vaskerom, separat wc, en romslig entré, to soverom, samt en hems m/mange bruksmuligheter. Det er rikelig m/lagringsgsmuligheter i to innvendige boder, samt en bod i kjeller.
Egen p-plass i garasjekjeller
Leiligheten har et særpreg m/en enorm takhøyde i stuen, og en funksjonell planløsning. Stuen oppleves som luftig og innbydende m/koselig peisovn og den nevnte takhøyden. Kjøkkenet har en moderne utforming m/plass til spisebord og direkte utgang til balkongen. Videre inneholder boligen et bad/vaskerom, separat wc, en romslig entré, to soverom, samt en hems m/mange bruksmuligheter. Det er rikelig m/lagringsgsmuligheter i to innvendige boder, samt en bod i kjeller.
Egen p-plass i garasjekjeller
NB: Knappen for å vise hele beskrivelsen har kun en visuell effekt.
NB: Knappen for å vise hele beskrivelsen har kun en visuell effekt.
Salgsoppgaven beskriver vesentlig og lovpålagt informasjon om eiendommen
Se komplett salgsoppgaveNyttige lenker
Nærområdet
Nordvik Tønsberg
Annonseinformasjon
| FINN-kode | 446397590 |
|---|---|
| Sist endret | 01. feb. 2026 22:00 |
| Referanse | 25-0002/26 |
Annonsene kan være mangelfulle i forhold til lovpålagt opplysningsplikt. Før bindende avtale inngås oppfordres interessenter til å innhente komplett informasjon fra meglerforetaket, selger eller utleier.

















































