Bildegalleri

Velkommen til Løken Terrasse 28!
Løken Terrasse
Betydelig modernisert enebolig på solrik hjørnetomt | Egen inngang direkte til underetasje | 2 kjøkken, 2 bad | Garasje
Prisantydning6 250 000 kr
Nøkkelinfo
- Boligtype
- Enebolig
- Eieform
- Eier (Selveier)
- Soverom
- 3
- Internt bruksareal
- 179 m² (BRA-i)
- Bruksareal
- 210 m²
- Eksternt bruksareal
- 31 m² (BRA-e)
- Balkong/Terrasse
- 47 m² (TBA)
- Byggeår
- 1968
- Rom
- 10
- Tomteareal
- 835 m² (eiet)
Fasiliteter
Balkong/Terrasse
Barnevennlig
Garasje/P-plass
Hage
Parkett
Peis/Ildsted
Rolig
Sentralt
Turterreng
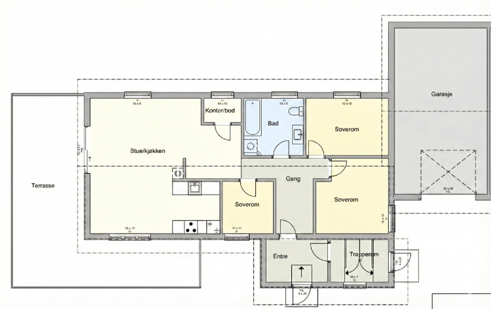
Om boligen
Velkommen til denne eneboligen som strekker seg over to plan!
Dette er en gjennomført og pen bolig, beliggende i et attraktivt og familievennlig område.
Boligens 1.etg er pent pusset opp (overflater, stue, soverom og bad), i tillegg er underetasjen betydelig modernisert (2023) med nytt bad, kjøkken, flere rom, vinduer, elektrisk anlegg og røropplegg. Arealet i underetasjen er innredet som oppholdsrom, men ikke godkjent til varig opphold.
Terrasse utenfor stuen på hele 47 m², samt garasje og biloppstillingsplasser.
Høydepunkter:
- Pusset opp bad, alle soverom, gang, kjøkken og stue i 1.etg.
- Nytt kjøkken og bad i u.etg.
- Overflateoppusset alle rom i begge etasjer.
- Oppgradert, nytt elektrisk anlegg.
- Nytt rør-i-rør system i hele huset (unntatt bad 1.etg).
- Ny varmepumpe 2024.
Dette er en gjennomført og pen bolig, beliggende i et attraktivt og familievennlig område.
Boligens 1.etg er pent pusset opp (overflater, stue, soverom og bad), i tillegg er underetasjen betydelig modernisert (2023) med nytt bad, kjøkken, flere rom, vinduer, elektrisk anlegg og røropplegg. Arealet i underetasjen er innredet som oppholdsrom, men ikke godkjent til varig opphold.
Terrasse utenfor stuen på hele 47 m², samt garasje og biloppstillingsplasser.
Høydepunkter:
- Pusset opp bad, alle soverom, gang, kjøkken og stue i 1.etg.
- Nytt kjøkken og bad i u.etg.
- Overflateoppusset alle rom i begge etasjer.
- Oppgradert, nytt elektrisk anlegg.
- Nytt rør-i-rør system i hele huset (unntatt bad 1.etg).
- Ny varmepumpe 2024.
NB: Knappen for å vise hele beskrivelsen har kun en visuell effekt.
NB: Knappen for å vise hele beskrivelsen har kun en visuell effekt.
Salgsoppgaven beskriver vesentlig og lovpålagt informasjon om eiendommen
Se komplett salgsoppgaveNyttige lenker
Nærområdet
EiendomsMegler 1 Lillestrøm
Vi loser deg trygt gjennom hele boligsalget
Annonseinformasjon
| FINN-kode | 446397228 |
|---|---|
| Sist endret | 21. jan. 2026 09:13 |
| Referanse | 6028260170 |
Annonsene kan være mangelfulle i forhold til lovpålagt opplysningsplikt. Før bindende avtale inngås oppfordres interessenter til å innhente komplett informasjon fra meglerforetaket, selger eller utleier.















































