Bildegalleri

Eiendommen er presentert av megler Trond Ivar Olsen Fotograf Bjørnar Solberg | Isnitt
Slemmestad
Flott oppusset enebolig med delikat bad og rålekkert kjøkken. Parkmessig uteareal m/jacuzzi og nye terrasser.
Prisantydning7 200 000 kr
Nøkkelinfo
- Boligtype
- Enebolig
- Eieform
- Eier (Selveier)
- Soverom
- 3
- Internt bruksareal
- 108 m² (BRA-i)
- Bruksareal
- 117 m²
- Eksternt bruksareal
- 9 m² (BRA-e)
- Balkong/Terrasse
- 96 m² (TBA)
- Etasje
- 2
- Byggeår
- 1998
- Energimerking
- C - Rød
- Rom
- 4
- Tomteareal
- 769 m² (eiet)
Fasiliteter
Barnevennlig
Balkong/Terrasse
Garasje/P-plass
Alarm
Offentlig vann/kloakk
Parkett
Turterreng
Utsikt
Aircondition
Sentralt
Bredbåndstilknytning
Moderne
Rolig
Lademulighet
Om boligen
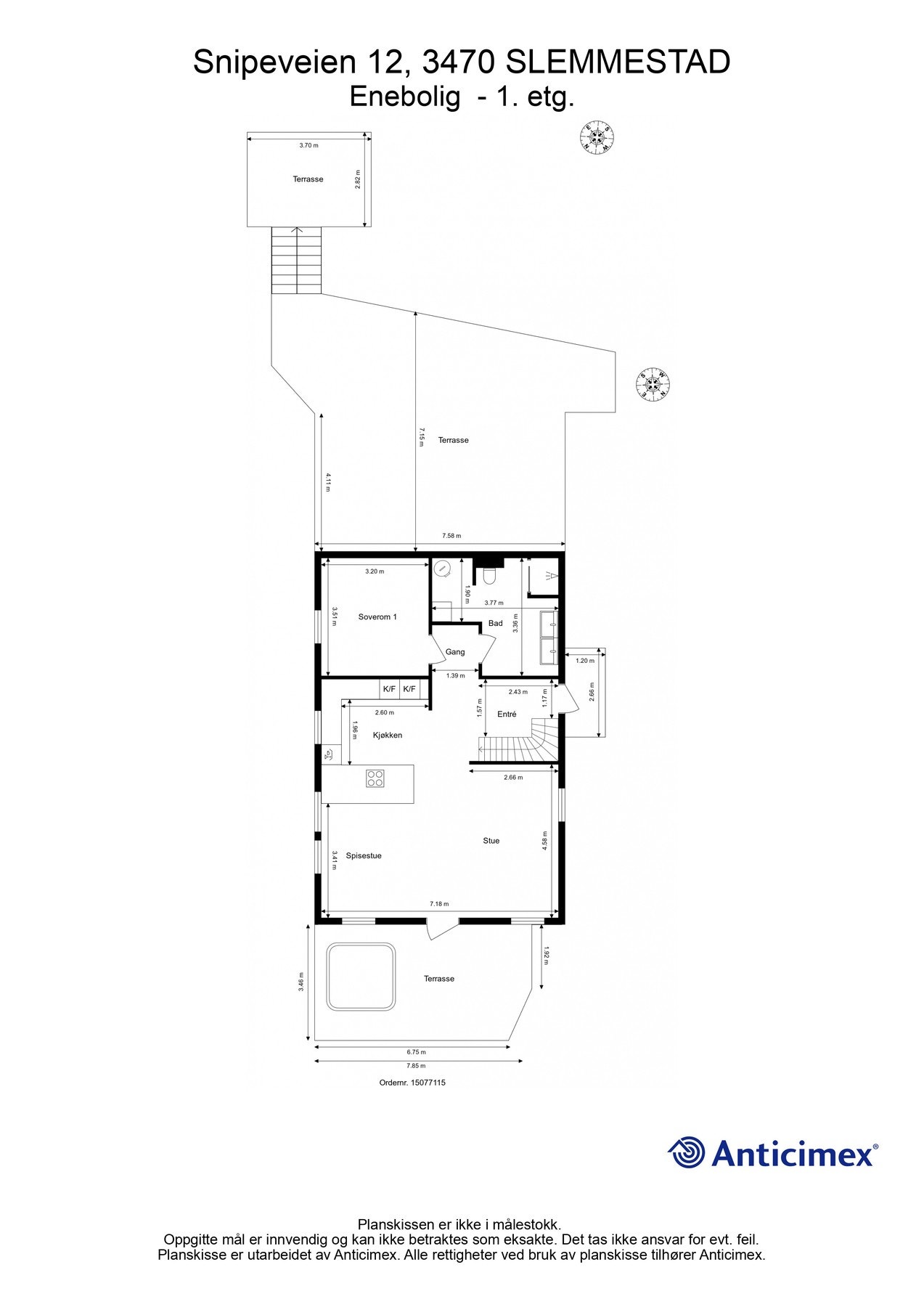
Snipeveien 12 er en stilfullt oppusset enebolig; et moderne og gjennomtenkt familiehjem med optimale løsninger. Alt av overflater er nytt, og arbeidet inkluderte et påkostet el-anlegg, et rålekkert kjøkken og et delikat bad med japansk wc. Hver kvm er godt utnyttet, og planløsningen over to etasjer byr på tre soverom. Stuen er åpen og innbydende med varmepumpe, der kjøkkenet har barløsning og alle hvitevarer integrert.
Uteområdet er parkmessig opparbeidet med magnolia og japanske trær. Man flytter seg enkelt etter solen på tre terrasser; et flott utsiktspunkt, en terrasse med ny jacuzzi og en herlig uteplass på 60 kvm. Elbillader følger med, og boligen har en stor, isolert utebod. Plassert i en rolig blindvei, får huset fullstendig ro i et trivelig miljø med rikt dyreliv og gode naboer.
Uteområdet er parkmessig opparbeidet med magnolia og japanske trær. Man flytter seg enkelt etter solen på tre terrasser; et flott utsiktspunkt, en terrasse med ny jacuzzi og en herlig uteplass på 60 kvm. Elbillader følger med, og boligen har en stor, isolert utebod. Plassert i en rolig blindvei, får huset fullstendig ro i et trivelig miljø med rikt dyreliv og gode naboer.
NB: Knappen for å vise hele beskrivelsen har kun en visuell effekt.
NB: Knappen for å vise hele beskrivelsen har kun en visuell effekt.
Salgsoppgaven beskriver vesentlig og lovpålagt informasjon om eiendommen
Se komplett salgsoppgaveNyttige lenker
Nærområdet
EIE eiendomsmegling Asker
Annonseinformasjon
| FINN-kode | 446396768 |
|---|---|
| Sist endret | 31. jan. 2026 11:28 |
| Referanse | 85260011 |
Annonsene kan være mangelfulle i forhold til lovpålagt opplysningsplikt. Før bindende avtale inngås oppfordres interessenter til å innhente komplett informasjon fra meglerforetaket, selger eller utleier.



















































































