Bildegalleri

Velkommen til Knardalveien 21 - Enebolig med vidt utsyn og gode solforhold
Knardal
Unik og innholdsrik eiendom med enebolig og flott sommerstue | Høyt og fritt med flott utsikt | Gode solforhold
Prisantydning4 800 000 kr
Nøkkelinfo
- Boligtype
- Enebolig
- Eieform
- Eier (Selveier)
- Soverom
- 2
- Internt bruksareal
- 73 m² (BRA-i)
- Bruksareal
- 130 m²
- Eksternt bruksareal
- 57 m² (BRA-e)
- Balkong/Terrasse
- 57 m² (TBA)
- Etasje
- 1
- Byggeår
- 1965
- Energimerking
- G - Rød
- Tomteareal
- 3 397 m² (eiet)
Fasiliteter
Balkong/Terrasse
Barnevennlig
Garasje/P-plass
Hage
Kjæledyr tillatt
Ingen gjenboere
Kabel-TV
Rolig
Utsikt
Bademulighet
Turterreng
Visning
søndag, 01. februar
12:00 – 16:00
For å delta på visning, ber vi om at du melder deg på. Da sikrer vi at du får nødvendig informasjon og at det er satt av tilstrekkelig med tid. Kontakt megler dersom annet tidspunkt ønskes. Husk å lese salgsoppgaven før visningen, så du stiller forberedt.
Ønsker du kun å bli holdt orientert, kan du fra eiendommens hjemmeside få varsel om solgtpris, eller kontakte megler.
VisningspåmeldingOm boligen
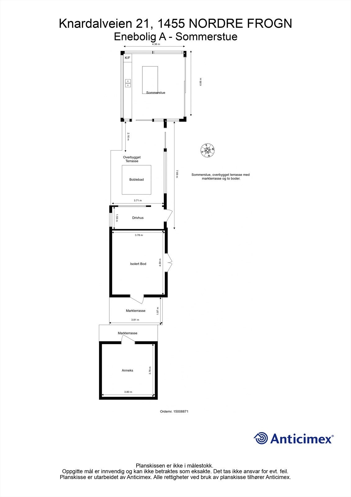
En unik og innholdsrik eiendom på toppen av en åskam med vidt utsyn. Eiendommen ligger landlig til, men likevel veldig sentralt i Follo. God utsikt og sol fra tidlig morgen til sen kveld. Boligen er på 73 kvm og består av entré, bad, gang, to soverom og stue med åpen kjøkkenløsning. Sommerstue, overbygget terrasse, drivhus, isolert bod, markterrasse og innredet bod. I sommerstuen er det innlagt strøm, sommervann og det er montert terrassevarmere. Et perfekt sted for sene sommerkvelder hvor solnedgangen kan nytes! Her er det også jacuzzi som følger med.
Ca. 30 min med bil til Oslo, ca. 15 min til Drøbak og Ås, ca. 20 min til Vestby og Ski. 5 min i bil før du er på E6. Det er buss 300 m fra eiendommen.
Stor, flott felleseiet naturtomt på 3.616 kvm. Et fantastisk sted med god boltreplass!
Ca. 30 min med bil til Oslo, ca. 15 min til Drøbak og Ås, ca. 20 min til Vestby og Ski. 5 min i bil før du er på E6. Det er buss 300 m fra eiendommen.
Stor, flott felleseiet naturtomt på 3.616 kvm. Et fantastisk sted med god boltreplass!
NB: Knappen for å vise hele beskrivelsen har kun en visuell effekt.
NB: Knappen for å vise hele beskrivelsen har kun en visuell effekt.
Salgsoppgaven beskriver vesentlig og lovpålagt informasjon om eiendommen
Se komplett salgsoppgaveNyttige lenker
Nærområdet
Krogsveen Ski
Verdien av en god megler.
Annonseinformasjon
| FINN-kode | 446390293 |
|---|---|
| Sist endret | 27. jan. 2026 13:33 |
| Referanse | KR46.25213 |
Annonsene kan være mangelfulle i forhold til lovpålagt opplysningsplikt. Før bindende avtale inngås oppfordres interessenter til å innhente komplett informasjon fra meglerforetaket, selger eller utleier.













































