Bildegalleri

Velkommen til Bærumsveien 225C - Presentert av Christoffer Brekke-Hammersland og Hannah Douglas v/ Privatmegleren Park
Solgt
Villa Bekkestuene
3-roms gjennomgående hjørneleilighet fra 2021|Høyt beliggende og med vidt utsyn, gasspeis, heis, og stor garasjeplass
Prisantydning8 450 000 kr
Nøkkelinfo
- Boligtype
- Leilighet
- Eieform
- Eier (Selveier)
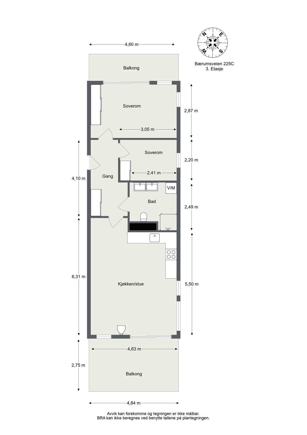
- Soverom
- 2
- Internt bruksareal
- 62 m² (BRA-i)
- Bruksareal
- 67 m²
- Eksternt bruksareal
- 5 m² (BRA-e)
- Balkong/Terrasse
- 20 m² (TBA)
- Etasje
- 2
- Byggeår
- 2021
- Energimerking
- B - Mørkegrønn
- Rom
- 3
- Tomteareal
- 4 195 m² (eiet)
Fasiliteter
Barnevennlig
Balkong/Terrasse
Garasje/P-plass
Kabel-TV
Heis
Offentlig vann/kloakk
Parkett
Peis/Ildsted
Utsikt
Sentralt
Bredbåndstilknytning
Moderne
Rolig
Lademulighet
Balansert ventilasjon
Om boligen
Velkommen til Bærumsveien 225C - Presentert av Christoffer Brekke-Hammersland og Hannah Douglas v/ Privatmegleren Park
Villa Bekkestuene er et stilrent og påkostet bygg fra 2021, bestående av fire byvillaer. Prosjektet ligger høyt og fritt i terrenget, med vidt utsyn mot marka i vest og Nesoddlandet. Eiendommen har en svært sentral beliggenhet, kun ca. 2 minutters gange fra Bekkestua sentrum, med nærhet til både friområder og T-banestopp.
Bekkestua sentrum tilbyr et komplett servicetilbud og har oppvarmede fortau, noe som gjør området særlig attraktivt året rundt.
- Stor garasjeplass med lader, rett ved inngang, bod og heis.
- Tre gjesteplasser i garasjeanlegg.
- Gasspeis samt uttak til gassgrill på stor, overbygget hjørneterrasse.
- Ca. 200 meter / 2 minutters gange til Bekkestua sentrum med alle servicetilbud, inkludert Vinmonopolet.
- Ca. 200 meter til isfrie gangveier og plasser på Bekkestua, samt flere tur- og friområder.
Velkommen til visning!
Villa Bekkestuene er et stilrent og påkostet bygg fra 2021, bestående av fire byvillaer. Prosjektet ligger høyt og fritt i terrenget, med vidt utsyn mot marka i vest og Nesoddlandet. Eiendommen har en svært sentral beliggenhet, kun ca. 2 minutters gange fra Bekkestua sentrum, med nærhet til både friområder og T-banestopp.
Bekkestua sentrum tilbyr et komplett servicetilbud og har oppvarmede fortau, noe som gjør området særlig attraktivt året rundt.
- Stor garasjeplass med lader, rett ved inngang, bod og heis.
- Tre gjesteplasser i garasjeanlegg.
- Gasspeis samt uttak til gassgrill på stor, overbygget hjørneterrasse.
- Ca. 200 meter / 2 minutters gange til Bekkestua sentrum med alle servicetilbud, inkludert Vinmonopolet.
- Ca. 200 meter til isfrie gangveier og plasser på Bekkestua, samt flere tur- og friområder.
Velkommen til visning!
NB: Knappen for å vise hele beskrivelsen har kun en visuell effekt.
NB: Knappen for å vise hele beskrivelsen har kun en visuell effekt.
Salgsoppgaven beskriver vesentlig og lovpålagt informasjon om eiendommen
Se komplett salgsoppgaveNyttige lenker
Nærområdet

PrivatMegleren Park
Kun det beste på dine vegne
Annonsene kan være mangelfulle i forhold til lovpålagt opplysningsplikt. Før bindende avtale inngås oppfordres interessenter til å innhente komplett informasjon fra meglerforetaket, selger eller utleier.








































