Bildegalleri

Velkommen til Apalstubben 8!
Meget tiltalende og trivelig enebolig i populært boområde - 3 soverom - 2 bad - Garasje - Barnevennlig!
Nøkkelinfo
- Boligtype
- Enebolig
- Eieform
- Eier (Selveier)
- Soverom
- 3
- Internt bruksareal
- 136 m² (BRA-i)
- Bruksareal
- 136 m²
- Eksternt bruksareal
- 39 m² (BRA-e)
- Balkong/Terrasse
- 15 m² (TBA)
- Byggeår
- 1993
- Energimerking
- D - Gul
- Rom
- 4
- Tomteareal
- 291 m² (festet)
- Festeavgift
- 512 kr
Fasiliteter
Om boligen
Velkommen til Apalstubben 8!
Eiendommen ligger i et attraktivt, barnevennlig og godt etablert boligområde på Kurland/Maugesten.
Rett i nærheten finner du flotte turområder i Sarpsborgmarka, med både turstier, lysløype og nydelig natur året rundt. En liten sykkeltur unna finner du Tunevannet med mange fine bade- og fiskeplasser, samt flere turstier å velge mellom Det er også kort avstand til Glengshølen. Sarpsborg sentrum ligger kun noen minutter unna med bil.
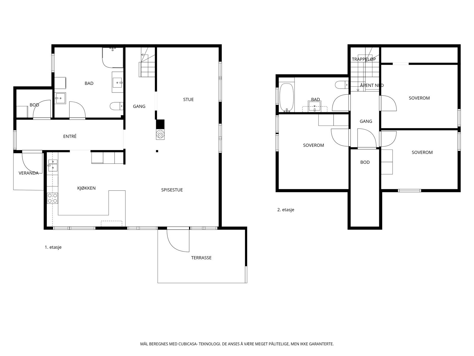
Fin og innholdsrik bolig som går over 2 plan.I 1. etasje finner vi entre, bod, bad, kjøkken, stue, spisestue og trapperom. 2. etasje har trapperom, 3 soverom, bad og bod. Det tilkommer garasje.
- 3 soverom
- 2 bad
- Garasje
- El-bil lader
- Gode solforhold
- Sentralt
- Barnevennlig
Salgsoppgaven beskriver vesentlig og lovpålagt informasjon om eiendommen
Se komplett salgsoppgaveNyttige lenker
Nærområdet
Proaktiv Eiendomsmegling Sarpsborg
Annonseinformasjon
| FINN-kode | 446379408 |
|---|---|
| Sist endret | 30. jan. 2026 11:59 |
| Referanse | 109260003 |
Annonsene kan være mangelfulle i forhold til lovpålagt opplysningsplikt. Før bindende avtale inngås oppfordres interessenter til å innhente komplett informasjon fra meglerforetaket, selger eller utleier.




















































