Bildegalleri

Velkommen til Åsfaret! Foto: Creative Foto AS
Ny (2025) Kjedet enebolig med 3 soverom og 2 bad - Carport- Passivhus-kvaliteter - Mulighet for 5 soverom
Prisantydning3 990 000 kr
Nøkkelinfo
- Boligtype
- Enebolig
- Eieform
- Selveier
- Soverom
- 3
- Internt bruksareal
- 100 m² (BRA-i)
- Bruksareal
- 105 m²
- Eksternt bruksareal
- 5 m² (BRA-e)
- Balkong/Terrasse
- 53 m² (TBA)
- Byggeår
- 2025
- Tomteareal
- 702 m² (eiet)
Fasiliteter
Takterrasse
Balkong/Terrasse
Barnevennlig
Bredbåndstilknytning
Garasje/P-plass
Kabel-TV
Offentlig vann/kloakk
Rolig
Turterreng
Balansert ventilasjon
Om boligen
Boligene oppføres med fokus på lavenergi og minimalt vedlikehold. Tak, vinduer, gulv og vegger er bygget med passivhuskvaliteter. Det er også montert luft-til-luft varmepumpe. I sum bidrar alt til lave bokostnader. Det er laminat i alle oppholdsrom, smøremembran og fliser på våtrom.
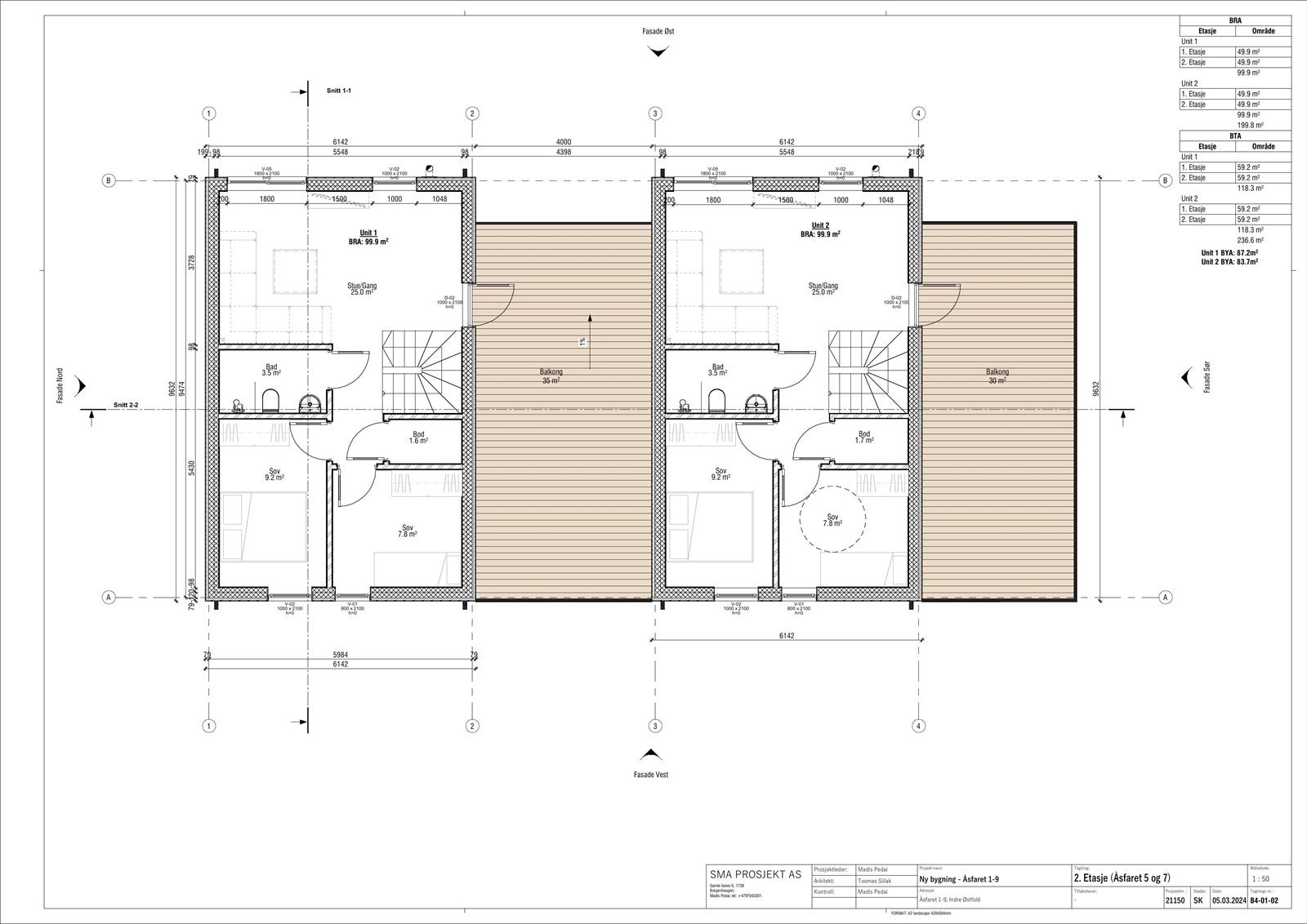
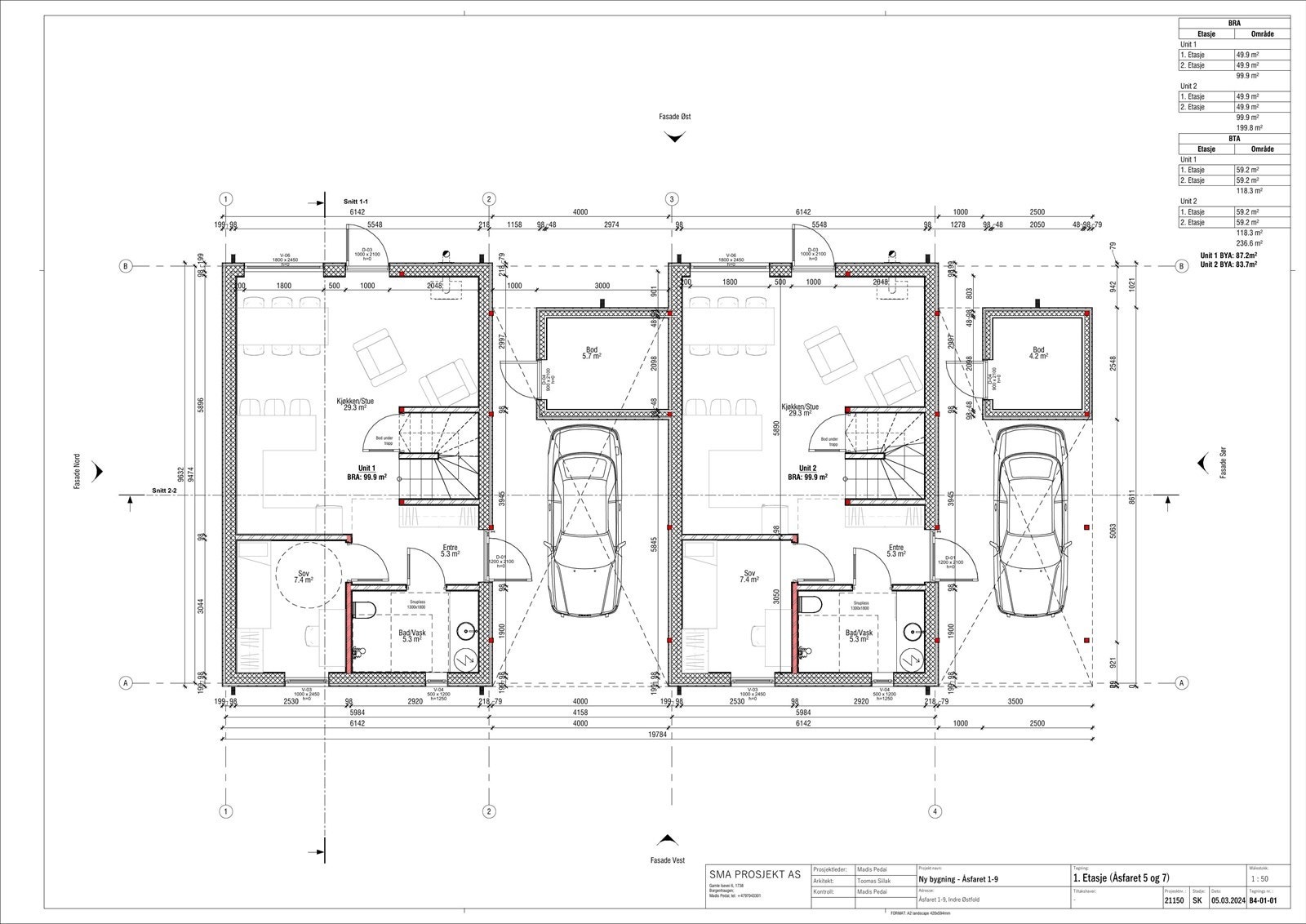
Planløsningen består av 2 plan og er familievennlig utformet. Lysforholdene er i boligene gjennomgående svært gode, preget av flere store og høyreiste vinduer som strekker seg helt fra gulvet til himlingen. Planløsningen i 2.etasje kan endres etter ønske og behov, boligen kan ha alt fra 3-5 soverom.
Planløsningen består av 2 plan og er familievennlig utformet. Lysforholdene er i boligene gjennomgående svært gode, preget av flere store og høyreiste vinduer som strekker seg helt fra gulvet til himlingen. Planløsningen i 2.etasje kan endres etter ønske og behov, boligen kan ha alt fra 3-5 soverom.
NB: Knappen for å vise hele beskrivelsen har kun en visuell effekt.
NB: Knappen for å vise hele beskrivelsen har kun en visuell effekt.
Salgsoppgaven beskriver vesentlig og lovpålagt informasjon om eiendommen
Se komplett salgsoppgaveNærområdet
Aktiv Askim
Annonseinformasjon
| FINN-kode | 446352697 |
|---|---|
| Sist endret | 12. mai 2026 07:36 |
| Referanse | 1102260024 |
Annonsene kan være mangelfulle i forhold til lovpålagt opplysningsplikt. Før bindende avtale inngås oppfordres interessenter til å innhente komplett informasjon fra meglerforetaket, selger eller utleier.































