Bildegalleri

Velkommen til Ekeberglia 9, presentert av Anders Bonesmo EIE Eiendomsmegling Stabekk. Foto: Diakrit/ Lars Boyesen
BEKKESTUA
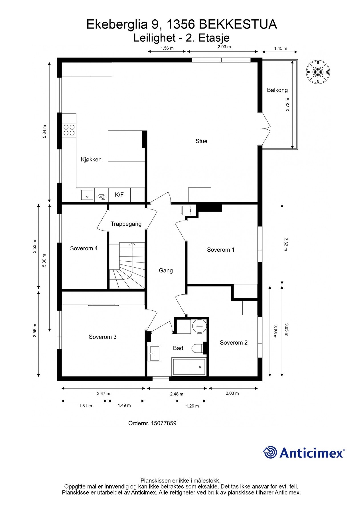
Lys og familievennlig bolig på et plan. Bad fra 2022, fire soverom og to garasjeplasser
Prisantydning7 980 000 kr
Nøkkelinfo
- Boligtype
- Tomannsbolig
- Eieform
- Selveier
- Soverom
- 4
- Internt bruksareal
- 116 m² (BRA-i)
- Bruksareal
- 155 m²
- Eksternt bruksareal
- 39 m² (BRA-e)
- Balkong/Terrasse
- 5 m² (TBA)
- Etasje
- 2
- Byggeår
- 1957
- Energimerking
- G - Oransje
- Tomteareal
- 1 862 m² (festet)
- Festeavgift
- 10 127 kr
Fasiliteter
Barnevennlig
Balkong/Terrasse
Garasje/P-plass
Offentlig vann/kloakk
Ingen gjenboere
Parkett
Peis/Ildsted
Turterreng
Sentralt
Bredbåndstilknytning
Moderne
Rolig
Om boligen
Velkommen til en lys og trivelig bolig med gjennomtenkt planløsning og moderne kvaliteter. Her bor du skjermet, men samtidig nær alt du trenger, med kort vei til Gjønnes T bane og rundt 15 minutters gange til Bekkestua sentrum. Boligen ligger på ett plan og byr på fire soverom, en åpen stue- og kjøkkenløsning, vestvendt balkong, lekkert bad fra 2022 og to garasjeplasser i kjeller. I tillegg medfølger et lagringsloft på over 100 kvm, som gir svært gode oppbevaringsmuligheter. Hagen grenser til flotte friområder med turstier som strekker seg helt til Sandvika og Sauejordet - ideelt for både rekreasjon, lek og hverdagslige turer. Her får du et hjem med god komfort, rikelig plass og en beliggenhet som passer de fleste livsfaser.
NB: Knappen for å vise hele beskrivelsen har kun en visuell effekt.
NB: Knappen for å vise hele beskrivelsen har kun en visuell effekt.
Salgsoppgaven beskriver vesentlig og lovpålagt informasjon om eiendommen
Se komplett salgsoppgaveNærområdet
EIE eiendomsmegling Stabekk
Annonsene kan være mangelfulle i forhold til lovpålagt opplysningsplikt. Før bindende avtale inngås oppfordres interessenter til å innhente komplett informasjon fra meglerforetaket, selger eller utleier.



































