Bildegalleri

Velkommen til Alværnlia 91 - Presentert av Elisiff Wennersgaard v/Krogsveen Nesodden. Foto: Per O. Skjellnan v/Efkt
Alværn
Innholdsrikt rekkehus over tre etasjer i attraktivt, barnevennlig område / Sjøutsikt, solrike uteområder og garasje.
Prisantydning6 900 000 kr
Nøkkelinfo
- Boligtype
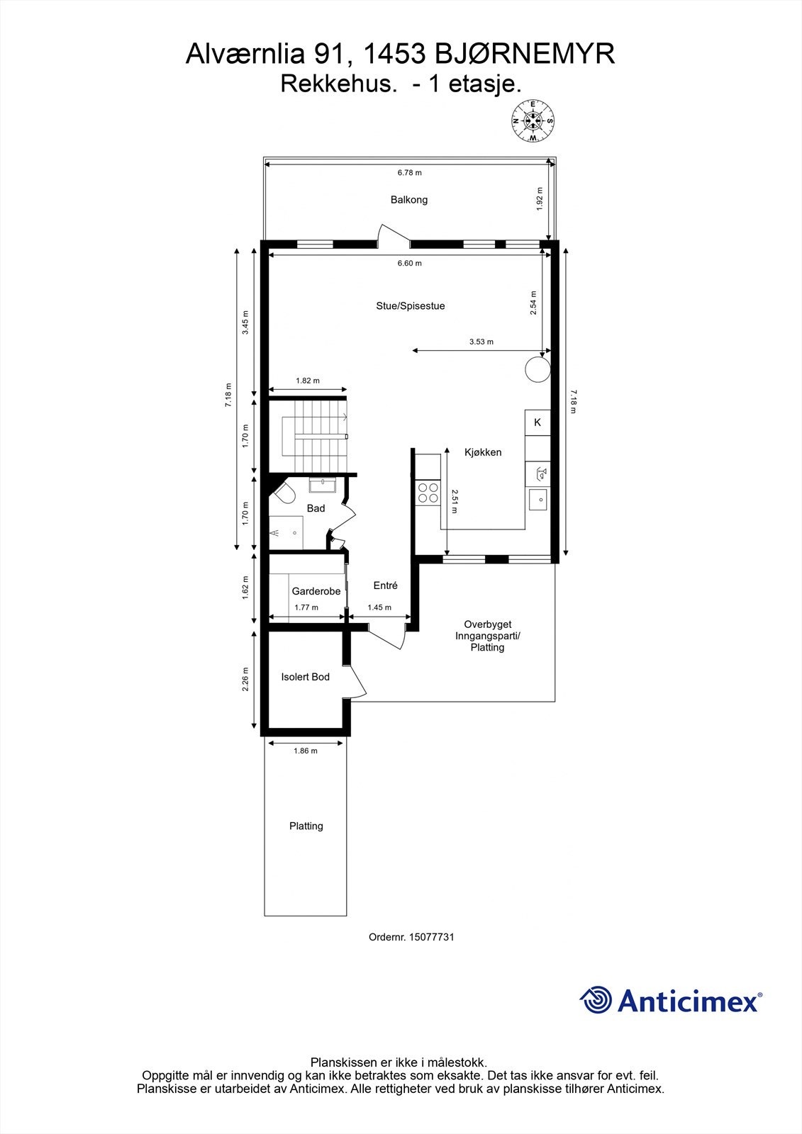
- Rekkehus
- Eieform
- Eier (Selveier)
- Soverom
- 4
- Internt bruksareal
- 142 m² (BRA-i)
- Bruksareal
- 176 m²
- Eksternt bruksareal
- 34 m² (BRA-e)
- Balkong/Terrasse
- 59 m² (TBA)
- Byggeår
- 1982
- Energimerking
- D - Gul
- Tomteareal
- 18 088 m² (eiet)
Fasiliteter
Takterrasse
Balkong/Terrasse
Barnevennlig
Bredbåndstilknytning
Garasje/P-plass
Hage
Kjæledyr tillatt
Kabel-TV
Offentlig vann/kloakk
Parkett
Peis/Ildsted
Rolig
Sentralt
Utsikt
Bademulighet
Turterreng
Lademulighet
Om boligen
Velkommen til Alværnlia 91 -et lyst og innholdsrikt rekkehus over tre etasjer, beliggende i et attraktivt og barnevennlig område på Nesoddens vestside. Eiendommen har flere solrike uteplasser, perfekt for avslapning og sosiale sammenkomster.
Området er veletablert og med hyggelig naboskap og kort gangavstand til sjøen, marka, butikker, kollektivtransport, skoler og barnehager. Garasje med mulighet for elbil-lader.
En ideell familiebolig i ettertraktede omgivelser!
Kort fortalt:
- Fire soverom og to stuer
- Flotte solrike uteplasser, med bla. takterrasse med nydelig sjøutsikt
- Garasje og stor utvendig bod med rikelig av lagringsplass
- To delikate baderom
- Frodig og og solrik hage
- Fantastisk sjøutsikt fra takterrassen
- Gangavstand til "alt du trenger" i hverdagen!
Området er veletablert og med hyggelig naboskap og kort gangavstand til sjøen, marka, butikker, kollektivtransport, skoler og barnehager. Garasje med mulighet for elbil-lader.
En ideell familiebolig i ettertraktede omgivelser!
Kort fortalt:
- Fire soverom og to stuer
- Flotte solrike uteplasser, med bla. takterrasse med nydelig sjøutsikt
- Garasje og stor utvendig bod med rikelig av lagringsplass
- To delikate baderom
- Frodig og og solrik hage
- Fantastisk sjøutsikt fra takterrassen
- Gangavstand til "alt du trenger" i hverdagen!
NB: Knappen for å vise hele beskrivelsen har kun en visuell effekt.
NB: Knappen for å vise hele beskrivelsen har kun en visuell effekt.
Salgsoppgaven beskriver vesentlig og lovpålagt informasjon om eiendommen
Se komplett salgsoppgaveNyttige lenker
Nærområdet
Krogsveen Nesodden
Verdien av en god megler.
Annonseinformasjon
| FINN-kode | 446284650 |
|---|---|
| Sist endret | 03. feb. 2026 14:51 |
| Referanse | KR51.2582 |
Annonsene kan være mangelfulle i forhold til lovpålagt opplysningsplikt. Før bindende avtale inngås oppfordres interessenter til å innhente komplett informasjon fra meglerforetaket, selger eller utleier.
































