Bildegalleri

Sara Husebø v/Eiendomsmegler 1 har gleden av å presentere Aspelundfaret 5! -Foto av Rekyl foto
Vettre / Asker
Arkitekttegnet enebolig (Willoch) m/flott fjordutsikt|Stor, solrik tomt|Oppussingsobjekt|Bergvarme|Barnevennlig|Sentralt
Prisantydning9 500 000 kr
Nøkkelinfo
- Boligtype
- Enebolig
- Eieform
- Eier (Selveier)
- Soverom
- 3
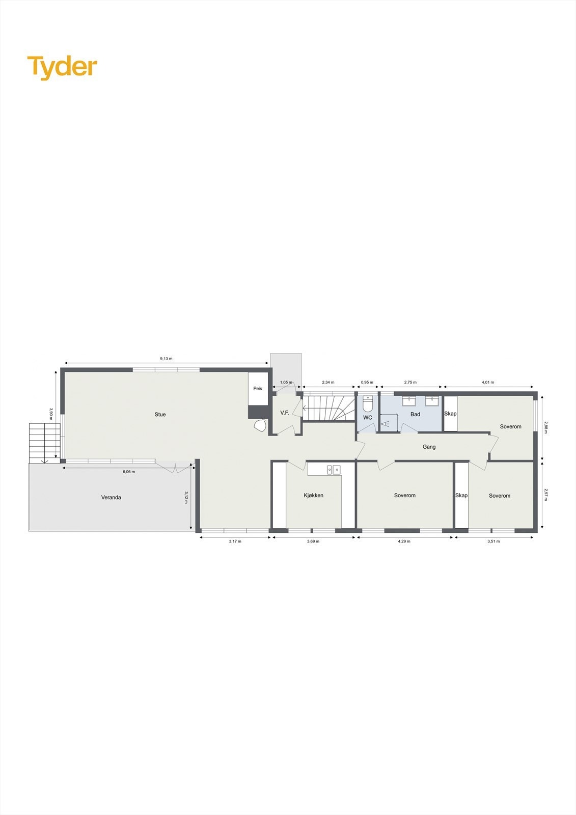
- Internt bruksareal
- 201 m² (BRA-i)
- Bruksareal
- 241 m²
- Eksternt bruksareal
- 40 m² (BRA-e)
- Balkong/Terrasse
- 22 m² (TBA)
- Byggeår
- 1963
- Rom
- 7
- Tomteareal
- 1 466 m² (eiet)
Fasiliteter
Balkong/Terrasse
Barnevennlig
Garasje/P-plass
Hage
Ingen gjenboere
Offentlig vann/kloakk
Peis/Ildsted
Sentralt
Utsikt
Utvidelsesmuligheter
Visning
søndag, 08. mars
16:00 – 17:00
Ta kontakt på 97082593 dersom visningstidspunkt ikke skulle passe.
VisningspåmeldingOm boligen
Velkommen til Aspelundfaret 5!
En innholdsrik enebolig med stor tomt i et etablert og familievennlig nabolag. Den tøffe funkis boligen er tegnet av den kjente arkitekten Thomas Willoch. Boligen har oppussingsbehov, som gir deg mulighet til å skape din egen stil og drømmebolig.
Eiendommen på hele 1,5 mål er solrik og gir rikelig med boltringsplass for både store og små. I kort gangavstand fra boligen finner du skole, barnehage, buss m/direktebuss til Oslo og nærområdet, samt rikelig med rekreasjonsmuligheter.
Høydepunkter:
- Arkitekttegnet enebolig (Thomas Willoch)
- Skap din drømmebolig, m/flott utsikt
- Mulighet for generasjonsbolig m/inngang i hver etasje
- Kostnadseffektiv oppvarming med bergvarme fra 2007
- Stor og solrik hage på ca. 1,5 mål
- Kort vei til buss, skoler og butikker
En innholdsrik enebolig med stor tomt i et etablert og familievennlig nabolag. Den tøffe funkis boligen er tegnet av den kjente arkitekten Thomas Willoch. Boligen har oppussingsbehov, som gir deg mulighet til å skape din egen stil og drømmebolig.
Eiendommen på hele 1,5 mål er solrik og gir rikelig med boltringsplass for både store og små. I kort gangavstand fra boligen finner du skole, barnehage, buss m/direktebuss til Oslo og nærområdet, samt rikelig med rekreasjonsmuligheter.
Høydepunkter:
- Arkitekttegnet enebolig (Thomas Willoch)
- Skap din drømmebolig, m/flott utsikt
- Mulighet for generasjonsbolig m/inngang i hver etasje
- Kostnadseffektiv oppvarming med bergvarme fra 2007
- Stor og solrik hage på ca. 1,5 mål
- Kort vei til buss, skoler og butikker
NB: Knappen for å vise hele beskrivelsen har kun en visuell effekt.
NB: Knappen for å vise hele beskrivelsen har kun en visuell effekt.
Salgsoppgaven beskriver vesentlig og lovpålagt informasjon om eiendommen
Se komplett salgsoppgaveNyttige lenker
Nærområdet
EiendomsMegler 1 Asker
Vi loser deg trygt gjennom hele boligsalget
Annonseinformasjon
| FINN-kode | 446263645 |
|---|---|
| Sist endret | 27. feb. 2026 16:10 |
| Referanse | 6010260032 |
Annonsene kan være mangelfulle i forhold til lovpålagt opplysningsplikt. Før bindende avtale inngås oppfordres interessenter til å innhente komplett informasjon fra meglerforetaket, selger eller utleier.































