Bildegalleri

HAGA

Svært romslig enebolig med kjelleretasje og romslig tomt| To leiligheter i underetasjen - ikke godkjent!

Prisantydning4 500 000 kr
Totalpris
4 633 490 kr
Omkostninger
133 490 kr
Kommunale avg.
26 779 kr per år
Formuesverdi
1 113 552 kr

Nøkkelinfo

Boligtype
Enebolig
Eieform
Eier (Selveier)
Soverom
2
Internt bruksareal
226 m² (BRA-i)
Bruksareal
226 m²
Balkong/Terrasse
32 m² (TBA)
Etasje
2
Byggeår
1950
Energimerking
G - Oransje
Rom
3
Tomteareal
1 367 m² (eiet)

Les mer om bruksareal her

Fasiliteter

Balkong/Terrasse
Barnevennlig
Bredbåndstilknytning
Hage
Kabel-TV
Peis/Ildsted
Rolig
Utsikt
Turterreng

Visning

For å delta på visning, ber vi om at du melder deg på. Da sikrer vi at du får nødvendig informasjon og at det er satt av tilstrekkelig med tid. Kontakt megler dersom annet tidspunkt ønskes. Husk å lese salgsoppgaven før visningen, så du stiller forberedt. Ønsker du kun å bli holdt orientert, kan du fra eiendommens hjemmeside få varsel om solgtpris, eller kontakte megler.
Visningspåmelding

Om boligen

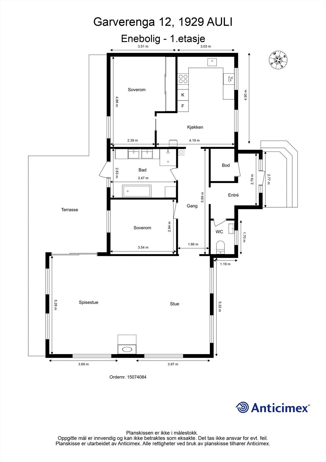
Velkommen til Garverenga 12 en romslig enebolig med sokkeletasje og to nylig innredede leiligheter. Merk at leilighetene ikke er godkjent for varig opphold (se punkt under ferdigattest/brukstillatelse).

Eneboligen består i første etasje av inngangsparti, stue, spisestue, kjøkken, to soverom, bad og bod. Underetasjen er innredet med to leiligheter, hver med eget soverom, bad, stue og kjøkken.

Uteområdet byr på stor boltreplass med både hage og terrasse, omgitt av vakre omgivelser. Eiendommen har også rikelig med biloppstillingsplasser på gruset gårdsplass.

Svært praktisk gangavstand til tog på Haga kun 43 minutter til Oslo!

Salgsoppgaven beskriver vesentlig og lovpålagt informasjon om eiendommen

Se komplett salgsoppgave

Nærområdet

Annonseinformasjon

FINN-kode446245330
Sist endret27. jan. 2026 08:51
ReferanseKR24.2573

Rapporter annonse

Annonsene kan være mangelfulle i forhold til lovpålagt opplysningsplikt. Før bindende avtale inngås oppfordres interessenter til å innhente komplett informasjon fra meglerforetaket, selger eller utleier.