Bildegalleri

Stor og klassisk selveier med etterspurt beliggenhet på Grünerløkka
Solgt
Grünerløkka
Stor og klassisk selveier m/etterspurt beliggenhet - Stukkatur og rosett - Overflateoppusset i 2021 - Stort potensial
Prisantydning3 990 000 kr
Nøkkelinfo
- Boligtype
- Leilighet
- Eieform
- Eier (Selveier)
- Soverom
- 0
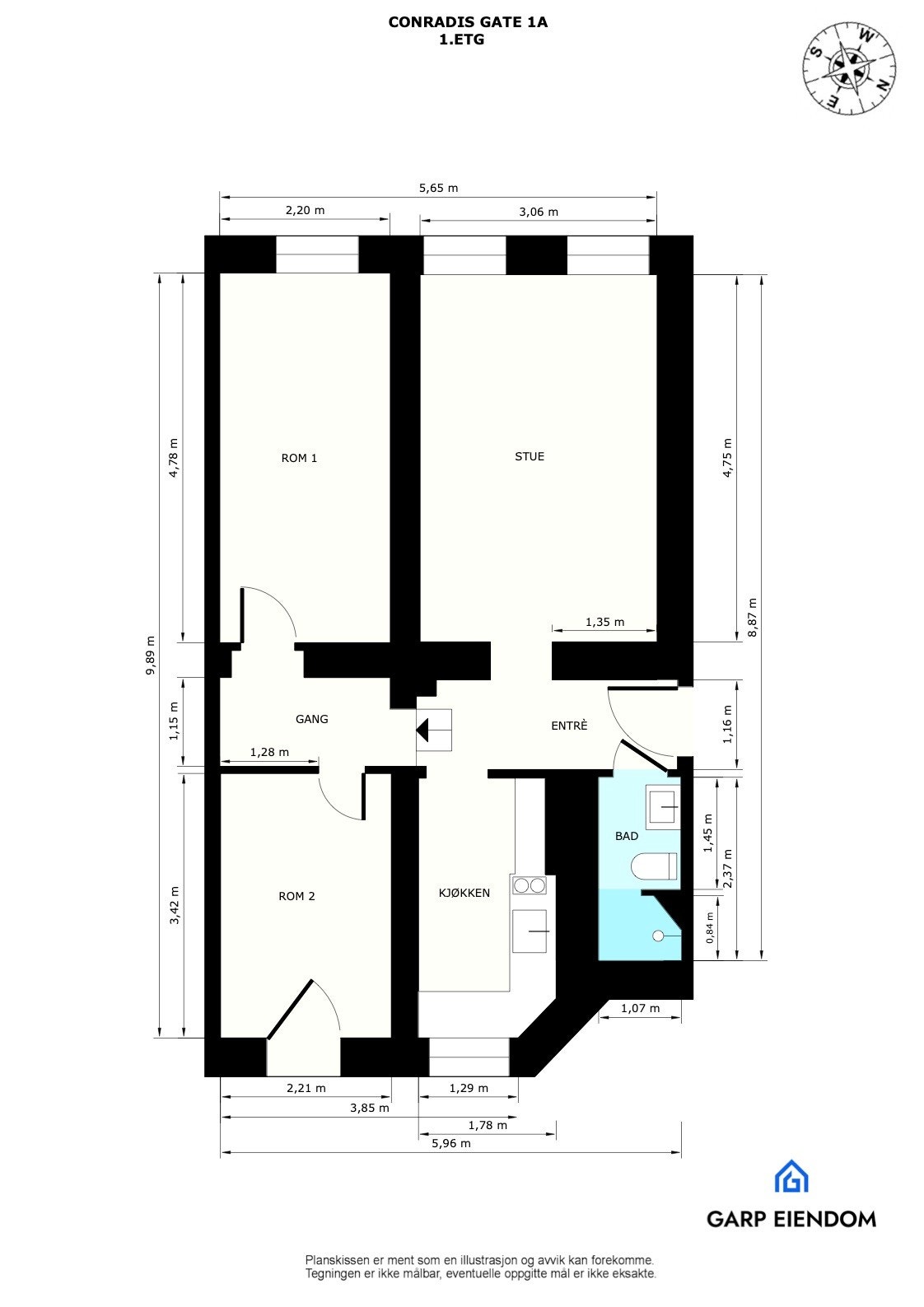
- Internt bruksareal
- 55 m² (BRA-i)
- Bruksareal
- 58 m²
- Eksternt bruksareal
- 3 m² (BRA-e)
- Etasje
- 1
- Byggeår
- 1900
- Rom
- 3
- Tomteareal
- 494 m² (eiet)
Fasiliteter
Barnevennlig
Bredbåndstilknytning
Kjæledyr tillatt
Offentlig vann/kloakk
Rolig
Sentralt
Om boligen
Stor og klassisk selveierleilighet i en flott bygård oppført i 1900. Eiendommen har en svært ettertraktet beliggenhet på Grünerløkka omkranset av flotte miljøgater m/trær og lite trafikk. Leiligheten ligger i en svært høy 1. etg, er gjennomgående og har store vindusflater som skaper en luftig atmosfære. Vakre detaljer som stukkatur, rosett og god takhøyde i stue kombineres m/en unik romløsning m/2 ekstra rom en liten trapp opp (ikke godkjent), i dag innredet m/senger og tilhørende møblement (1.9m takhøyde).
Leiligheten ble overflateoppusset i 2021, men har allikevel et visst moderniseringsbehov avhengig av kjøpers preferanser.
Høydepunkter:
Klassisk og romslig selveier
Unik og spennende planløsning
Kort vei til alt Grünerløkka har å tilby
Stukkatur, rosett og god takhøyde i stue
Leiligheten ble overflateoppusset i 2021, men har allikevel et visst moderniseringsbehov avhengig av kjøpers preferanser.
Høydepunkter:
Klassisk og romslig selveier
Unik og spennende planløsning
Kort vei til alt Grünerløkka har å tilby
Stukkatur, rosett og god takhøyde i stue
NB: Knappen for å vise hele beskrivelsen har kun en visuell effekt.
NB: Knappen for å vise hele beskrivelsen har kun en visuell effekt.
Salgsoppgaven beskriver vesentlig og lovpålagt informasjon om eiendommen
Se komplett salgsoppgaveNyttige lenker
Nærområdet
Nordvik Majorstuen
Annonseinformasjon
| FINN-kode | 446239295 |
|---|---|
| Sist endret | 27. jan. 2026 11:07 |
| Referanse | 8-0676/25 |
Annonsene kan være mangelfulle i forhold til lovpålagt opplysningsplikt. Før bindende avtale inngås oppfordres interessenter til å innhente komplett informasjon fra meglerforetaket, selger eller utleier.






























