Bildegalleri

Proaktiv v/Ola Skarra Arnesen presenterer en eksklusiv og attraktiv 4-roms selveierleilighet i Laboratorieveien 14 på Nordre Jarlsberg Brygge.
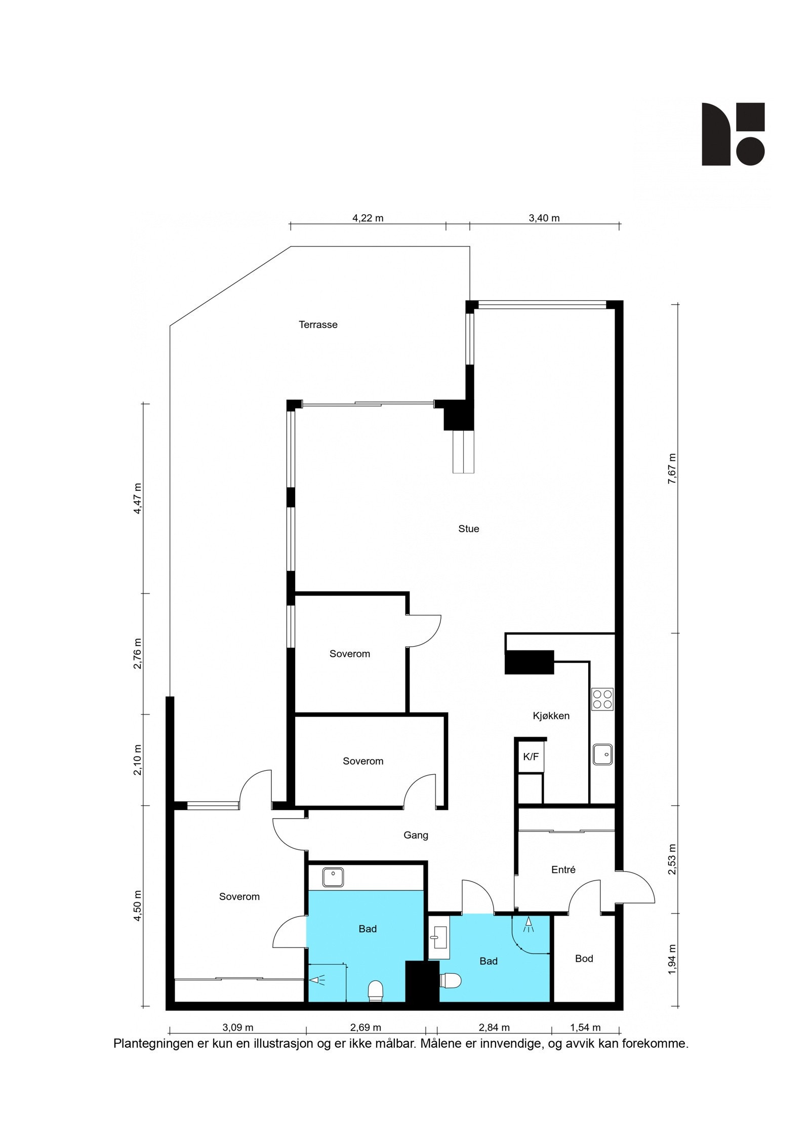
Eksklusiv 4-roms frontleilighet ved vannet med fantastisk utsikt. Stort uteområde, båtplass og 2 garasjeplasser. 2 bad.
Nøkkelinfo
- Boligtype
- Leilighet
- Eieform
- Eier (Selveier)
- Soverom
- 3
- Internt bruksareal
- 129 m² (BRA-i)
- Bruksareal
- 139 m²
- Eksternt bruksareal
- 10 m² (BRA-e)
- Balkong/Terrasse
- 49 m² (TBA)
- Etasje
- 2
- Byggeår
- 2012
- Energimerking
- C - Lysegrønn
- Rom
- 4
- Tomteareal
- 47 m² (eiet)
Fasiliteter
Om boligen
Nordre Jarlsberg Brygge ligger idyllisk og solrikt til ved den flotte havnepromenaden i Sande. Vannkanten, stranda og båtliv ligger rett utenfor, samtidig som det er effektiv reisevei til Drammen, Asker og Oslo, noe som gjør området spesielt ettertraktet. På bryggekanten ligger også den sjarmerende nabolagsrestauranten Sliperiet samt flytende badstue, og rett bak venter utallige turmuligheter - året rundt.
Leiligheten som selges ligger helt i front mot vannet og har fantastiske sol- og utsiktsforhold. I tillegg medfølger to faste garasjeplasser, egen båtplass rett utenfor, heis og ekstra stor bod. 129 lekre kvadratmeter bestående av entré, to bad, bod, tre soverom og et åpent allrom med stue og kjøkken. Vannbåren gulvvarme, balansert ventilasjon og høy standard. Her ligger alt til rette.
Salgsoppgaven beskriver vesentlig og lovpålagt informasjon om eiendommen
Se komplett salgsoppgaveNyttige lenker
Nærområdet
Proaktiv Eiendomsmegling Drammen, Lier & Holmestrand
Annonseinformasjon
| FINN-kode | 446234701 |
|---|---|
| Sist endret | 29. jan. 2026 03:21 |
| Referanse | 106260002 |
Annonsene kan være mangelfulle i forhold til lovpålagt opplysningsplikt. Før bindende avtale inngås oppfordres interessenter til å innhente komplett informasjon fra meglerforetaket, selger eller utleier.









































