Bildegalleri

Velkommen til Kobberveien 20! Ta kontakt med megler ved spørsmål om boligen.
Solgt
VISNING 29/1 - GRIM / TINNHEIA
Pen og moderne leilighet med stor innglass. balkong! Flott utsikt og sen kveldssol. Fyring/varmtvann inkl. i felleskost.
Prisantydning1 690 000 kr
Nøkkelinfo
- Boligtype
- Leilighet
- Eieform
- Andel
- Soverom
- 1
- Internt bruksareal
- 42 m² (BRA-i)
- Bruksareal
- 56 m²
- Eksternt bruksareal
- 2 m² (BRA-e)
- Innglasset balkong
- 12 m² (BRA-b)
- Etasje
- 8
- Byggeår
- 1965
- Energimerking
- D - Gul
- Rom
- 2
- Tomteareal
- 2 687 m² (eiet)
Om boligen
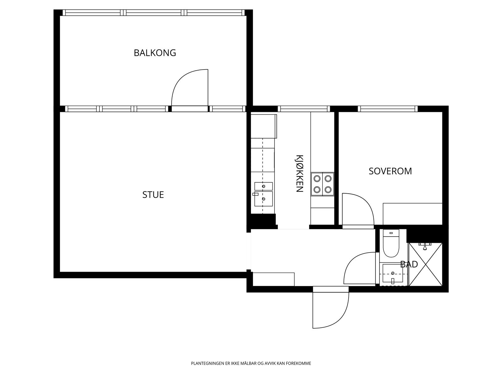
Velkommen til Kobberveien 20, en flott borettslagsleilighet i 8. etasje med vidstrakt utsikt og gode solforhold! Leiligheten er oppgradert de senere i år og framstår som lekker og moderne. Her finner du bl.a. pent enstavs laminatgulv, slette overflater, nyere kjøkken, helfliset bad og en romslig innglasset balkong med flott utsikt og gode solforhold. Dette er med andre ord en leilighet du kan flytte rett inn i og trives fra dag 1!
Fra boligen er det kort gangavstand til bl.a. Duekniben, Idda Arena, dagligvareforretning og kollektivtransport. Til fots er det under 2km til Kvadraturen.
Leiligheten ligger i 8. etg og inneholder: Entré/gang, soverom, bad, kjøkken, stue og en stor innglasset balkong, samt bod i kjeller.
Det er opplegg for vaskemaskin på kjøkken og fellesvaskeri i kjeller.
Fra boligen er det kort gangavstand til bl.a. Duekniben, Idda Arena, dagligvareforretning og kollektivtransport. Til fots er det under 2km til Kvadraturen.
Leiligheten ligger i 8. etg og inneholder: Entré/gang, soverom, bad, kjøkken, stue og en stor innglasset balkong, samt bod i kjeller.
Det er opplegg for vaskemaskin på kjøkken og fellesvaskeri i kjeller.
NB: Knappen for å vise hele beskrivelsen har kun en visuell effekt.
NB: Knappen for å vise hele beskrivelsen har kun en visuell effekt.
Salgsoppgaven beskriver vesentlig og lovpålagt informasjon om eiendommen
Se komplett salgsoppgaveNyttige lenker
Nærområdet
Eiendomsmegler Norge Kristiansand
Best der du bor
Annonseinformasjon
| FINN-kode | 446211916 |
|---|---|
| Sist endret | 30. jan. 2026 11:01 |
| Referanse | 50250322 |
Annonsene kan være mangelfulle i forhold til lovpålagt opplysningsplikt. Før bindende avtale inngås oppfordres interessenter til å innhente komplett informasjon fra meglerforetaket, selger eller utleier.



























