Bildegalleri

Velkommen til Frøyas veg 4 B. Meget flott 3 roms leilighet med innglasset balkong. Flott kjøkken og bad. Fin og sentral beliggenhet.
Solgt
Søre bydel - Flott, påkostet og modernisert leilighet med 2 soverom og flott beliggenhet. Utvidet bad.
Prisantydning1 900 000 kr
Nøkkelinfo
- Boligtype
- Leilighet
- Eieform
- Andel
- Soverom
- 2
- Internt bruksareal
- 68 m² (BRA-i)
- Bruksareal
- 74 m²
- Eksternt bruksareal
- 6 m² (BRA-e)
- Balkong/Terrasse
- 15 m² (TBA)
- Etasje
- 3
- Byggeår
- 1962
- Energimerking
- D - Gul
- Rom
- 3
- Tomteareal
- 17 347 m² (eiet)
Fasiliteter
Aircondition
Balkong/Terrasse
Barnevennlig
Bredbåndstilknytning
Garasje/P-plass
Hage
Kabel-TV
Offentlig vann/kloakk
Rolig
Sentralt
Utsikt
Turterreng
Lademulighet
Om boligen
Velkommen til Frøyas veg 4 B - En trivelig og innholdsrik leilighet i 3. etasje!
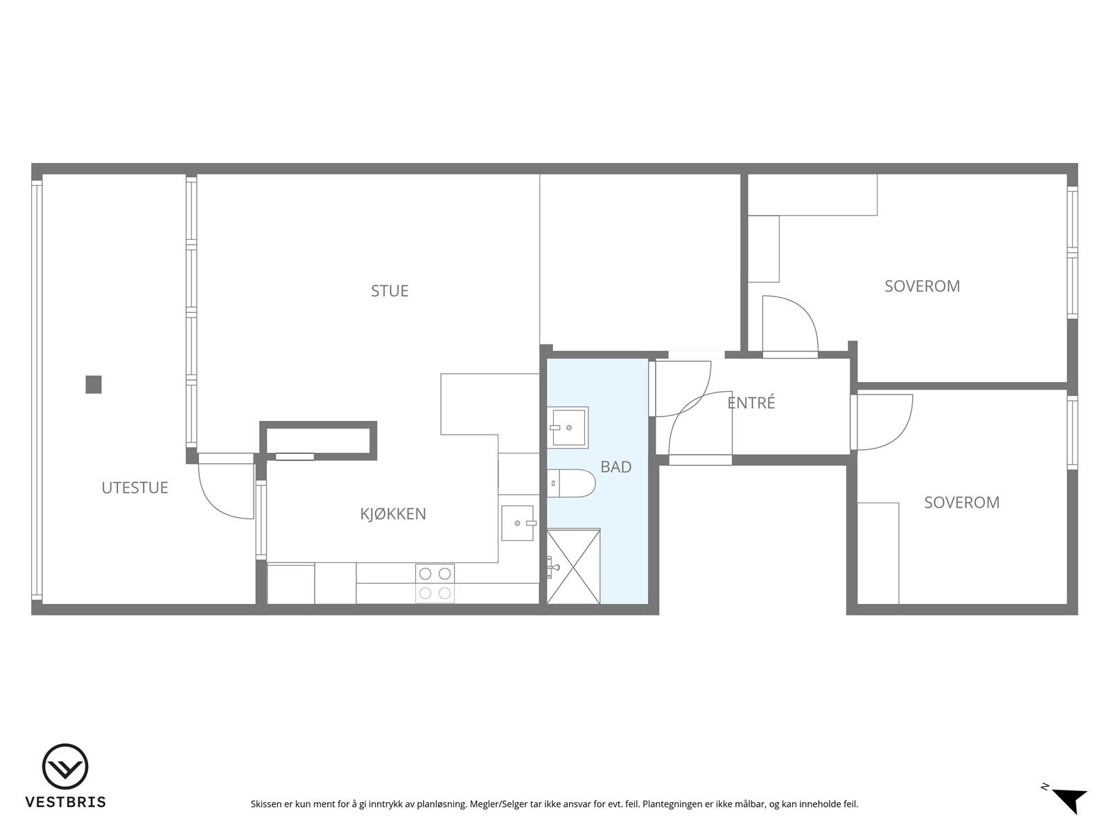
Leiligheten har en svært god planløsning og inneholder et pent kjøkken fra HTH, godt med plass og barløsning. Åpen løsning til stue. Fra stue er det adkomst til stor innglasset balkong man kan nyte hele året. Helt ny varmepumpe i stue. Delikat og utvidet bad/vaskerom som er godt utnyttet og to soverom av god størrelse. Begge med flott og praktisk garderobe. To boder i kjelleren med god plass til oppbevaring. Mulighet for lading av elbil i borettslaget.
Borettslaget har gjennomgått omfattende oppgarderinger på fasade, samt nedgravd avfallsanlegg! Sentral beliggenhet i søre bydel med gang avstand til sentrum med alle fasiliteter, samt kort avstand til Raglamyr og Norheim.
Velkommen på visning!
Leiligheten har en svært god planløsning og inneholder et pent kjøkken fra HTH, godt med plass og barløsning. Åpen løsning til stue. Fra stue er det adkomst til stor innglasset balkong man kan nyte hele året. Helt ny varmepumpe i stue. Delikat og utvidet bad/vaskerom som er godt utnyttet og to soverom av god størrelse. Begge med flott og praktisk garderobe. To boder i kjelleren med god plass til oppbevaring. Mulighet for lading av elbil i borettslaget.
Borettslaget har gjennomgått omfattende oppgarderinger på fasade, samt nedgravd avfallsanlegg! Sentral beliggenhet i søre bydel med gang avstand til sentrum med alle fasiliteter, samt kort avstand til Raglamyr og Norheim.
Velkommen på visning!
NB: Knappen for å vise hele beskrivelsen har kun en visuell effekt.
NB: Knappen for å vise hele beskrivelsen har kun en visuell effekt.
Salgsoppgaven beskriver vesentlig og lovpålagt informasjon om eiendommen
Se komplett salgsoppgaveNyttige lenker
Nærområdet
Eiendomsmegler Norge Haugesund
Best der du bor
Annonseinformasjon
| FINN-kode | 446206991 |
|---|---|
| Sist endret | 25. jan. 2026 14:04 |
| Referanse | 19250295 |
Annonsene kan være mangelfulle i forhold til lovpålagt opplysningsplikt. Før bindende avtale inngås oppfordres interessenter til å innhente komplett informasjon fra meglerforetaket, selger eller utleier.







































