Bildegalleri

Velkommen til Bramers vei 5
Velholdt enebolig med stort potensial og attraktiv beliggenhet - integrert garasje.
Prisantydning4 500 000 kr
Nøkkelinfo
- Boligtype
- Enebolig
- Eieform
- Eier (Selveier)
- Soverom
- 3
- Internt bruksareal
- 125 m² (BRA-i)
- Bruksareal
- 165 m²
- Eksternt bruksareal
- 40 m² (BRA-e)
- Balkong/Terrasse
- 29 m² (TBA)
- Byggeår
- 1972
- Energimerking
- E - Gul
- Rom
- 4
- Tomteareal
- 619 m² (festet)
- Festeavgift
- 2 376 kr
Fasiliteter
Barnevennlig
Balkong/Terrasse
Garasje/P-plass
Parkett
Peis/Ildsted
Aircondition
Sentralt
Rolig
Visning
mandag, 23. februar
18:00 – 18:30
Velkommen til visning!
Vi oppfordrer deg til å melde deg på visningen for å sikre best mulig oppfølging og god tid under besøket. Vær oppmerksom på at visningen blir avlyst dersom ingen er påmeldt innen kl. 12 samme dag.
Om boligen
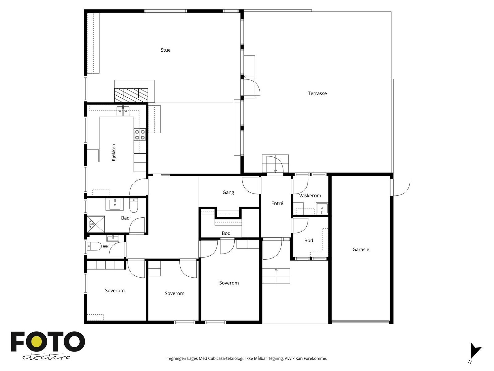
Velkommen til Bramers vei 5 - en velholdt enebolig med attraktiv beliggenhet mellom Trosvik og Oredalen, ved Eketoppen. Boligen har en praktisk og lettstelt planløsning med alt på ett plan, og fremstår som en solid bolig med stort potensial for modernisering etter eget ønske. Huset er godt vedlikeholdt gjennom årene og inneholder romslig stue, kjøkken, tre soverom, bad, separat toalettrom, vaskerom samt stor gang/entré. I tillegg er det garasje tilknyttet boligen og terrasse på baksiden.
Eiendommen ligger i en rolig og veletablert gate omgitt av fine bolighus og hager. Området er populært og familievennlig, med kort vei til barnehage, Trosvik barneskole og idrettstilbud. Samtidig er det nærhet til Fredrikstad sentrum, marka samt gode dagligvare- og servicetilbud.
Velkommen til ditt nye drømmehjem!
Eiendommen ligger i en rolig og veletablert gate omgitt av fine bolighus og hager. Området er populært og familievennlig, med kort vei til barnehage, Trosvik barneskole og idrettstilbud. Samtidig er det nærhet til Fredrikstad sentrum, marka samt gode dagligvare- og servicetilbud.
Velkommen til ditt nye drømmehjem!
NB: Knappen for å vise hele beskrivelsen har kun en visuell effekt.
NB: Knappen for å vise hele beskrivelsen har kun en visuell effekt.
Salgsoppgaven beskriver vesentlig og lovpålagt informasjon om eiendommen
Se komplett salgsoppgaveNyttige lenker
Nærområdet

PrivatMegleren Fredrikstad
Kun det beste på dine vegne
Annonseinformasjon
| FINN-kode | 446135124 |
|---|---|
| Sist endret | 15. feb. 2026 18:47 |
| Referanse | 108250270 |
Annonsene kan være mangelfulle i forhold til lovpålagt opplysningsplikt. Før bindende avtale inngås oppfordres interessenter til å innhente komplett informasjon fra meglerforetaket, selger eller utleier.



































