Bildegalleri

EIDSVOLL - Enebolig med landlig beliggenhet - 1354 kvm tomt
Nøkkelinfo
- Boligtype
- Enebolig
- Eieform
- Eier (Selveier)
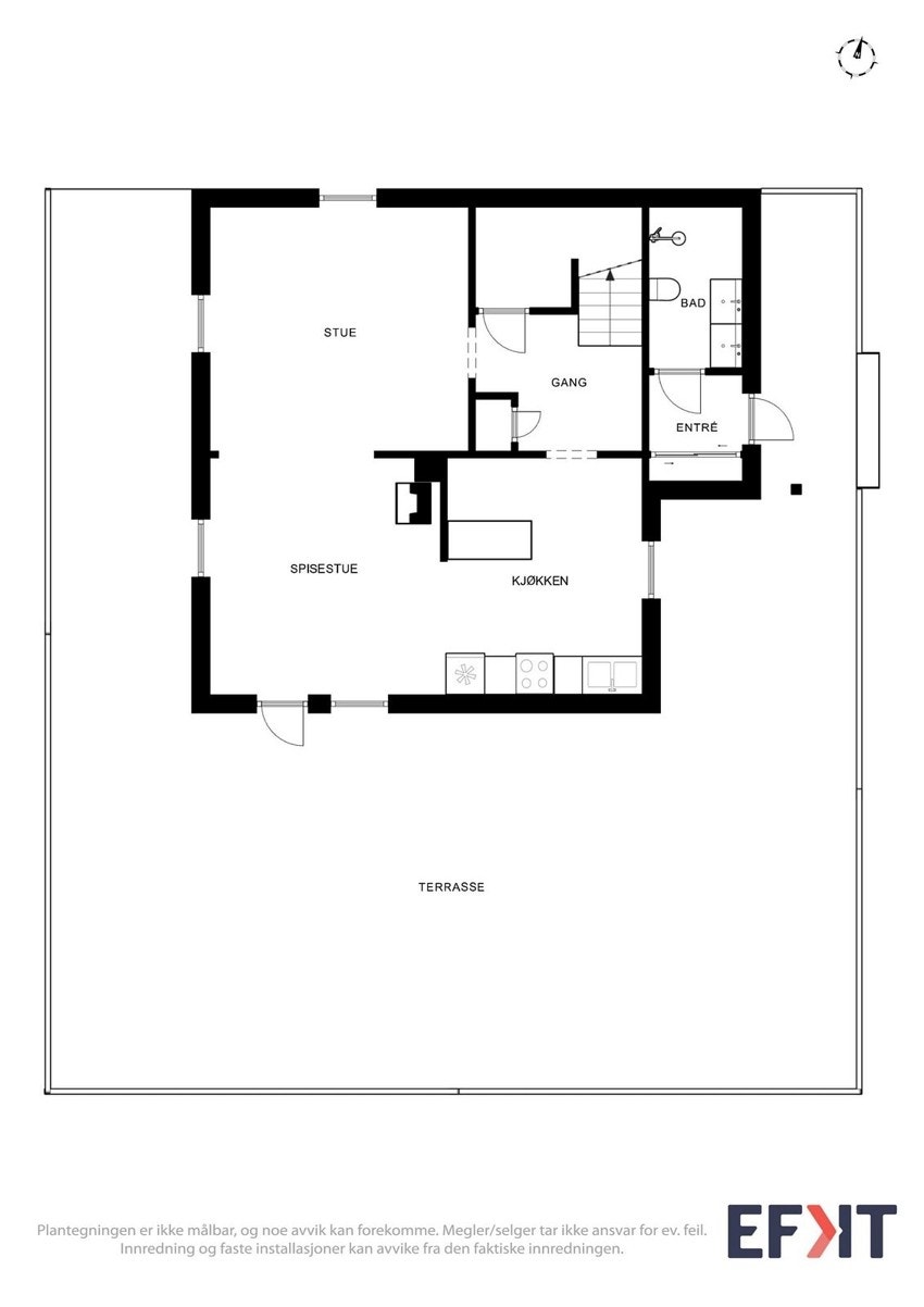
- Internt bruksareal
- 89 m² (BRA-i)
- Balkong/Terrasse
- 110 m² (TBA)
- Byggeår
- 1949
- Energimerking
- G - Gul
- Tomteareal
- 1 354 m² (eiet)
- Grunnflate
- 59 m²
Fasiliteter
Visning
Ta kontakt for å avtale visning.Om boligen
Eldre enebolig oppført i 1949, beliggende på romslig tomt i Eidsvoll kommune.
Eiendommen har en landlig beliggenhet i rolige omgivelser, omgitt av natur og jordbruksområder.
Området preges av spredt bebyggelse med eneboliger, gårdsbruk og fritidseiendommer.
Det er ca. 8 km til Eidsvoll sentrum med dagligvarebutikker, legesenter, kommuneadministrasjon og et variert butikktilbud.
I nærområdet til sentrum finner man også barne, ungdom og videregående skole.
Eiendommen fremstår med betydelig teknisk etterslep og må anses som et rehabiliteringsobjekt. Det må påregnes omfattende oppgraderings- og utbedringsarbeider for å bringe boligen opp til dagens standard.
Salgsoppgaven beskriver vesentlig og lovpålagt informasjon om eiendommen
Se komplett salgsoppgaveNyttige lenker
Nærområdet

Fari Eiendom AS
Annonseinformasjon
| FINN-kode | 446078239 |
|---|---|
| Sist endret | 23. jan. 2026 09:06 |
| Referanse | 28250025 |
Annonsene kan være mangelfulle i forhold til lovpålagt opplysningsplikt. Før bindende avtale inngås oppfordres interessenter til å innhente komplett informasjon fra meglerforetaket, selger eller utleier.





















