Bildegalleri

Kveldsbilde Montebelloveien 14
MONTEBELLO / SMESTAD
Innbydende og stor leilighet. Terrasse på 26 m² med fjordutsikt og gode solforhold | Peis | Garasje | Parkeringsplass
Prisantydning12 990 000 kr
Nøkkelinfo
- Boligtype
- Leilighet
- Eieform
- Eier (Selveier)
- Soverom
- 4
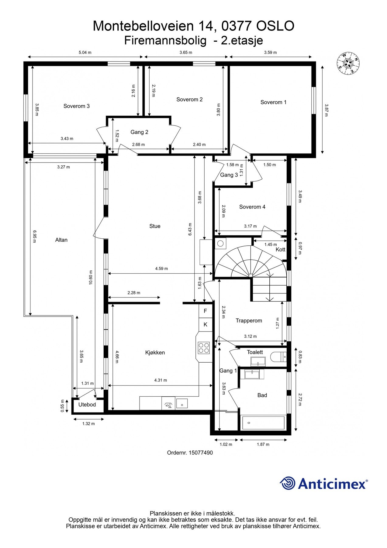
- Internt bruksareal
- 150 m² (BRA-i)
- Bruksareal
- 176 m²
- Eksternt bruksareal
- 26 m² (BRA-e)
- Balkong/Terrasse
- 28 m² (TBA)
- Byggeår
- 1933
- Energimerking
- E - Oransje
- Tomteareal
- 1 560 m² (eiet)
Fasiliteter
Barnevennlig
Balkong/Terrasse
Garasje/P-plass
Offentlig vann/kloakk
Ingen gjenboere
Parkett
Peis/Ildsted
Turterreng
Utsikt
Sentralt
Bredbåndstilknytning
Rolig
Lademulighet
Om boligen
Delikat og stor selveierleilighet med attraktiv beliggenhet i enden av en blindvei. Leiligheten er gjennomgående og har en god planløsning uten gjenboere. Boligen har normalt god standard og fremstår som lys og trivelig i et tidsriktig fargevalg. Sydvestvendt terrasse på 26 m² med gode sol- og utsiktsforhold fremhever boligens kvaliteter.
Leiligheten er en del av en firemannsbolig i en flott funkisvilla. Sentralt, men samtidig tilbaketrukket beliggende i et etablert og ettertraktet nabolag på Nedre Montebello. Området er kjent for sin frodige vegetasjon og historiske bebyggelse med bl.a. kunstnerboligene på Ekely og Edvard Munchs atelier.
Annet:
- Garasje på 20 m²
- Bod på 6 m²
- 3 soverom (evt. 4 soverom)
- 2 stuer (evt. 1 stue)
- Gode turmuligheter ved Mærradalen
Leiligheten er en del av en firemannsbolig i en flott funkisvilla. Sentralt, men samtidig tilbaketrukket beliggende i et etablert og ettertraktet nabolag på Nedre Montebello. Området er kjent for sin frodige vegetasjon og historiske bebyggelse med bl.a. kunstnerboligene på Ekely og Edvard Munchs atelier.
Annet:
- Garasje på 20 m²
- Bod på 6 m²
- 3 soverom (evt. 4 soverom)
- 2 stuer (evt. 1 stue)
- Gode turmuligheter ved Mærradalen
NB: Knappen for å vise hele beskrivelsen har kun en visuell effekt.
NB: Knappen for å vise hele beskrivelsen har kun en visuell effekt.
Salgsoppgaven beskriver vesentlig og lovpålagt informasjon om eiendommen
Se komplett salgsoppgaveNyttige lenker
Nærområdet
EIE Bolig- og prosjektmegling

Jens Christian Killengreen
Daglig leder/Fagansvarlig/Eiendomsmegler MNEF/Partner
Annonsene kan være mangelfulle i forhold til lovpålagt opplysningsplikt. Før bindende avtale inngås oppfordres interessenter til å innhente komplett informasjon fra meglerforetaket, selger eller utleier.


































