Bildegalleri

Velkommen til Skøyenvegen 34!
Ilseng
Enebolig med alle rom på ett plan, 3 soverom, romslig tomt og flere boder. Umiddelbar nærhet til flotte turmuligheter.
Prisantydning2 880 000 kr
Nøkkelinfo
- Boligtype
- Enebolig
- Eieform
- Eier (Selveier)
- Soverom
- 3
- Internt bruksareal
- 190 m² (BRA-i)
- Bruksareal
- 190 m²
- Balkong/Terrasse
- 41 m² (TBA)
- Byggeår
- 1977
- Energimerking
- E - Gul
- Rom
- 4
- Tomteareal
- 1 045 m² (eiet)
Visning
For å delta på visning, ber vi om at du melder deg på. Da sikrer vi at du får nødvendig informasjon og at det er satt av tilstrekkelig med tid. Kontakt megler dersom annet tidspunkt ønskes. Husk å lese salgsoppgaven før visningen, så du stiller forberedt. Ønsker du kun å bli holdt orientert, kan du fra eiendommens hjemmeside få varsel om solgtpris, eller kontakte megler.
VisningspåmeldingOm boligen
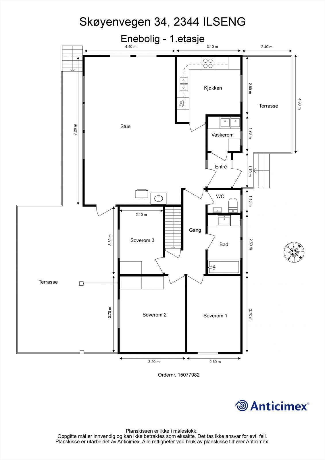
Skøyenvegen 34 er en eldre og familievennlig enebolig beliggende i et etablert boligområde på Ilseng. Her har man alle nødvendige rom på ett plan, hvor 1. etasje inneholder entré, stue, kjøkken, 3 soverom, bad, WC og vaskerom. Fra stue er det utgang til terrasse med videre adkomst til hagen. En god rominndeling hvor man har soverom, bad og WC i egen sone, og stue med gode lysforhold og plass til flere møbleringssoner. Stor kjeller med flere boder som gir gode oppbevaringsmuligheter.
Her bor man i landlige omgivelser med kort kjøretid til sentrum av både Romedal, Stange og Hamar, samt det er gangavstand til nærmeste matbutikk. Kort avstand til flotte turmuligheter som blant annet Ilsengstiene som er kjent for sitt gode og vedlikeholdte turterreng.
Velkommen til en hyggelig visning!
Her bor man i landlige omgivelser med kort kjøretid til sentrum av både Romedal, Stange og Hamar, samt det er gangavstand til nærmeste matbutikk. Kort avstand til flotte turmuligheter som blant annet Ilsengstiene som er kjent for sitt gode og vedlikeholdte turterreng.
Velkommen til en hyggelig visning!
NB: Knappen for å vise hele beskrivelsen har kun en visuell effekt.
NB: Knappen for å vise hele beskrivelsen har kun en visuell effekt.
Salgsoppgaven beskriver vesentlig og lovpålagt informasjon om eiendommen
Se komplett salgsoppgaveNyttige lenker
Nærområdet
Krogsveen Hamar
Verdien av en god megler.
Annonseinformasjon
| FINN-kode | 446026479 |
|---|---|
| Sist endret | 14. jan. 2026 07:41 |
| Referanse | KR65.25322 |
Annonsene kan være mangelfulle i forhold til lovpålagt opplysningsplikt. Før bindende avtale inngås oppfordres interessenter til å innhente komplett informasjon fra meglerforetaket, selger eller utleier.

























