Bildegalleri

Velkommen til Holbergs gate 33, og denne sentrumsnære 2-roms selveierleiligheten beliggende i Sandnes sentrum.
Solgt
Sandnes Sentrum
2-roms selveier i hjertet av Sandnes sentrum - Balkong - Utsikt
Prisantydning3 000 000 kr
Nøkkelinfo
- Boligtype
- Leilighet
- Eieform
- Eier (Selveier)
- Soverom
- 1
- Internt bruksareal
- 41 m² (BRA-i)
- Bruksareal
- 47 m²
- Eksternt bruksareal
- 6 m² (BRA-e)
- Balkong/Terrasse
- 6 m² (TBA)
- Etasje
- 4
- Byggeår
- 2007
- Energimerking
- D - Gul
- Rom
- 2
- Tomteareal
- 1 792 m² (eiet)
Fasiliteter
Balkong/Terrasse
Bredbåndstilknytning
Heis
Kjæledyr tillatt
Offentlig vann/kloakk
Parkett
Sentralt
Utsikt
Vaktmester-/vektertjeneste
Turterreng
Om boligen
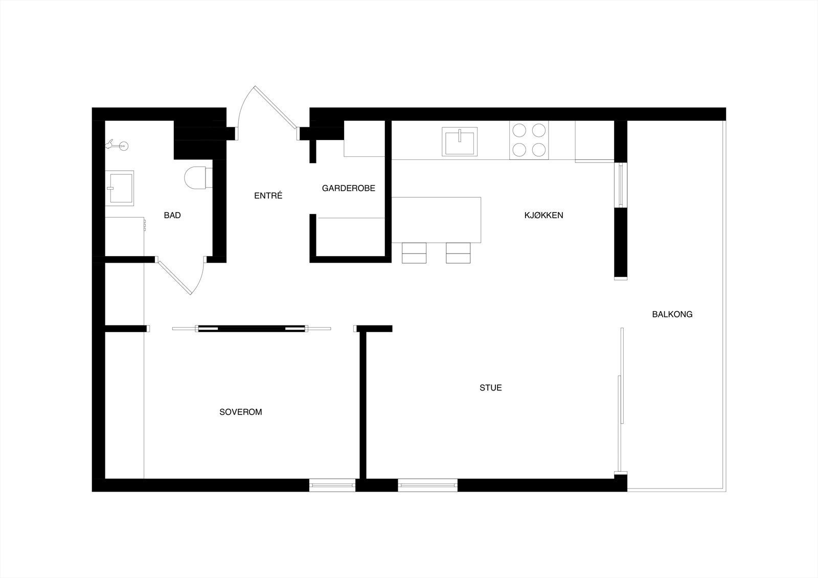
Velkommen til Holbergs gate 33, og denne 2-roms selveierleiligheten beliggende i Sandnes sentrum. Leiligheten har en optimal beliggenhet på hjørnet i byggets 4. etasje med flott utsikt mot Vågen, sjø og omkringliggende fjell. Her har du alt du trenger like utenfor døren, herunder butikker, bakeri, kjøpesenter, togstasjon, busstopp og flere flotte turområder. Bygningen ble oppført i 2007 og har heis.
Verdt å nevne:
- Store vindusflater
- Balkong på ca. 6 m² med flott utsikt
- Åpen og sosial stue-/kjøkkenløsning
- Mye inkludert i fellesutgiftene
- Nærhet til "alt"
Innhold: Entré, stue/kjøkken, soverom, bad + ekstern bod
Leiligheten passer perfekt som deg som vil bo urbant, med nærhet til alt, og hvor man ikke er avhengig av bil.
Velkommen til visning!
Verdt å nevne:
- Store vindusflater
- Balkong på ca. 6 m² med flott utsikt
- Åpen og sosial stue-/kjøkkenløsning
- Mye inkludert i fellesutgiftene
- Nærhet til "alt"
Innhold: Entré, stue/kjøkken, soverom, bad + ekstern bod
Leiligheten passer perfekt som deg som vil bo urbant, med nærhet til alt, og hvor man ikke er avhengig av bil.
Velkommen til visning!
NB: Knappen for å vise hele beskrivelsen har kun en visuell effekt.
NB: Knappen for å vise hele beskrivelsen har kun en visuell effekt.
Salgsoppgaven beskriver vesentlig og lovpålagt informasjon om eiendommen
Se komplett salgsoppgaveNyttige lenker
Nærområdet
Eiendomsmegler Norge Stavanger
Best der du bor
Annonseinformasjon
| FINN-kode | 446023170 |
|---|---|
| Sist endret | 26. jan. 2026 14:14 |
| Referanse | 20250234 |
Annonsene kan være mangelfulle i forhold til lovpålagt opplysningsplikt. Før bindende avtale inngås oppfordres interessenter til å innhente komplett informasjon fra meglerforetaket, selger eller utleier.

























