Bildegalleri

Fasade ? Navn på fotograf: Christian Hassum EFKT
Romslig endeleilighet i 3. etasje - stor, herlig terrasse i rolig omgivelser. Garasjeplass
Nøkkelinfo
- Boligtype
- Leilighet
- Eieform
- Andel
- Soverom
- 2
- Internt bruksareal
- 106 m² (BRA-i)
- Bruksareal
- 113 m²
- Eksternt bruksareal
- 7 m² (BRA-e)
- Balkong/Terrasse
- 28 m² (TBA)
- Etasje
- 3
- Byggeår
- 1985
- Energimerking
- C - Rød
- Rom
- 3
- Tomteareal
- 5 702 m² (eiet)
Om boligen
Velkommen til Humleveien 28!
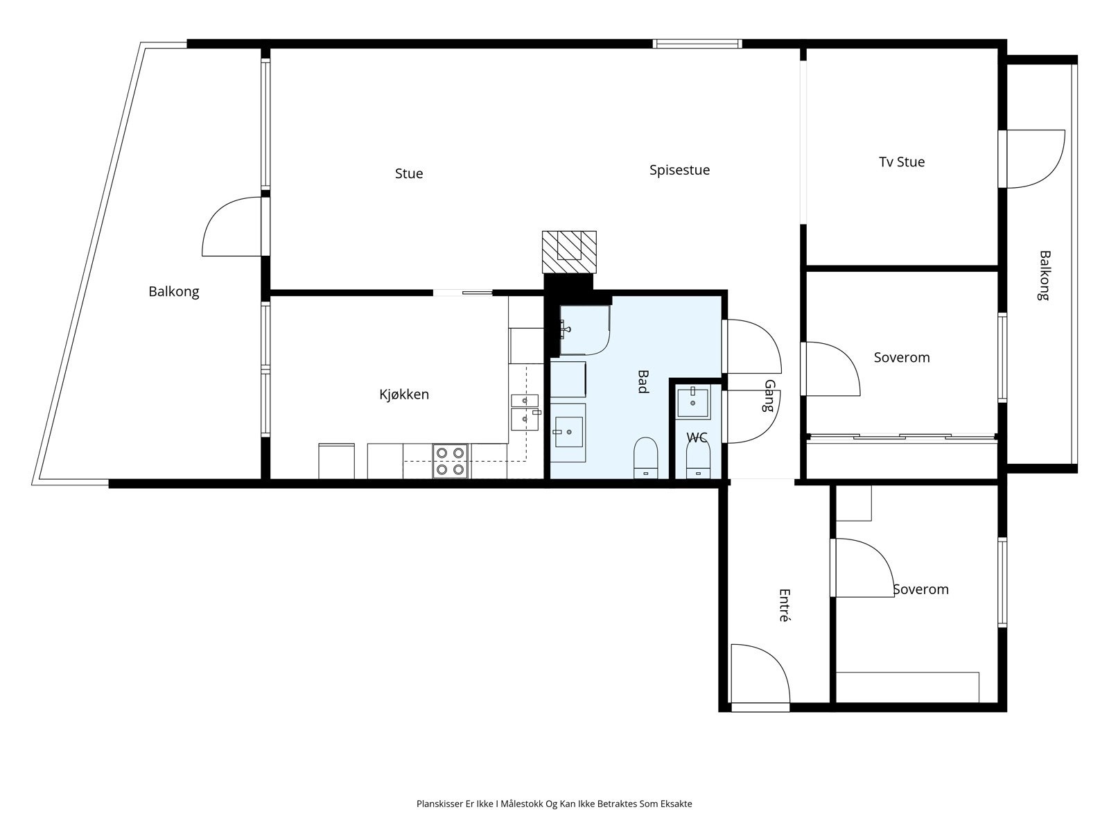
Dette er en romslig og lettstelt 3 roms leilighet. Ligger flott til på enden.
Meget lettstelt og funksjonell bolig med alt på en flate og heis. Boligen ligger på enden.
Boligen ligger i 3. etg. med adkomst fra hovedinngang via heis eller trapp.
Leiligheten inneholder: Gang/entre, 2 soverom, tv- stue(opprinnelig soverom), toalettrom, bad/vaskerom, kjøkken og stue har utgang til stor og solrik vestvendt terrasse.
Parkeringsplass med bod bakenfor i kjeller.
Bod i u etg.
Eiendommen ligger attraktivt til i Hogsnesåsen på Vear i stille og rolige omgivelser med lite trafikk. Nydelige friområder i nærheten og eiendommen ligger tett på sjøen og marka. Det er gode solforhold på eiendommen. Det er kort vei til bussholdeplass og dagligvarebutikker. Ca 5 km til Tønsberg sentrum.
Salgsoppgaven beskriver vesentlig og lovpålagt informasjon om eiendommen
Se komplett salgsoppgaveNyttige lenker
Nærområdet
OBOS eiendomsmeglere - Tønsberg
Annonseinformasjon
| FINN-kode | 446012664 |
|---|---|
| Sist endret | 29. jan. 2026 03:17 |
| Referanse | 712250087 |
Annonsene kan være mangelfulle i forhold til lovpålagt opplysningsplikt. Før bindende avtale inngås oppfordres interessenter til å innhente komplett informasjon fra meglerforetaket, selger eller utleier.





















