Bildegalleri

Velkommen til Linstows gate 6 - Presentert av Viktor Wiese v/Privatmegleren Dyve og Partnere
Solgt
Homannsbyen | Frogner bydel
Sentral & fin leilighet | Midt i Homansbyen ved Slottsparken | Bad 2022 | Heis | Mulig balkong* | P-plass kan kjøpes
Prisantydning3 739 000 kr
Nøkkelinfo
- Boligtype
- Leilighet
- Eieform
- Andel
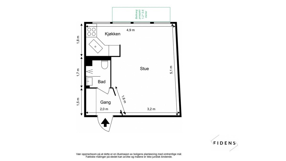
- Internt bruksareal
- 26 m² (BRA-i)
- Bruksareal
- 28 m²
- Eksternt bruksareal
- 2 m² (BRA-e)
- Etasje
- 4
- Byggeår
- 1960
- Energimerking
- G - Rød
- Rom
- 1
- Tomteareal
- 651 m² (eiet)
Fasiliteter
Balkong/Terrasse
Heis
Kabel-TV
Sentralt
Garasje/P-plass
Turterreng
Offentlig vann/kloakk
Fellesvaskeri
Bredbåndstilknytning
Om boligen
Velkommen til Linstows gate 6 - en lys og fin 1-roms leilighet. Beliggende i et urbant, populært og meget sentralt boligområde ved Homansbyen i Oslo. Fra leiligheten er det kort gangavstand til blant annet Slottsparken, og Bogstadveien med alle sine shoppingmuligheter og uteliv. Nationaltheateret og Majorstuen knutepunkt.
Kvaliteter:
- Lys og hyggelig 1-roms leilighet
- Fornuftig og effektiv planløsning
- Bad oppgradert 2022
- God intern beliggenhet i byggets fjerde etasje
- Heis til etasjeplan, bod og evt. garasje
- Det er søkt om tillatelse for oppføring av balkong
- Felles vaskerom i bygget
- Disponibel bod
- Mulighet for kjøp av garasjeplass
- Felles bakgård
- Kort avstand til Slottsparken, Bogstadveien, samt nærhet til Majorstuen, Briskeby og Frogner
Velkommen til visning!
NB: Knappen for å vise hele beskrivelsen har kun en visuell effekt.
NB: Knappen for å vise hele beskrivelsen har kun en visuell effekt.
Salgsoppgaven beskriver vesentlig og lovpålagt informasjon om eiendommen
Se komplett salgsoppgaveNyttige lenker
Nærområdet

PrivatMegleren Dyve & Partnere
Kun det beste på dine vegne
Annonseinformasjon
| FINN-kode | 445990581 |
|---|---|
| Sist endret | 22. jan. 2026 13:49 |
| Referanse | 159250774 |
Annonsene kan være mangelfulle i forhold til lovpålagt opplysningsplikt. Før bindende avtale inngås oppfordres interessenter til å innhente komplett informasjon fra meglerforetaket, selger eller utleier.
















