Bildegalleri

Velkommen til Skogbrynet 33C!
Praktisk 2-roms i etablert og barnevennlig område - Vestvendt balkong - Kort vei til natur og sentrum
Prisantydning1 550 000 kr
Nøkkelinfo
- Boligtype
- Leilighet
- Eieform
- Andel
- Soverom
- 1
- Internt bruksareal
- 46 m² (BRA-i)
- Bruksareal
- 46 m²
- Balkong/Terrasse
- 8 m² (TBA)
- Etasje
- 2
- Byggeår
- 1976
- Energimerking
- E - Rød
- Rom
- 2
- Tomteareal
- 25 773 m² (eiet)
Fasiliteter
Barnevennlig
Balkong/Terrasse
Garasje/P-plass
Kabel-TV
Turterreng
Utsikt
Vaktmester-/vektertjeneste
Rolig
Om boligen
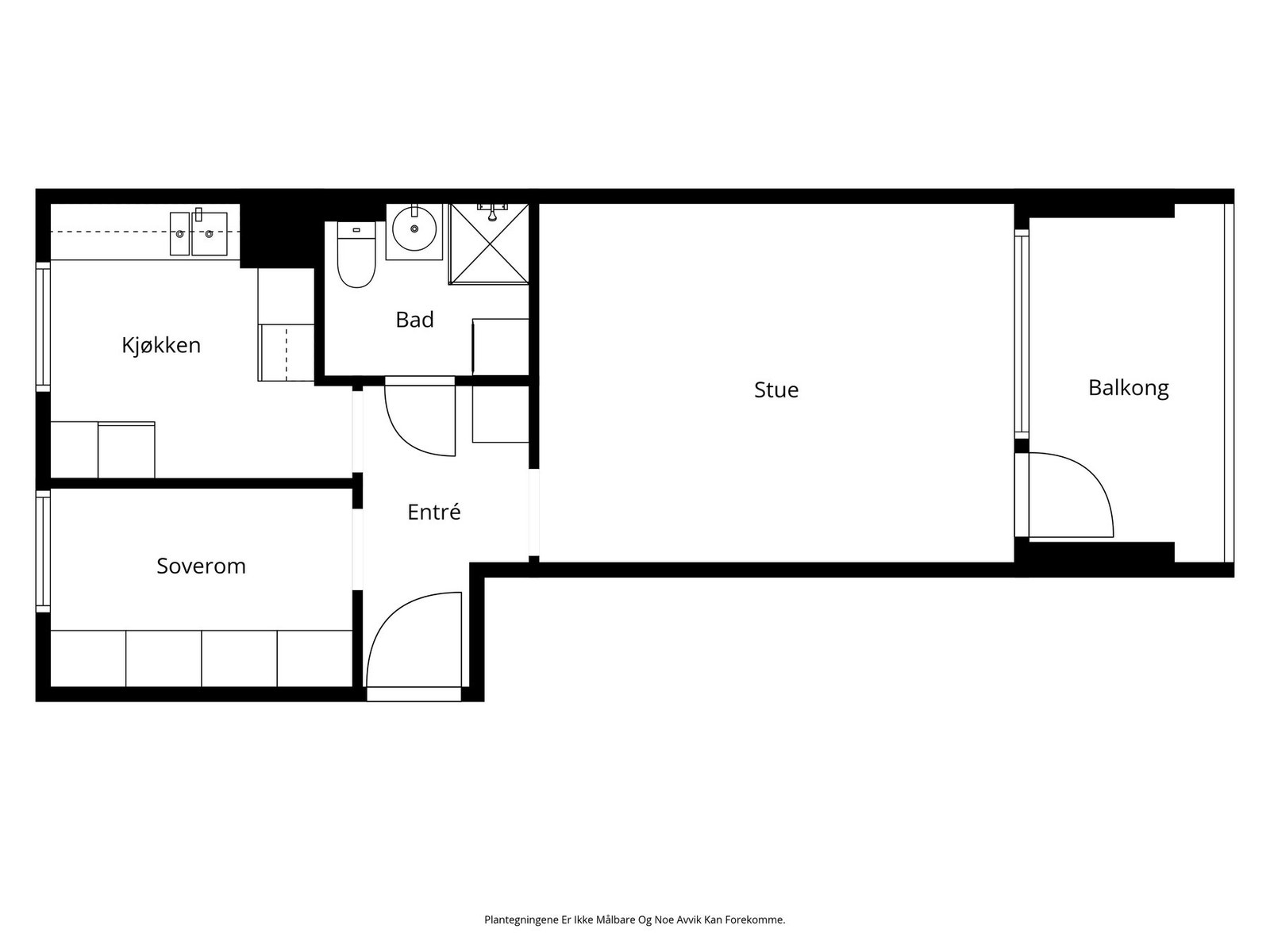
Lys leilighet beliggende i 2. etasje med et total bruksareal på 46 kvm, klar for modernisering og tilpasning etter eget ønske. Leiligheten har en praktisk planløsning og inneholder gang, bad, soverom, kjøkken og stue. Fra stuen er det utgang til en romslig, vestvendt balkong på ca. 8 kvm hvor du kan nyte kveldssolen i rolige og grønne omgivelser.
Boligen ligger i et svært attraktivt og barnevennlig område uten gjennomgangstrafikk, med Sarpsborgmarka som nærmeste nabo. Her har du flotte turmuligheter året rundt, med lysløype, skiløyper vinterstid og kort vei til bade- og friluftsområder ved Tunevannet. Det er gangavstand til barnehage, skole, dagligvarebutikk og buss, samt enkel adkomst til Sarpsborg sentrum og øvrige fasiliteter.
Boligen ligger i et svært attraktivt og barnevennlig område uten gjennomgangstrafikk, med Sarpsborgmarka som nærmeste nabo. Her har du flotte turmuligheter året rundt, med lysløype, skiløyper vinterstid og kort vei til bade- og friluftsområder ved Tunevannet. Det er gangavstand til barnehage, skole, dagligvarebutikk og buss, samt enkel adkomst til Sarpsborg sentrum og øvrige fasiliteter.
NB: Knappen for å vise hele beskrivelsen har kun en visuell effekt.
NB: Knappen for å vise hele beskrivelsen har kun en visuell effekt.
Salgsoppgaven beskriver vesentlig og lovpålagt informasjon om eiendommen
Se komplett salgsoppgaveNyttige lenker
Nærområdet

PrivatMegleren Sarpsborg
Kun det beste på dine vegne
Annonseinformasjon
| FINN-kode | 445966422 |
|---|---|
| Sist endret | 28. jan. 2026 08:02 |
| Referanse | 193250243 |
Annonsene kan være mangelfulle i forhold til lovpålagt opplysningsplikt. Før bindende avtale inngås oppfordres interessenter til å innhente komplett informasjon fra meglerforetaket, selger eller utleier.

















