Bildegalleri

Velkommen til Kilehagen 69 - En attraktiv 2-roms i 1. etasje.

Ås/Kilehagen

Lys og moderne 2-roms fra 2006 | Attraktiv beliggenhet nær NMBU | P-plass og romslig bod | IN-ordning | Lave kjøpsomk.

Prisantydning2 750 000 kr
Totalpris
3 273 728 kr
Omkostninger
11 040 kr
Fellesgjeld
512 688 kr
Felleskost/mnd.
7 109 kr
Fellesformue
17 245 kr
Formuesverdi
747 733 kr

Nøkkelinfo

Boligtype
Leilighet
Eieform
Andel
Soverom
1
Internt bruksareal
39 m² (BRA-i)
Bruksareal
44 m²
Eksternt bruksareal
5 m² (BRA-e)
Balkong/Terrasse
14 m² (TBA)
Etasje
1
Byggeår
2006
Energimerking
D - Rød
Rom
2
Tomteareal
8 418 m² (eiet)

Les mer om bruksareal her

Fasiliteter

Balkong/Terrasse
Garasje/P-plass
Hage
Offentlig vann/kloakk
Parkett
Rolig
Sentralt
Turterreng
Lademulighet

Visning

torsdag, 29. januar
17:00 – 17:45
For å delta på visning, ber vi om at du melder deg på. Kontakt megler dersom annet tidspunkt ønskes. Husk å lese salgsoppgaven før visningen, så du stiller forberedt. NB. Visning utgår dersom det ikke er noen påmeldte. Ønsker du kun å bli holdt orientert, kan du fra eiendommens hjemmeside få varsel om solgtpris, eller kontakte megler. Velkommen!
Visningspåmelding

Om boligen

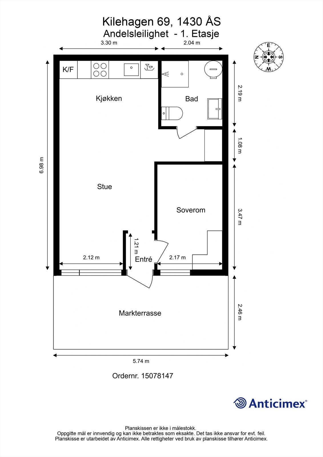
En lys og moderne 2-roms leilighet fra 2006 i idylliske og rolige omgivelser. Attraktiv beliggenhet nær NMBU og Ås sentrum. I Ås sentrum finnes de aller fleste servicetilbud og togstasjon. Bussholdeplass med forbindelser til Ski og Drøbak. Flotte turmuligheter i nærområdet.

Leiligheten ligger i 1. etasje med egen inngang fra bakkeplan. Varmekabler i gulv i alle rom. Leiligheten består av entré, stue med åpen kjøkkenløsning, lyst soverom med garderobeskap, flislagt bad og gang med garderobeskap. Ny overbygget vestvendt terrasse med gode solforhold. Parkeringsplass og utebod rett ved leiligheten.

Perfekt leilighet for studenter eller som førstegangskjøp!

Velkommen til hyggelig visning!

Salgsoppgaven beskriver vesentlig og lovpålagt informasjon om eiendommen

Se komplett salgsoppgave

Nærområdet

Annonseinformasjon

FINN-kode445846458
Sist endret22. jan. 2026 15:09
ReferanseKR46.25216

Rapporter annonse

Annonsene kan være mangelfulle i forhold til lovpålagt opplysningsplikt. Før bindende avtale inngås oppfordres interessenter til å innhente komplett informasjon fra meglerforetaket, selger eller utleier.