Bildegalleri

Velkommen til Bankgata 24A som ligger svært sentralt til i bybildet i Bodø - en sjelden anledning i Bodø sentrum
SENTRUM
Historiske Buggegården/Gimle med ettertraktet beliggenhet | Utviklingspotensiale (inntil 8 boenheter) | Renoveringsbehov
Prisantydning8 300 000 kr
Nøkkelinfo
- Boligtype
- Enebolig
- Eieform
- Eier (Selveier)
- Soverom
- 0
- Internt bruksareal
- 640 m² (BRA-i)
- Bruksareal
- 640 m²
- Etasje
- 4
- Byggeår
- 1907
- Energimerking
- D - Rød
- Tomteareal
- 1 434 m² (eiet)
Fasiliteter
Balkong/Terrasse
Barnevennlig
Garasje/P-plass
Hage
Kjæledyr tillatt
Ingen gjenboere
Offentlig vann/kloakk
Sentralt
Utvidelsesmuligheter
Visning
Budrunde vil tidligst bli avholdt mandag 16. Februar. Bud må ha en minstefrist til 16/2 kl 10.00. Videre må alle bud holde en minstefrist på 1 timer inntil nærmere avklaring foreligger.
Velkommen til visning! Meld deg på ved å trykke "visningspåmelding" i våre boligannonser. Visning med megler til stede vil ikke bli avholdt uten påmeldinger. Ta gjerne kontakt med megler i forkant av visningen om du har spørsmål.
VisningspåmeldingOm boligen
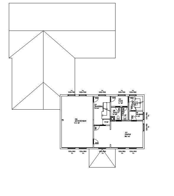
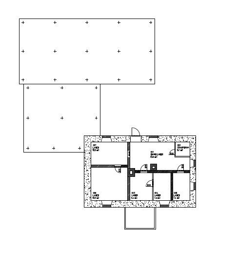
Velkommen til Buggegården/Gimle - En byhistorisk eiendom med sentral og attraktiv beliggenhet. Eiendommen grenser i nord til Plysjbyen, som er det best bevarte området med førkrigsbebyggelse i Bodø sentrum.
Eiendommen er i dag bebygd med en eldre enebolig i to etasjer + kjeller og loft (Buggegården, 1907), og et nyere tilbygg i én etasje (Gimle, 1978). Eiendommen fungerte som Gimle fritidssenter/kulturhus i perioden 1979-2019. Bygget ble nedstengt i 2020 og har stått tomt/ubrukt siden. Totalrehabilitering og ombygging må påregnes.
Ny reguleringsplan (plan ID 2022014) åpner for bruksendring til boligformål, med inntil 8 boenheter. Buggegården skal bevares og kan ombygges med inntil 4 boenheter. Tilbygget Gimle kan rives, og det kan bygges to tomannsboliger nord på tomten.
Eiendommen er i dag bebygd med en eldre enebolig i to etasjer + kjeller og loft (Buggegården, 1907), og et nyere tilbygg i én etasje (Gimle, 1978). Eiendommen fungerte som Gimle fritidssenter/kulturhus i perioden 1979-2019. Bygget ble nedstengt i 2020 og har stått tomt/ubrukt siden. Totalrehabilitering og ombygging må påregnes.
Ny reguleringsplan (plan ID 2022014) åpner for bruksendring til boligformål, med inntil 8 boenheter. Buggegården skal bevares og kan ombygges med inntil 4 boenheter. Tilbygget Gimle kan rives, og det kan bygges to tomannsboliger nord på tomten.
NB: Knappen for å vise hele beskrivelsen har kun en visuell effekt.
NB: Knappen for å vise hele beskrivelsen har kun en visuell effekt.
Salgsoppgaven beskriver vesentlig og lovpålagt informasjon om eiendommen
Se komplett salgsoppgaveNyttige lenker
Nærområdet
DNB Eiendom AS
Fra hjem til hjem
Annonseinformasjon
| FINN-kode | 445764499 |
|---|---|
| Sist endret | 22. jan. 2026 17:44 |
| Referanse | 813250498 |
Annonsene kan være mangelfulle i forhold til lovpålagt opplysningsplikt. Før bindende avtale inngås oppfordres interessenter til å innhente komplett informasjon fra meglerforetaket, selger eller utleier.
























