Bildegalleri

Velkommen til Gamle Åsvei 54 A! En innholdsrik og nyoppført familiebolig i et attraktivt boligområde rett nedenfor Åsveien skole.
SVERRESBORG/ÅSVEIEN
Ny & komfortabel familiebolig | Solrik takterrasse |5 soverom | 2 P-plasser i oppvarmet kjeller. Svært lave energikost.
Prisantydning11 490 000 kr
Nøkkelinfo
- Boligtype
- Enebolig
- Eieform
- Selveier
- Soverom
- 5
- Internt bruksareal
- 168 m² (BRA-i)
- Bruksareal
- 176 m²
- Eksternt bruksareal
- 8 m² (BRA-e)
- Byggeår
- 2025
- Rom
- 6
- Tomteareal
- 1 185 m² (eiet)
Fasiliteter
Barnevennlig
Balkong/Terrasse
Kabel-TV
Offentlig vann/kloakk
Parkett
Turterreng
Utsikt
Bredbåndstilknytning
Moderne
Rolig
Lademulighet
Balansert ventilasjon
Om boligen
Velkommen til Gamle Åsvei 54 A!
Splitter ny og innholdsrik enebolig på nedre del av Sverresborg med svært gode løsninger og høy kvalitet (TEK17).
Av kvaliteter nevnes:
- Arkitekttegnet enebolig med høy kvalitet og svært gode løsninger (TEK17).
- Stor stue på 48 kvm med utgang til sørvestvent og solrik terrasse på 40 kvm.
- Uteareal vil deles inn, skjermes ytterligere og ferdigstilles våren -26.
- Egen TV-stue/ekstra soverom på hovedplan.
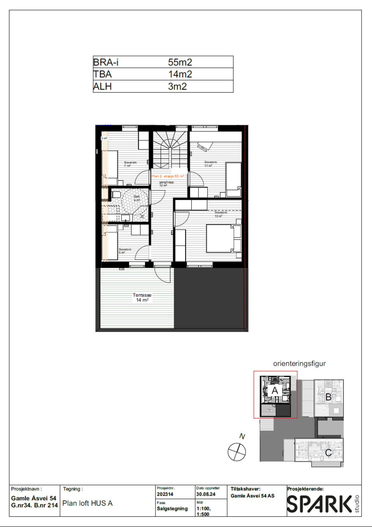
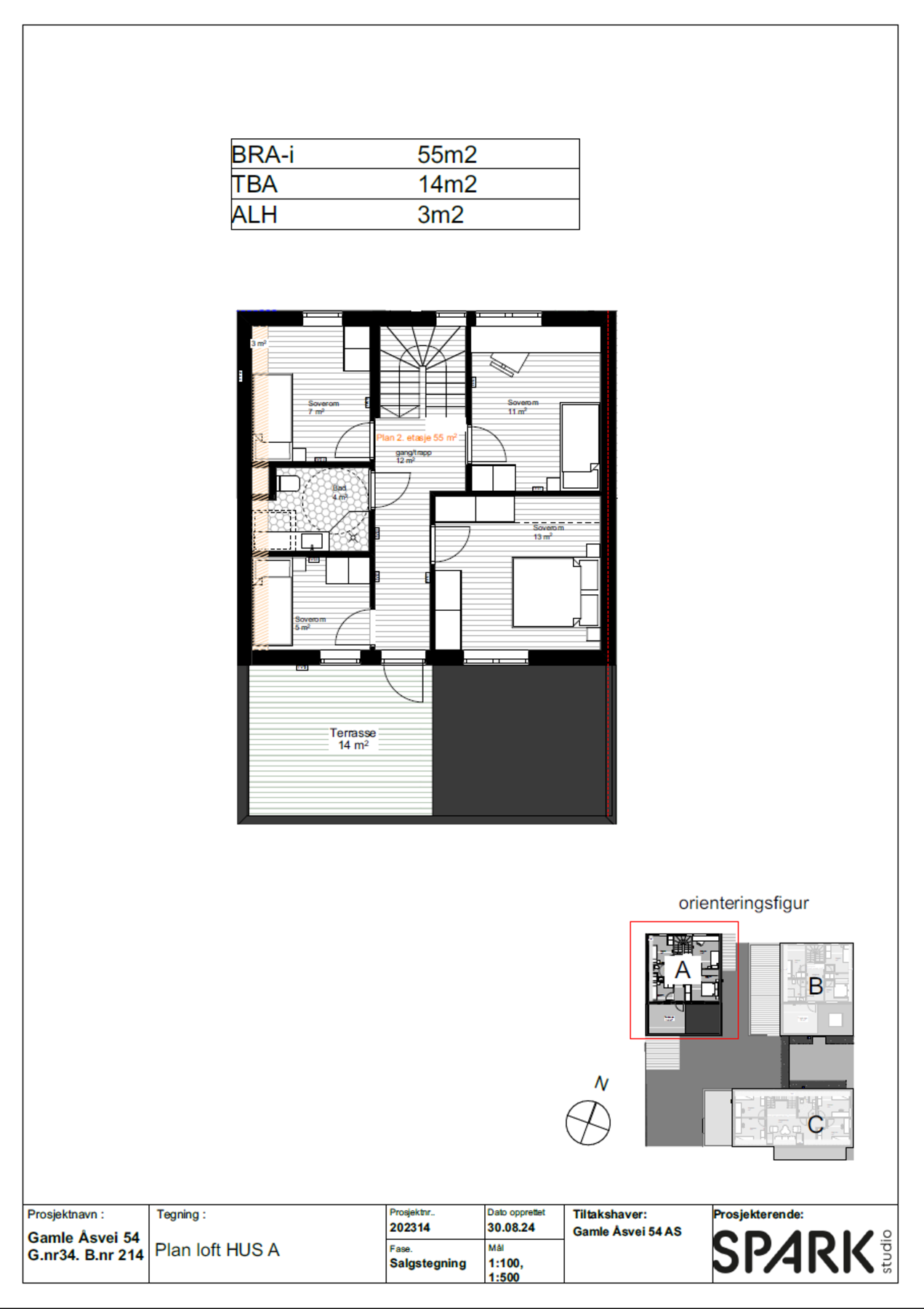
- 4 soverom og bad i 2.etg.
- Utgang til solrik terrasse med utsikt i 2.etg.
- Egen inngang til huset direkte fra P-kjeller med 2 plasser.
- Stort vaskerom på 10 kvm. i kjeller.
- Godt med bodplass og garderobe i kjeller.
- Gjennomgående bruk av kvalitetsmaterialer.
- Jordvarme og balansert ventilasjon.
- Lav dokumentavgift.
- Rolig og barnevennlig område. Kort vei til Åsveien barneskole og Sverresborg ungdomsskole.
- 2 - 300 meter unna buss og trikkestopp.
- Gang- og sykkelavstand til St. Olavs og NTNU.
- INNFLYTTINGSKLAR!
Splitter ny og innholdsrik enebolig på nedre del av Sverresborg med svært gode løsninger og høy kvalitet (TEK17).
Av kvaliteter nevnes:
- Arkitekttegnet enebolig med høy kvalitet og svært gode løsninger (TEK17).
- Stor stue på 48 kvm med utgang til sørvestvent og solrik terrasse på 40 kvm.
- Uteareal vil deles inn, skjermes ytterligere og ferdigstilles våren -26.
- Egen TV-stue/ekstra soverom på hovedplan.
- 4 soverom og bad i 2.etg.
- Utgang til solrik terrasse med utsikt i 2.etg.
- Egen inngang til huset direkte fra P-kjeller med 2 plasser.
- Stort vaskerom på 10 kvm. i kjeller.
- Godt med bodplass og garderobe i kjeller.
- Gjennomgående bruk av kvalitetsmaterialer.
- Jordvarme og balansert ventilasjon.
- Lav dokumentavgift.
- Rolig og barnevennlig område. Kort vei til Åsveien barneskole og Sverresborg ungdomsskole.
- 2 - 300 meter unna buss og trikkestopp.
- Gang- og sykkelavstand til St. Olavs og NTNU.
- INNFLYTTINGSKLAR!
NB: Knappen for å vise hele beskrivelsen har kun en visuell effekt.
NB: Knappen for å vise hele beskrivelsen har kun en visuell effekt.
Salgsoppgaven beskriver vesentlig og lovpålagt informasjon om eiendommen
Se komplett salgsoppgaveNærområdet
Nylander &Partners, Trondheim sentrum
Verdien av lokalkunnskap
Annonsene kan være mangelfulle i forhold til lovpålagt opplysningsplikt. Før bindende avtale inngås oppfordres interessenter til å innhente komplett informasjon fra meglerforetaket, selger eller utleier.






























