Bildegalleri

Oreligrenda 3 byr på gjennomtenkt arkitektur, rike materialvalg og en sjelden helhet mellom hus og hage.
Grav/Jar
Flott, innholdsrikt funkis signert ark. Randi Kvam. Solrike uteplasser, parkmessig hage, rolig blindvei, garasje & hybel
Prisantydning24 900 000 kr
Nøkkelinfo
- Boligtype
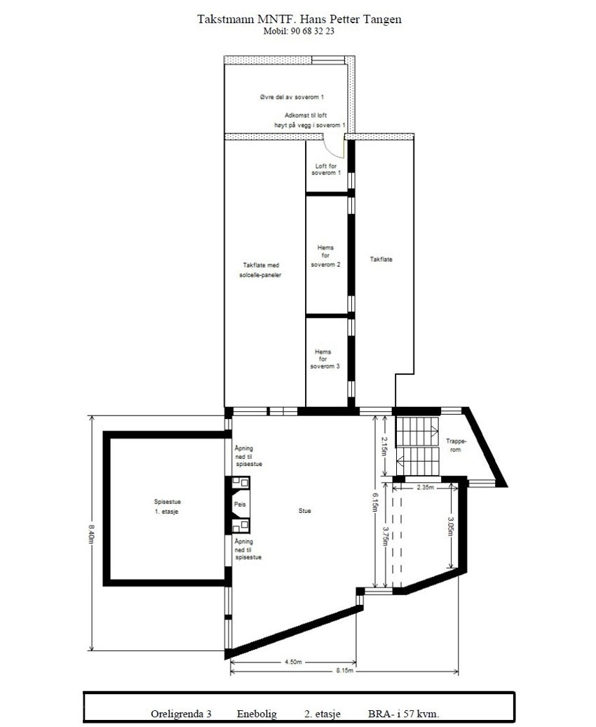
- Enebolig
- Eieform
- Eier (Selveier)
- Soverom
- 4
- Internt bruksareal
- 345 m² (BRA-i)
- Bruksareal
- 393 m²
- Eksternt bruksareal
- 48 m² (BRA-e)
- Balkong/Terrasse
- 31 m² (TBA)
- Byggeår
- 1989
- Energimerking
- C - Lysegrønn
- Rom
- 10
- Tomteareal
- 919 m² (eiet)
- Boligselgerforsikring
- Ja
Fasiliteter
Balkong/Terrasse
Peis/Ildsted
Barnevennlig
Rolig
Kabel-TV
Sentralt
Garasje/P-plass
Turterreng
Offentlig vann/kloakk
Bredbåndstilknytning
Lademulighet
Visning
Vennligst kontakt megler for visning!
Fredrik Dyve på telefon: 922 11 465. Mail: dyve@privatmegleren.no eller Kasper Hancke på telefon: 90505222. Mail: kasper.hancke@privatmegleren.no
VisningspåmeldingOm boligen
Oreligrenda 3 byr på gjennomtenkt arkitektur, rike materialvalg og en sjelden helhet mellom hus og hage. Eiendommen er signert arkitekt Randi Kvam, har tydelige ny-funkis preg og ypperlig beliggenhet i rolig blindvei. Husets planløsning over tre plan er fleksibel og godt tilpasset et moderne familieliv. Villastrøket byr på enkel hverdagslogistikk.
- Parkmessig opparbeidet tomt på 920 m²
- Solrike uteområder; balkong, terrasser og hage
- Flere, flotte oppholdsrom og spennende himlingshøyder
- Praktisk soveromsfløy med to baderom
- Barnerommene har egen sove-/lekehems
- Innholdsrik underetasje med peisestue, hobbyrom og arbeidsrom
- Vinkjeller, badstue og svært gode lagringsmuligheter i huset
- Hybelløsning med egen inngang og eget strømabb.
- Solcelleanlegg, varmepumpe og appstyrt temperatur
- Dobbelgarasje med lader
NB: Knappen for å vise hele beskrivelsen har kun en visuell effekt.
NB: Knappen for å vise hele beskrivelsen har kun en visuell effekt.
Salgsoppgaven beskriver vesentlig og lovpålagt informasjon om eiendommen
Se komplett salgsoppgaveNyttige lenker
Nærområdet

PrivatMegleren Dyve & Partnere
Kun det beste på dine vegne
Annonseinformasjon
| FINN-kode | 445474619 |
|---|---|
| Sist endret | 28. jan. 2026 03:05 |
| Referanse | 159250727 |
Annonsene kan være mangelfulle i forhold til lovpålagt opplysningsplikt. Før bindende avtale inngås oppfordres interessenter til å innhente komplett informasjon fra meglerforetaket, selger eller utleier.


























































