Bildegalleri

Velkommen til Tempelveien 48!
Sætre/ Asker
Landlig enebolig med 3 soverom | Store uteplasser, peis og badstue | Carport og p-plass m/ elbillader
Prisantydning3 790 000 kr
Nøkkelinfo
- Boligtype
- Enebolig
- Eieform
- Eier (Selveier)
- Soverom
- 3
- Internt bruksareal
- 162 m² (BRA-i)
- Bruksareal
- 177 m²
- Eksternt bruksareal
- 15 m² (BRA-e)
- Balkong/Terrasse
- 101 m² (TBA)
- Etasje
- 1
- Byggeår
- 1975
- Energimerking
- F - Oransje
- Rom
- 4
- Tomteareal
- 584 m² (eiet)
Fasiliteter
Balkong/Terrasse
Barnevennlig
Garasje/P-plass
Hage
Peis/Ildsted
Rolig
Turterreng
Lademulighet
Visning
Ønsker du å delta på visningen ber vi deg melde deg på slik at vi vet at du kommer. Da kan vi bistå alle best mulig og gi deg tiden du trenger på visningen. Visningen avholdes bare dersom det er påmeldte senest 4 timer før visning. Ta gjerne kontakt med megler før visning hvis du har noen spørsmål. Velkommen!
VisningspåmeldingOm boligen
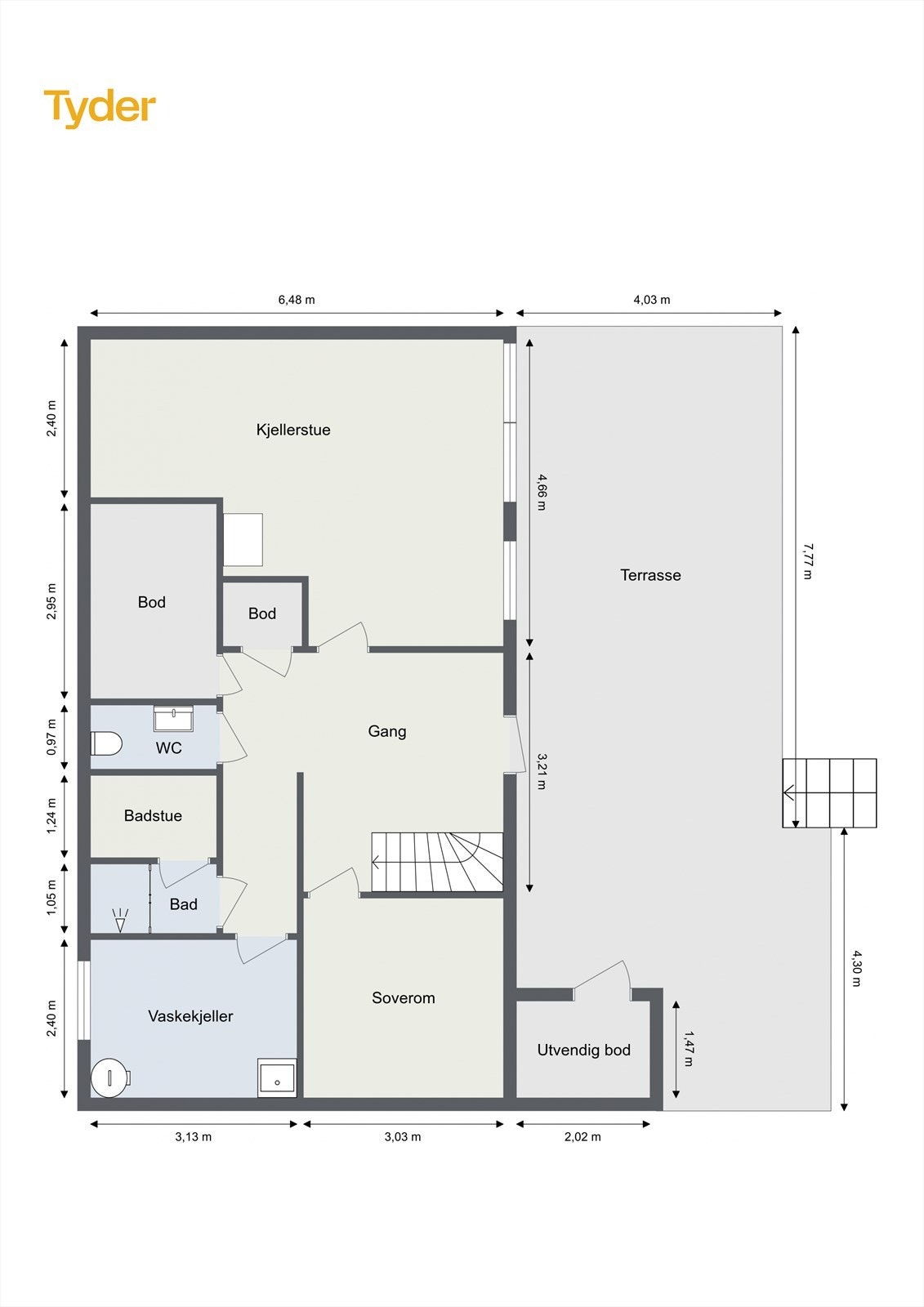
Velkommen til Tempelveien 48! Dette er en romslig enebolig med flotte uteplasser, beliggende i et rolig og naturnært nabolag i Sætre.
Forestill deg en hverdag i et trygt og barnevennlig nabolag med kort vei til skoler og barnehager. Med marka som nærmeste nabo er det umiddelbar tilgang til flotte turområder. Samtidig er det en kort tur til Sætre sentrum med butikker og servicetilbud. Boligens store uteplasser gir rikelig med plass for både avslapning og sosiale sammenkomster.
Høydepunkter:
- Moderne bad i underetasjen (2015)
- Egen badstue for velvære og avkobling
- Peis i stuen for varme og hygge
- Varmepumper installert i begge etasjer
- Parkeringsplass i garasjerekke med elbillader, samt carport
- Ny varmtvannsbereder fra 2023
Velkommen til visning!
Forestill deg en hverdag i et trygt og barnevennlig nabolag med kort vei til skoler og barnehager. Med marka som nærmeste nabo er det umiddelbar tilgang til flotte turområder. Samtidig er det en kort tur til Sætre sentrum med butikker og servicetilbud. Boligens store uteplasser gir rikelig med plass for både avslapning og sosiale sammenkomster.
Høydepunkter:
- Moderne bad i underetasjen (2015)
- Egen badstue for velvære og avkobling
- Peis i stuen for varme og hygge
- Varmepumper installert i begge etasjer
- Parkeringsplass i garasjerekke med elbillader, samt carport
- Ny varmtvannsbereder fra 2023
Velkommen til visning!
NB: Knappen for å vise hele beskrivelsen har kun en visuell effekt.
NB: Knappen for å vise hele beskrivelsen har kun en visuell effekt.
Salgsoppgaven beskriver vesentlig og lovpålagt informasjon om eiendommen
Se komplett salgsoppgaveNyttige lenker
Nærområdet
EiendomsMegler 1 Asker
Vi loser deg trygt gjennom hele boligsalget
Annonseinformasjon
| FINN-kode | 445357136 |
|---|---|
| Sist endret | 24. jan. 2026 17:55 |
| Referanse | 6010260061 |
Annonsene kan være mangelfulle i forhold til lovpålagt opplysningsplikt. Før bindende avtale inngås oppfordres interessenter til å innhente komplett informasjon fra meglerforetaket, selger eller utleier.





































