Bildegalleri

Velkommen til Sørvangen 15! - Presentert av Stian Pøhner og Siril Sloreby. Foto: Arne Schram
Solgt
Attraktivt på Furulund/ Bestum
Lekker & stilfull enebolig på 294 m² med dobbelgarasje | Renovert 2020 | 5 soverom/ 4 bad | 2 hybler | Stor, frodig have
Prisantydning25 900 000 kr
Nøkkelinfo
- Boligtype
- Enebolig
- Eieform
- Eier (Selveier)
- Soverom
- 5
- Internt bruksareal
- 294 m² (BRA-i)
- Bruksareal
- 332 m²
- Eksternt bruksareal
- 38 m² (BRA-e)
- Balkong/Terrasse
- 60 m² (TBA)
- Byggeår
- 1940
- Energimerking
- D - Gul
- Rom
- 9
- Tomteareal
- 992 m² (eiet)
Fasiliteter
Aircondition
Alarm
Barnevennlig
Bredbåndstilknytning
Garasje/P-plass
Hage
Kjæledyr tillatt
Offentlig vann/kloakk
Parkett
Peis/Ildsted
Rolig
Turterreng
Lademulighet
Balansert ventilasjon
Om boligen
Velkommen til Sørvangen 15! - En meget lekker og innholdsrik familiebolig med stor, frodig have. Skjermet beliggenhet i rolig gate uten gjennomgangstrafikk. 2 gode hybler med egen inngang. Meget attraktivt og etterspurt område!
- Boligen er omfattende renovert i 2020. Meget flott håndverk. Stilsikkert og lekkert oppusset.
- Solrik hage reetablert 2021 med flate partier, hekker, plattinger, internstier, prydbusker og frukttrær
- Tilbaketrukket og skjermet beliggenhet
- Eksklusivt kjøkken og lekre baderom
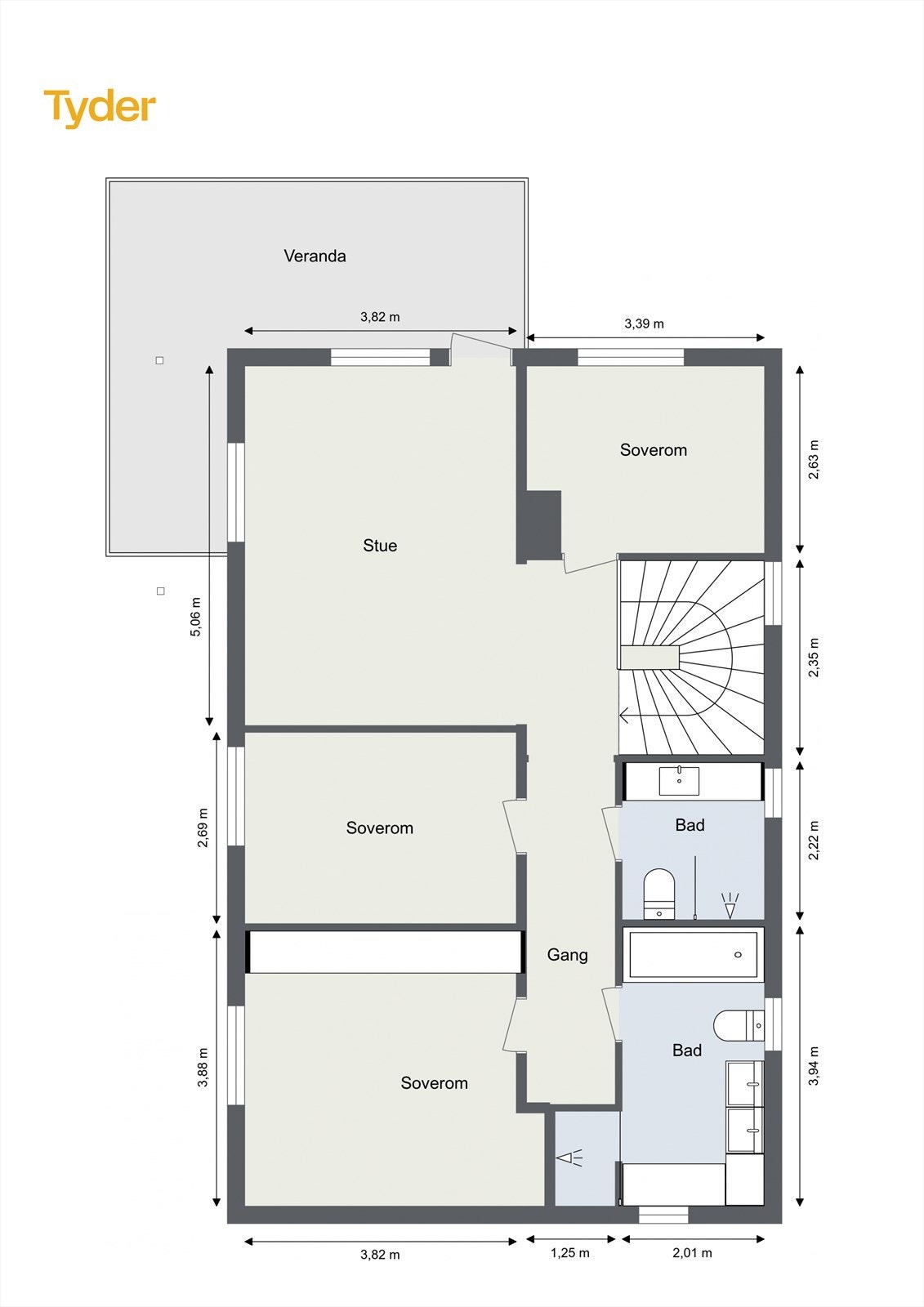
- 294 m² BRA-i med 5 sov, 4 bad, wc og separat vaskerom
- Umiddelbar nærhet til den kommende nye Vækerø stasjon (ca. 250m)
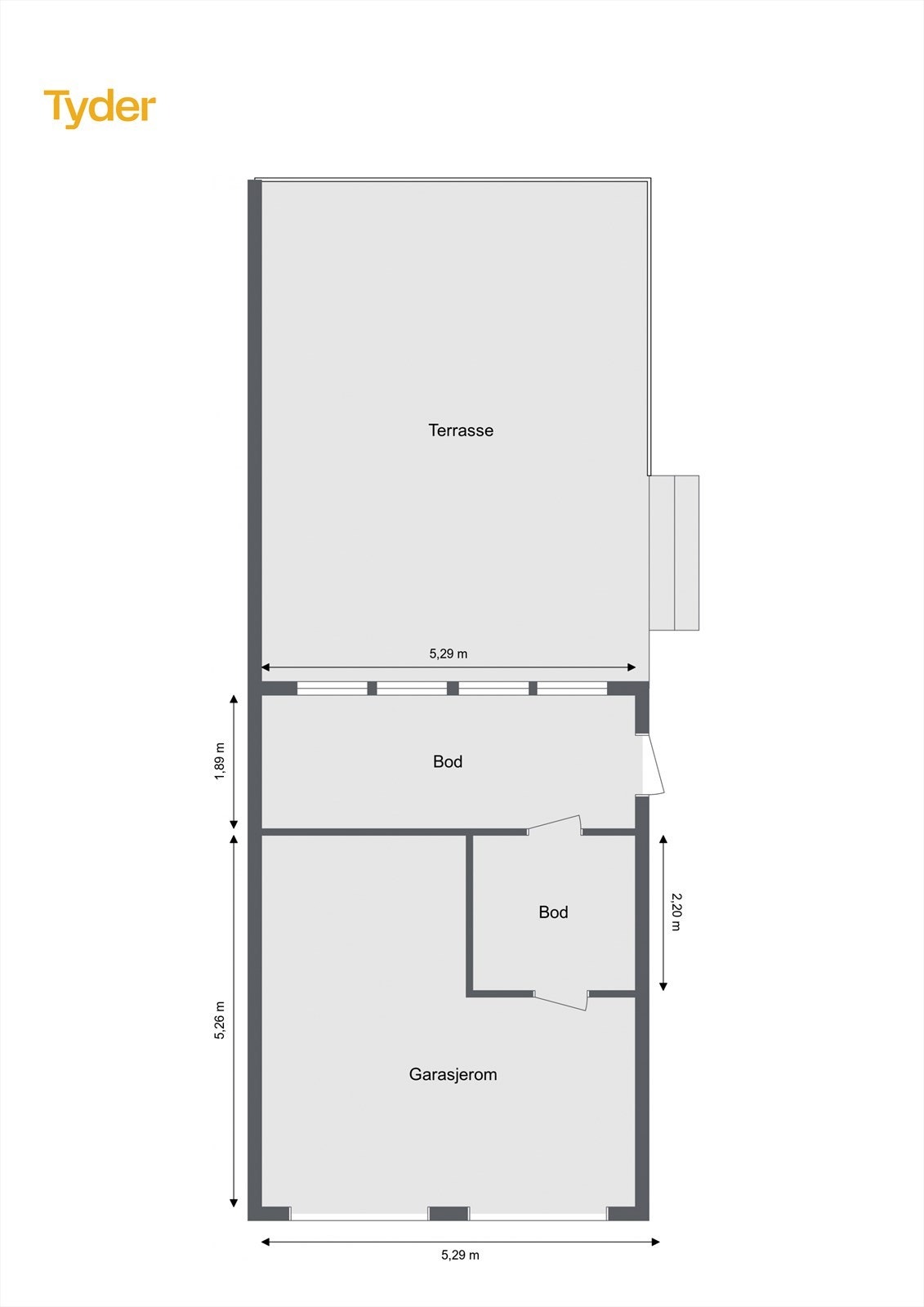
- Dobbelgarasje med 2 boder
- 2 hybler som genererer 320k + årlig
- Barnevennlige omgivelser
- Nærhet til skoler, barnehager og rekreasjonsområder
NB: Knappen for å vise hele beskrivelsen har kun en visuell effekt.
NB: Knappen for å vise hele beskrivelsen har kun en visuell effekt.
Salgsoppgaven beskriver vesentlig og lovpålagt informasjon om eiendommen
Se komplett salgsoppgaveNyttige lenker
Nærområdet
Nordvik Frogner
Annonseinformasjon
| FINN-kode | 445310705 |
|---|---|
| Sist endret | 23. jan. 2026 12:49 |
| Referanse | 14-0750/25 |
Annonsene kan være mangelfulle i forhold til lovpålagt opplysningsplikt. Før bindende avtale inngås oppfordres interessenter til å innhente komplett informasjon fra meglerforetaket, selger eller utleier.



































































