Bildegalleri

Nyere (2010), lekker enebolig som er oppusset senere år med bl.a. spesialtilpasset inventar, kjøkken og en spennende fargepalett fra anerkjente Koi Fargestudio som må oppleves!
Solgt
Nordstrand
Nyere (2010), lekker enebolig med hybel | 194 m² BRA | Dobbel garasje med sluse til bolig | Fargepalett fra Koi
Prisantydning13 500 000 kr
Nøkkelinfo
- Boligtype
- Enebolig
- Eieform
- Eier (Selveier)
- Soverom
- 3
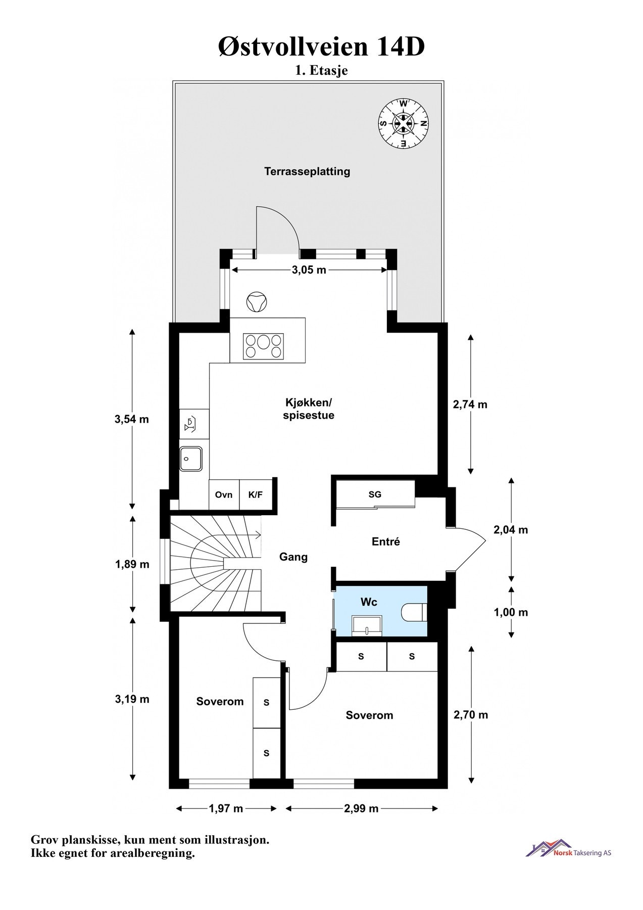
- Internt bruksareal
- 194 m² (BRA-i)
- Bruksareal
- 194 m²
- Balkong/Terrasse
- 30 m² (TBA)
- Byggeår
- 2010
- Energimerking
- C - Rød
- Rom
- 7
- Tomteareal
- 2 581 m² (eiet)
Fasiliteter
Barnevennlig
Balkong/Terrasse
Garasje/P-plass
Offentlig vann/kloakk
Parkett
Turterreng
Sentralt
Bredbåndstilknytning
Moderne
Rolig
Lademulighet
Balansert ventilasjon
Om boligen
Nyere (2010), lekker enebolig som er oppusset senere år med bl.a. spesialtilpasset inventar, kjøkken og en spennende fargepalett fra anerkjente Koi Fargestudio som må oppleves! Boligen ligger fint til i en svært barnevennlig og rolig blindvei i et attraktivt villaområde på Nordstrand med tilhørighet til populære Munkerud skolekrets.
- Inneholder bl.a. 3 soverom, 2 stuer, 3 bad/wc og boder i hoveddel.
- Hybel (estimert leieinntekt ca. kr 11-12.000 per mnd)
- Takhøyde ved høyeste punkt i stue på ca. 3,6 m
- Egen dobbel garasje med sluseadkomst til kjelleretasje
- Vestvendte uteplasser med gode solforhold
- Balansert ventilasjon med varmegjenvinner
- Skjult elektrisk anlegg med automatsikringer
- Egen ladestasjon for el-bil ved garasjeplass
- VVS-system med "rør-i-rør"
- Inneholder bl.a. 3 soverom, 2 stuer, 3 bad/wc og boder i hoveddel.
- Hybel (estimert leieinntekt ca. kr 11-12.000 per mnd)
- Takhøyde ved høyeste punkt i stue på ca. 3,6 m
- Egen dobbel garasje med sluseadkomst til kjelleretasje
- Vestvendte uteplasser med gode solforhold
- Balansert ventilasjon med varmegjenvinner
- Skjult elektrisk anlegg med automatsikringer
- Egen ladestasjon for el-bil ved garasjeplass
- VVS-system med "rør-i-rør"
NB: Knappen for å vise hele beskrivelsen har kun en visuell effekt.
NB: Knappen for å vise hele beskrivelsen har kun en visuell effekt.
Salgsoppgaven beskriver vesentlig og lovpålagt informasjon om eiendommen
Se komplett salgsoppgaveNyttige lenker
Nærområdet

PrivatMegleren Panorama
Kun det beste på dine vegne
Annonseinformasjon
| FINN-kode | 445290711 |
|---|---|
| Sist endret | 19. jan. 2026 17:19 |
| Referanse | 38251418 |
Annonsene kan være mangelfulle i forhold til lovpålagt opplysningsplikt. Før bindende avtale inngås oppfordres interessenter til å innhente komplett informasjon fra meglerforetaket, selger eller utleier.



























































