Bildegalleri

Velkommen til Sandakerveien 74B, presentert av Eiendomsmegler Eline Tilley. Foto: Zovenfra
Solgt
Lillo v/Storo
Lys og velholdt 4-roms endeleilighet med solrik balkong. 2 garasjeplasser. Bygård fra 2008. Heis. IN-ordning*
Prisantydning8 000 000 kr
Nøkkelinfo
- Boligtype
- Leilighet
- Eieform
- Selveier
- Soverom
- 3
- Internt bruksareal
- 89 m² (BRA-i)
- Bruksareal
- 89 m²
- Eksternt bruksareal
- 5 m² (BRA-e)
- Balkong/Terrasse
- 9 m² (TBA)
- Etasje
- 4
- Byggeår
- 2008
- Energimerking
- D - Rød
- Rom
- 4
- Tomteareal
- 5 878 m² (eiet)
Fasiliteter
Balkong/Terrasse
Garasje/P-plass
Kabel-TV
Heis
Offentlig vann/kloakk
Parkett
Turterreng
Utsikt
Vaktmester-/vektertjeneste
Sentralt
Bredbåndstilknytning
Moderne
Rolig
Lademulighet
Om boligen
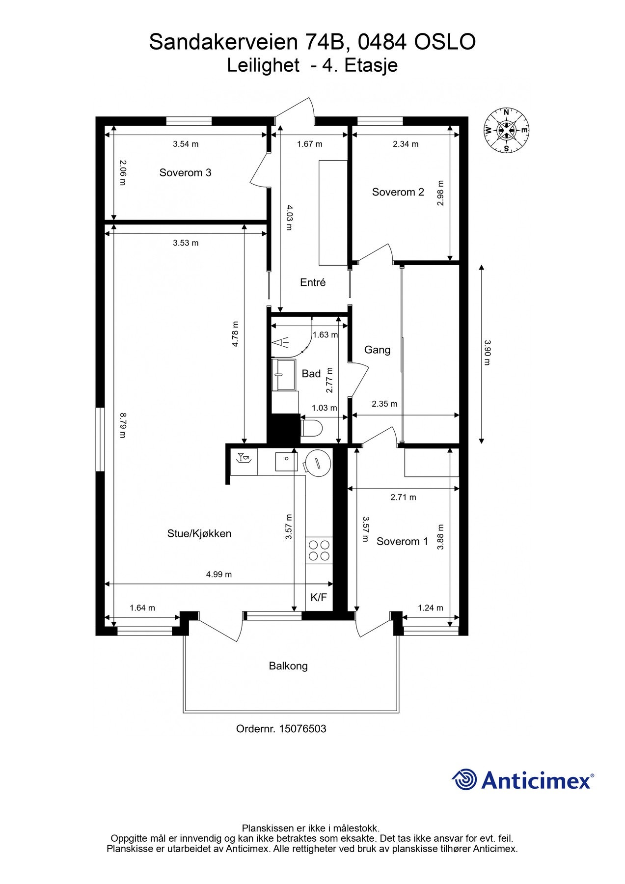
Stor og velholdt 4-roms selveiet endeleilighet beliggende i 4. etasje med heisadkomst i en bygård fra 2008.
Her får du en gjennomgående og funksjonell planløsning med gode lysforhold og en luftig romfølelse. Boligen byr blant annet på en delvis åpen stue- og kjøkkenløsning, tre gode soverom og et romslig, flislagt bad. Fra både stuen og hovedsoverommet er det utgang til en solrik, sydvendt balkong på ca. 9 kvm. - et perfekt uterom for sommerhalvåret.
Boligen har en sentral, men skjermet beliggenhet med kort vei til Nydalen, Storo, servicetilbud og kollektivtransport.
- Lys endeleilighet med vinduer i tre himmelretninger
- 2 stk. garasjeplasser (én med el-lader)
- Solrik balkong på 9kvm.
- Felles takterrasse i nabobygg med fantastisk utsikt
- Bredbånd inkl.
- Heis
- Intern og ekstern bod
- Fortrinnsrett i bhg.
- Kort gangavstand til offentlig kommunikasjon
- Nær Storo Storsenter og BI
- IN-ordning*
*Ved full innfrielse av andel fellesgjeld vil mnd. fk. utgjøre kr. 4 329 pr. mnd. pt.
Her får du en gjennomgående og funksjonell planløsning med gode lysforhold og en luftig romfølelse. Boligen byr blant annet på en delvis åpen stue- og kjøkkenløsning, tre gode soverom og et romslig, flislagt bad. Fra både stuen og hovedsoverommet er det utgang til en solrik, sydvendt balkong på ca. 9 kvm. - et perfekt uterom for sommerhalvåret.
Boligen har en sentral, men skjermet beliggenhet med kort vei til Nydalen, Storo, servicetilbud og kollektivtransport.
- Lys endeleilighet med vinduer i tre himmelretninger
- 2 stk. garasjeplasser (én med el-lader)
- Solrik balkong på 9kvm.
- Felles takterrasse i nabobygg med fantastisk utsikt
- Bredbånd inkl.
- Heis
- Intern og ekstern bod
- Fortrinnsrett i bhg.
- Kort gangavstand til offentlig kommunikasjon
- Nær Storo Storsenter og BI
- IN-ordning*
*Ved full innfrielse av andel fellesgjeld vil mnd. fk. utgjøre kr. 4 329 pr. mnd. pt.
NB: Knappen for å vise hele beskrivelsen har kun en visuell effekt.
NB: Knappen for å vise hele beskrivelsen har kun en visuell effekt.
Salgsoppgaven beskriver vesentlig og lovpålagt informasjon om eiendommen
Se komplett salgsoppgaveNyttige lenker
Nærområdet
EIE eiendomsmegling Majorstuen & St. Hanshaugen
Annonseinformasjon
| FINN-kode | 445289688 |
|---|---|
| Sist endret | 21. apr. 2026 13:44 |
| Referanse | 25251223 |
Annonsene kan være mangelfulle i forhold til lovpålagt opplysningsplikt. Før bindende avtale inngås oppfordres interessenter til å innhente komplett informasjon fra meglerforetaket, selger eller utleier.
















































