Bildegalleri

Velkommen til Svalbardgata 17B! Presentert av Harold Mufoncol v/EIE eiendomsmegling. Foto: Fotoetcetera
Solgt
Enenda
Innholdsrik og romslig hel tomannsbolig over 3 plan med utleiehybel. Sentralt og barnevennlig område. Stor og flott hage
Prisantydning3 850 000 kr
Nøkkelinfo
- Boligtype
- Tomannsbolig
- Eieform
- Eier (Selveier)
- Soverom
- 6
- Internt bruksareal
- 210 m² (BRA-i)
- Bruksareal
- 234 m²
- Eksternt bruksareal
- 24 m² (BRA-e)
- Balkong/Terrasse
- 17 m² (TBA)
- Byggeår
- 1964
- Energimerking
- E - Oransje
- Rom
- 7
- Tomteareal
- 417 m² (festet)
- Festeavgift
- 271 kr
Fasiliteter
Barnevennlig
Balkong/Terrasse
Garasje/P-plass
Offentlig vann/kloakk
Turterreng
Sentralt
Rolig
Om boligen
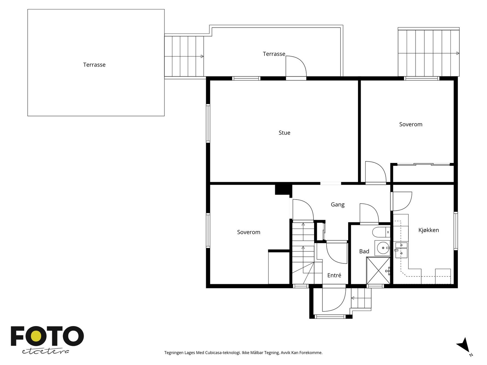
Harold Mufoncol v/EIE eiendomsmegling har gleden av å presentere Svalbardgata 17B - En innholdsrik og flott enebolig over 3 plan med store, fine uteområder. Boligen har en praktisk og gjennomtenkt planløsning med romslige oppholdsrom.
1.etasje byr på en stor stue med utgang til balkong og hage, et separat kjøkken, to gode soverom og et bad. I 2.etasje finnes en lys og luftig stue med utgang til balkong, et separat kjøkken, et bad og to soverom, mens kjelleren har en egen utleiehybel med stue, kjøkken, soverom og bad.
Beliggenheten kombinerer rolige og hyggelige omgivelser med kort avstand til byens servicetilbud og fasiliteter. Fra eiendommen er det gangavstand til Sarpsborg sentrum.
Kort fortalt:
1.etasje byr på en stor stue med utgang til balkong og hage, et separat kjøkken, to gode soverom og et bad. I 2.etasje finnes en lys og luftig stue med utgang til balkong, et separat kjøkken, et bad og to soverom, mens kjelleren har en egen utleiehybel med stue, kjøkken, soverom og bad.
Beliggenheten kombinerer rolige og hyggelige omgivelser med kort avstand til byens servicetilbud og fasiliteter. Fra eiendommen er det gangavstand til Sarpsborg sentrum.
Kort fortalt:
- 6 soverom av god størrelse
- Utleiehybel i kjelleretasjen
- Parkeringsplass i garasje og i innkjørsel
- Perfekt bolig for barnefamilier
- Flotte rekreasjonsmulighet i nærområdet sommer som vinter
- Moderniseringsbehov
NB: Knappen for å vise hele beskrivelsen har kun en visuell effekt.
NB: Knappen for å vise hele beskrivelsen har kun en visuell effekt.
Salgsoppgaven beskriver vesentlig og lovpålagt informasjon om eiendommen
Se komplett salgsoppgaveNyttige lenker
Nærområdet
EIE eiendomsmegling Sinsen & Carl Berner
Annonseinformasjon
| FINN-kode | 445289188 |
|---|---|
| Sist endret | 26. jan. 2026 12:16 |
| Referanse | 92250272 |
Annonsene kan være mangelfulle i forhold til lovpålagt opplysningsplikt. Før bindende avtale inngås oppfordres interessenter til å innhente komplett informasjon fra meglerforetaket, selger eller utleier.














































