Bildegalleri

Velkommen til Griniveien 4G!
RØA TORG / RØA X
Røa Sentrum: Lekker ny 3-roms - Høy standard - Terasse 15 m² - Gode solforhold - Kjøkkenøy - Garasje*
Prisantydning7 790 000 kr
Nøkkelinfo
- Boligtype
- Leilighet
- Eieform
- Selveier
- Soverom
- 2
- Internt bruksareal
- 71 m² (BRA-i)
- Bruksareal
- 76 m²
- Eksternt bruksareal
- 5 m² (BRA-e)
- Balkong/Terrasse
- 15 m² (TBA)
- Byggeår
- 2026
- Energimerking
- A - Mørkegrønn
- Rom
- 3
- Tomteareal
- 1 700 m² (eiet)
Fasiliteter
Barnevennlig
Balkong/Terrasse
Garasje/P-plass
Kabel-TV
Heis
Offentlig vann/kloakk
Parkett
Turterreng
Vaktmester-/vektertjeneste
Sentralt
Bredbåndstilknytning
Moderne
Rolig
Balansert ventilasjon
Om boligen
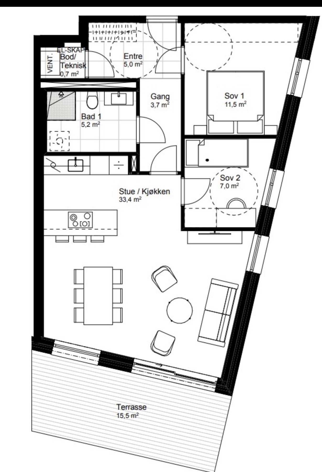
Lekker, nyoppført 3-roms leilighet med høy standard i hjertet av Røa. 1-2 minutters gange til alle fasiliteter du trenger som T-bane, buss, butikker, SATS, Røabadet, bibliotek, cafeer. Kort vei til marka med flotte turmuligheter året rundt samt Bogstadvannet, Bogstad Golf og Oslo vinterpark. Et urbant og barnevennlig område med alt du trenger i umiddelbar nærhet - enkelt å bo og lett å trives
God planløsning med en romslig stue/kjøkken og påkostet kjøkken med kjøkkenøy. Stor sydvendt terrasse på 15,5 m², med gode solforhold på dagtid og sen ettermiddag. Her kan du flytte rett inn og nyte tilværelsen.
Boligens kvaliteter:
- Stor 3-roms hjørneleilighet på ca. 71 m²
- Romslig stue/kjøkken ca. 33 m²
- Vannbåren og rimelig gulvvarme og varmtvann via jordvarme (individuell temperatur for hvert rom)
- 5 års garanti
- HTH kjøkken, integrerte hvitevarer inkludert
- Energieffektive og miljøvennlige materialvalg
- Sykkelparkering
- *Garasjeplass tilgjengelig via selger (pristillegg)
God planløsning med en romslig stue/kjøkken og påkostet kjøkken med kjøkkenøy. Stor sydvendt terrasse på 15,5 m², med gode solforhold på dagtid og sen ettermiddag. Her kan du flytte rett inn og nyte tilværelsen.
Boligens kvaliteter:
- Stor 3-roms hjørneleilighet på ca. 71 m²
- Romslig stue/kjøkken ca. 33 m²
- Vannbåren og rimelig gulvvarme og varmtvann via jordvarme (individuell temperatur for hvert rom)
- 5 års garanti
- HTH kjøkken, integrerte hvitevarer inkludert
- Energieffektive og miljøvennlige materialvalg
- Sykkelparkering
- *Garasjeplass tilgjengelig via selger (pristillegg)
NB: Knappen for å vise hele beskrivelsen har kun en visuell effekt.
NB: Knappen for å vise hele beskrivelsen har kun en visuell effekt.
Salgsoppgaven beskriver vesentlig og lovpålagt informasjon om eiendommen
Se komplett salgsoppgaveNærområdet
Eiendomsmeglerne AS
Erfaring og lokalkunnskap
Annonseinformasjon
| FINN-kode | 445268582 |
|---|---|
| Sist endret | 26. mai 2026 11:51 |
| Referanse | 202260002 |
Annonsene kan være mangelfulle i forhold til lovpålagt opplysningsplikt. Før bindende avtale inngås oppfordres interessenter til å innhente komplett informasjon fra meglerforetaket, selger eller utleier.






























