Bildegalleri

DNB Eiendom v/ Joakim Christensen har gleden av å presentere Sleipners gate 6B!
Austrått
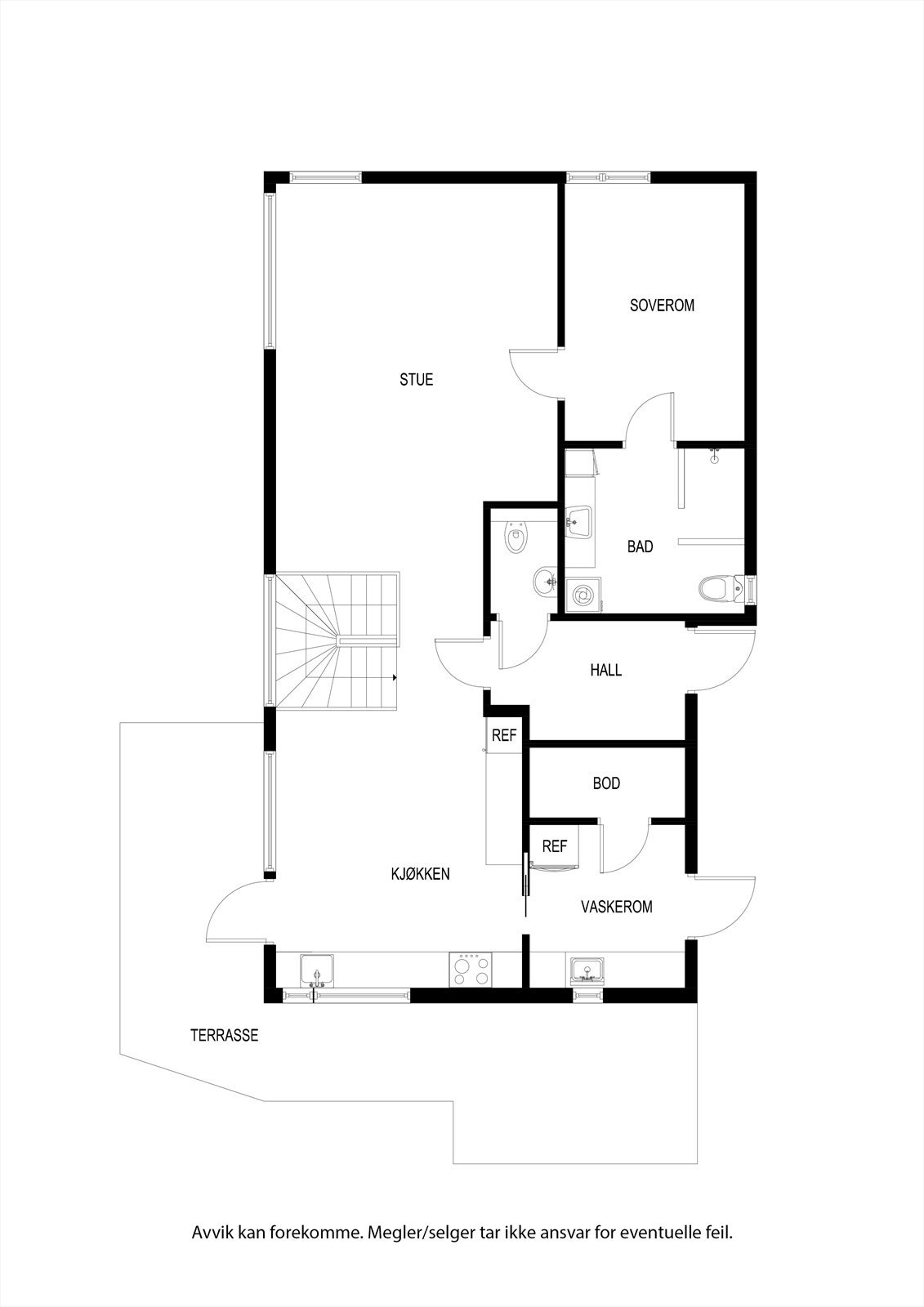
Enebolig med god standard fra 2014! Sentral beliggenhet i et barnevennlig, rolig strøk| Stort gårdsrom og dobbel garasje
Prisantydning8 790 000 kr
Nøkkelinfo
- Boligtype
- Enebolig
- Eieform
- Eier (Selveier)
- Soverom
- 4
- Internt bruksareal
- 190 m² (BRA-i)
- Bruksareal
- 223 m²
- Eksternt bruksareal
- 33 m² (BRA-e)
- Balkong/Terrasse
- 76 m² (TBA)
- Byggeår
- 2014
- Energimerking
- B - Rød
- Rom
- 6
- Tomteareal
- 502 m² (eiet)
Fasiliteter
Aircondition
Balkong/Terrasse
Barnevennlig
Bredbåndstilknytning
Garasje/P-plass
Offentlig vann/kloakk
Parkett
Rolig
Sentralt
Turterreng
Lademulighet
Visning
torsdag, 29. januar
16:00 – 17:00
Velkommen til visning! Meld deg på ved å trykke "visningspåmelding" i våre boligannonser. Ta gjerne kontakt med megler i forkant av visningen om du har spørsmål.
VisningspåmeldingOm boligen
Dette er en flott enebolig med god standard fra 2014. Boligen er nøye gjennomført, innholdsrik og med gjennomgående god standard. Innholdsrik planløsning over to plan. Kjekk enebolig i rolige omgivelser med ypperlige solforhold.
Kort fortalt:
- Lekker enebolig med rolig, barnevennlig beliggenhet.
- Høy standard med parkett i eik, stort flott kjøkken og flotte bad.
- Kjekk planløsning over to plan. Perfekt for småbarnsfamilien.
- Uteområder med ypperlige solforhold.
- Stort gårdsrom med dobbel garasje. Her er det også gode muligheter for lagring og installasjon av el-bil lader.
Velkommen på visning!
Kort fortalt:
- Lekker enebolig med rolig, barnevennlig beliggenhet.
- Høy standard med parkett i eik, stort flott kjøkken og flotte bad.
- Kjekk planløsning over to plan. Perfekt for småbarnsfamilien.
- Uteområder med ypperlige solforhold.
- Stort gårdsrom med dobbel garasje. Her er det også gode muligheter for lagring og installasjon av el-bil lader.
Velkommen på visning!
NB: Knappen for å vise hele beskrivelsen har kun en visuell effekt.
NB: Knappen for å vise hele beskrivelsen har kun en visuell effekt.
Salgsoppgaven beskriver vesentlig og lovpålagt informasjon om eiendommen
Se komplett salgsoppgaveNyttige lenker
Nærområdet
DNB Eiendom AS
Fra hjem til hjem
Annonseinformasjon
| FINN-kode | 445263006 |
|---|---|
| Sist endret | 22. jan. 2026 11:39 |
| Referanse | 703250702 |
Annonsene kan være mangelfulle i forhold til lovpålagt opplysningsplikt. Før bindende avtale inngås oppfordres interessenter til å innhente komplett informasjon fra meglerforetaket, selger eller utleier.






























































